+17 fotó
Hirdetéskód: 8987944
Referenciaszám: M327466-5213455
Feltöltve: ma
Nyíregyháza eladó panellakás 2 szobás: 42,99 millió Ft
42,99 millió Ft
842,9 ezer Ft/m²
51 m²
2 szoba
4. emelet
Eladó Lakás, Nyíregyháza
Nyíregyháza, Toldi utcában teljes körűen felújított, teljes berendezéssel azonnal költözhető lakás eladó!
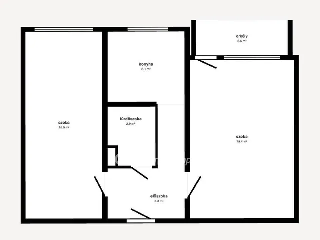
Nyíregyházán, a Toldi utcában, az állomás és a belváros közelében kínálok megvételre egy 51 nm-es, 4. emeleti, 2 szobás, erkélyes lakást, 10 emeletes liftes társasházban.
Az ingatlan kiváló állapotú, teljes körűen felújított. A felújítás során betonig visszabontották, minden vezeték cserélve lett. Hőszigetelt műanyag nyílászárók kerültek beépítésre redőnnyel és szúnyoghálóval, biztonsági bejárati ajtóval ellátott. A lakás hűtő-fűtő klímával felszerelt, fűtése mért távhő.
Helyiségek:
előszoba,
konyha,
2 külön nyíló szoba,
zuhanyzós fürdőszoba WC-vel,
zárt folyosós,
erkély parkra néző kilátással.
A lakás teljes berendezéssel együtt eladó, a képeken látható bútorok és gépek a vételár részét képezik!
A társasház rendezett, panelprogramban részt vett, jó lakóközösséggel rendelkezik. Parkolás a ház előtt ingyenesen megoldott.
A közelben minden megtalálható: orvosi rendelő, pékség, gyógyszertár, boltok, valamint a belváros és az állomás is könnyen elérhető.
Az ingatlan azonnal költözhető, hitel- tehermentes, ide valóban csak a bőröndöt kell hozni!
További információért és megtekintésért keressen bizalommal akár hétvégén is!
OTP Banki hátterünknek köszönhetően finanszírozási igényekben (pl. Otthon Start Hitelprogram, Babaváró, Falusi CSOK, CSOK Plusz, Lakáshitel, Személyi kölcsön stb.), illetve biztosítások tekintetében is díjmentesen, soron kívüli ügyintézéssel segítem ügyfeleim! Referenciaszám: M327466
Virtuális séta:
Tulajdonságok
Panellakás
Felújított
Távfűtés egyedi méréssel
1985
Nem adta meg a hirdető
Vedd fel a kapcsolatot a hirdetővel
Kissné Orosz Ildikó Krisztina
OTPip - Nyíregyháza Bocskai utca 18-20 - OTP Ingatlanpont Iroda
Az iroda összes hirdetése +36 20 468 0
Hitelkalkulátor
Második évtől
185 009 Ft A 13. hónaptól
7,99%
Végig fix Futamidő: 20 év Banki visszahívás
Az OTP Bank munkatársai a neked megfelelő napszakban veszik fel veled a kapcsolatot.Hitelfelvétel esetén akár egy héttel rövidebb lehet az ügyintézés.
Ez az ingatlan a nálunk meglévő adatok alapján azonnali értékbecslésre alkalmas lehet.
A becslés a hirdető által megadott adatokon alapul. A jelen tájékoztatás nem minősül ajánlattételnek és nem teljes körű, az egyes feltételek a hitelbírálat eredményétől függően változhatnak. Kérjük, a részletekről tájékozódj az OTP Bank fiókjaiban vagy az OTP Bank honlapján közzétett vonatkozó Üzletszabályzatokból és Hirdetményekből.
Vedd fel a kapcsolatot a hirdetővel
Kissné Orosz Ildikó Krisztina
OTPip - Nyíregyháza Bocskai utca 18-20 - OTP Ingatlanpont Iroda
Az iroda összes hirdetése +36 20 468 0
Vedd fel a kapcsolatot a hirdetővel
Kissné Orosz Ildikó Krisztina
OTPip - Nyíregyháza Bocskai utca 18-20 - OTP Ingatlanpont Iroda
Az iroda összes hirdetése +36 20 468 0
UI_KIT.CHARACTER_COUNTER__COMPONENT.ACTUAL_CHARACTER__SR_ONLY UI_KIT.CHARACTER_COUNTER__COMPONENT.MAXIMUM_CHARACTER__SR_ONLY
Hasonló eladó ingatlanok Nyíregyházán
Frissítve: 15 napja
20
47 millió Ft 886,8 ezer Ft/m²
Eladó lakás, Nyíregyháza
Frissítve: 5 napja
13
43,5 millió Ft 550,6 ezer Ft/m²
Eladó lakás, Nyíregyháza
Frissítve: 19 napja
15
43,5 millió Ft 550,6 ezer Ft/m²
Eladó lakás, Nyíregyháza

Fedezd fel a
hasonló lakásokat!Még további lakások Nyíregyházán 42,99 M Ft körüli értékben
Tovább a hirdetésekhez Frissítve: 21 napja
7
43,5 millió Ft 550,6 ezer Ft/m²
Eladó lakás, Nyíregyháza
Frissítve: 7 napja
16
39,9 millió Ft 595,5 ezer Ft/m²
Eladó lakás, Nyíregyháza

Frissítve: 5 napja
11
43,8 millió Ft 826,4 ezer Ft/m²
Eladó lakás, Nyíregyháza
