+15 fotó
Hirdetéskód: 8874791
Feltöltve: 1 napja
Paks eladó panellakás 2 szobás: 49,9 millió Ft
49,9 millió Ft
831 667 Ft/m²
60 m²
2 szoba
3. emelet
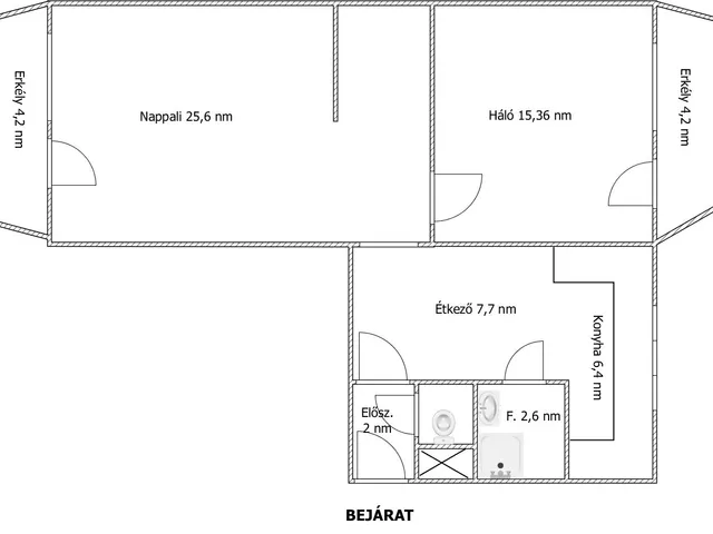
Pakson kétszobás, kéterkélyes lakás eladó
Pakson kétszobás, kéterkélyes lakás eladó.
Ha egy kedvelt, csendes utcába lakna, de mégis közel mindenhez Ha szereti a tágas, világos tereket. Ha sürgősen költöznie kell, és nem szeretne a felújítással bajlódni akkor ez a lakás Önre vár!
Paks lakótelepének kedvelt utcájában eladóvá vált egy harmadik emeleti szép állapotú lakás.
Főbb jellemzői:
- kétszobás, kéterkélyes, Dunai panorámás lakás
- csendes, zsákutcában található, nincs átmenő forgalom
- panelprogramban részt vett, szigetelt tömb
- műanyag nyílászárók rovarhálóval, redőnnyel szerelve (az egyik erkély is redőnyös)
- alacsony rezsiköltség, közös költség
- tágas, világos terek jellemzik
- szobái laminált padlóval burkoltak
- villany, vízvezetéket 2012-ben cserélték
- beépített, gépesített konyhabútor, rengeteg tárolási lehetőséggel
- fürdőszobában már tusoló található a kád helyett
- több ponton záródó, biztonsági bejárati ajtó
- saját nagyméretű tároló tartozik hozzá
- parkolás közterületen ingyenes
Kitűnő elhelyezkedésének köszönhetően a közelében szinte minden elérhető pár perces sétával!
Ha felkeltettem az érdeklődését, keressen bizalommal! Megtekintéshez időpontot kérjen még ma.
Teljes körű pénzügyi megoldások ügyintézése díjmentesen:
* Bankfüggetlen hitelcenterünk díjmentesen versenyezteti minden bank és hitelintézet ajánlatát.
* Önnek nincs más dolga, mint beszélgetni munkatársunkkal, majd a megversenyeztetett ajánlatokból kiválasztani a hosszútávon is a legmegfelelőbb konstrukciót.
* Szakértőnk több mint 20 éves szakmai tapasztalattal és egyedi igényekre szabott, fogyasztóbarát lakáshitelekkel, babaváró hitellel, teljes körű CSOK ügyintézéssel várja Önt.
* Előre egyeztetett időpontban.
Pakson kétszobás, Dunai panorámás lakás eladó.
Tulajdonságok
Panellakás
4
Felújított
Távfűtés
8 m²
Nem adta meg a hirdető
25 000 Ft/hó
Vedd fel a kapcsolatot a hirdetővel
Baranyi Mónika Az iroda összes hirdetése
+36 70 770 6
Hitelkalkulátor
Második évtől
214 747 Ft A 13. hónaptól
7,99%
Végig fix Futamidő: 20 év Banki visszahívás
Az OTP Bank munkatársai a neked megfelelő napszakban veszik fel veled a kapcsolatot. A becslés a hirdető által megadott adatokon alapul. A jelen tájékoztatás nem minősül ajánlattételnek és nem teljes körű, az egyes feltételek a hitelbírálat eredményétől függően változhatnak. Kérjük, a részletekről tájékozódj az OTP Bank fiókjaiban vagy az OTP Bank honlapján közzétett vonatkozó Üzletszabályzatokból és Hirdetményekből.
Vedd fel a kapcsolatot a hirdetővel
Baranyi Mónika Az iroda összes hirdetése
+36 70 770 6
Vedd fel a kapcsolatot a hirdetővel
Baranyi Mónika Az iroda összes hirdetése
+36 70 770 6
UI_KIT.CHARACTER_COUNTER__COMPONENT.REMAINING_SPACE__SR_ONLYUI_KIT.CHARACTER_COUNTER__COMPONENT.MAXIMUM_CHARACTER__SR_ONLY
Hasonló eladó ingatlanok Lakótelep városrészben
Frissítve: 12 napja
17
45 M Ft 616 438 Ft/m²
Eladó lakás, Paks, Lakótelep

Frissítve: 4 napja
11
47,9 M Ft 840 351 Ft/m²
Eladó lakás, Paks, Lakótelep, Árnyas utca
Frissítve: 4 napja
12
47,9 M Ft 825 862 Ft/m²
Eladó lakás, Paks, Lakótelep

Fedezd fel a
hasonló lakásokat!Még további lakások Tolna megyében 49,9 M Ft körüli értékben
Tovább a hirdetésekhez Frissítve: 10 napja
20
49,9 M Ft 683 562 Ft/m²
Eladó lakás, Paks

Frissítve: 10 hónapja
8
49,9 M Ft 875 439 Ft/m²
Eladó lakás, Paks
Frissítve: 14 napja
9
45 M Ft 833 333 Ft/m²
Eladó lakás, Paks, Kurcsatov utca

