+17 fotó
Hirdetéskód: 8864696
Referenciaszám: M320801-5131961
Feltöltve: 4 napja
Pápa eladó panellakás 1+3 fél szobás: 38,5 millió Ft
38,5 millió Ft
566 176 Ft/m²
68 m²
1+3 fél szoba
földszint
Eladó Lakás, Pápa
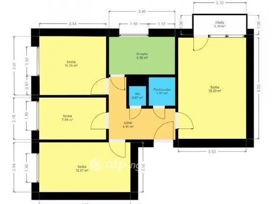
KIVÁLÓ BEFEKTETÉSI LEHETŐSÉG PÁPÁN! Itt a lehetőség, hogy kis lakását nagy méretű lakásra vagy családi házát lakásra cserélje! Eladó egy PRAKTIKUS és KÉNYELMES, NAGYCSALÁDOSOK számára megfelelő lakás. Veszprém vármegyében, Pápán, a kedvelt Huszár lakótelepen kínálok megvételre,1 magasföldszinti, 68 m2-es, felújítandó, belvárostól pár perc sétára lévő, szigetelt, panel lakást tárolóval. A társasház rendezett, jó lakóközösséggel rendelkezik. A kellemes hangulatú lakás elrendezése praktikus és kényelmes. Az ingatlan 4 külön bejáratú szobából, amelyek közül egy tágas teljes értékű, 3 jól berendezhető félszoba, konyhából-étkezőből, fürdőszobából, külön WC-ből, két közlekedőből, valamint egy nagy erkélyből és tárolóból áll. A belső terek tágasak és jól elrendezettek, biztosítva a kellemes életteret. A szobák szőnyegpadló burkolatúak, a többi helyiség PVC padló, a fürdőszoba járólap borítású. Az otthon melegéről távfűtés gondoskodik, radiátoros hőleadással, egyedi mérőkkel. A meleg vizet szintén a távfűtés szolgáltatja. A villamos hálózat műszakilag jó állapotban van. A lakás nyílászárói cserélve lettek, műanyagok, redőnnyel ellátottak. Nyáron a redőnyöknek köszönhetően a lakás hűvös marad. A ház mellett parkolási lehetőség biztosított. Ajánlom mindenkinek, aki egy alacsony rezsi költségű, energia igényű lakásban, szép, családias, csendes részen kíván élni, nyugodt környezetben 1 hatalmas méretű lakásban. KARNYÚJTÁSNYIRA a társas ház közelében található bölcsőde, óvoda, iskola, élelmiszer bolt, dohány- és italbolt, orvosi rendelő, gyógyszertár, és egybevásárló központ. Pár perces sétával elérhető a városközpont. A vételár tartalmazza a tárolót is. Az OTP Ingatlanpont teljes körű ügyintézéssel áll az eladók és a vevők rendelkezésére. A kínálatunkból választott ingatlan finanszírozásához kedvezményes hitelkonstrukciót kínálunk. Az ingatlan megfelel a fix 3%-os Otthon Start Hitelprogram feltételeinek! Az adásvételi szerződés megkötéséhez igény szerint megbízható ügyvédi közreműködést biztosítunk, és segítséget nyújtunk az adásvételhez kapcsolódó ügyek intézéséhez is. A hirdetési szöveg és képek az Otp Ingatlanpont tulajdona. Ne hagyja ki ezt a remek és ritka lehetőséget, hogy egy nagyméretű kényelmes, kellemes és praktikus lakásban élhessen Pápa kedvelt lakótelepén. Ez az ingatlan kiváló befektetés akár magán célra, akár bérbeadás, akár vállalkozás nyitása szempontjából! Amennyiben az ingatlan felkeltette érdeklődését, keressen bizalommal. Ne szalassza el ezt a figyelemre méltó lehetőséget, hívjon ma!
38500000 Ft
Amennyiben az ingatlan felkeltette érdeklődését, esetleg bármivel kapcsolatban kérdése lenne, keressen Bizalommal! Verrasztó Edina: +36703156380
Referencia szám: M320801-ZE
Tulajdonságok
Panellakás
Jó állapotú
Távfűtés egyedi méréssel
1985
Nem adta meg a hirdető
Vedd fel a kapcsolatot a hirdetővel
+36 70 315 6
Hitelkalkulátor
Második évtől
165 686 Ft A 13. hónaptól
7,99%
Végig fix Futamidő: 20 év Banki visszahívás
Az OTP Bank munkatársai a neked megfelelő napszakban veszik fel veled a kapcsolatot. A becslés a hirdető által megadott adatokon alapul. A jelen tájékoztatás nem minősül ajánlattételnek és nem teljes körű, az egyes feltételek a hitelbírálat eredményétől függően változhatnak. Kérjük, a részletekről tájékozódj az OTP Bank fiókjaiban vagy az OTP Bank honlapján közzétett vonatkozó Üzletszabályzatokból és Hirdetményekből.
Vedd fel a kapcsolatot a hirdetővel
+36 70 315 6
Vedd fel a kapcsolatot a hirdetővel
+36 70 315 6
UI_KIT.CHARACTER_COUNTER__COMPONENT.REMAINING_SPACE__SR_ONLYUI_KIT.CHARACTER_COUNTER__COMPONENT.MAXIMUM_CHARACTER__SR_ONLY
Hasonló eladó ingatlanok Pápán
Frissítve: 9 napja
16
36,7 M Ft 799 391 Ft/m²
Eladó lakás, Pápa

Frissítve: 10 napja
20
34,9 M Ft 239 041 Ft/m²
Eladó lakás, Pápa

Frissítve: 23 napja
6
37,45 M Ft 913 295 Ft/m²
Eladó lakás, Pápa

Fedezd fel a
hasonló lakásokat!Még további lakások Pápán 38,5 M Ft körüli értékben
Tovább a hirdetésekhez Feltöltve: 2 hónapja
10
35,9 M Ft 335 514 Ft/m²
Eladó lakás, Pápa, Szent László
Frissítve: ma
20
34,9 M Ft 239 041 Ft/m²
Eladó lakás, Pápa

Frissítve: 14 napja
7
37,45 M Ft 913 295 Ft/m²
Eladó lakás, Pápa
