+4 fotó
Hirdetéskód: 8935640
Referenciaszám: M324441-5178177
Frissítve: ma
Pápa eladó panellakás 1+3 fél szobás: 37,49 millió Ft
37,49 millió Ft
543,3 ezer Ft/m²
69 m²
1+3 fél szoba
4. emelet
Eladó Lakás, Pápa
KIEMELKEDŐ BEFEKTETÉSI LEHETŐSÉG, Pápán, a Kilián lakótelepen!
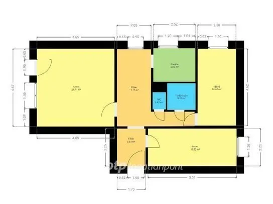
Eladásra kínálok Veszprém vármegyében, Pápán, a Kilián lakótelepen egy PRAKTIKUS és KÉNYELMES felújított, KIFOGÁSTALAN ÁLLAPOTÚ, 69 m2 nagyságú, 1+2 szobás, francia erkélyes társas házi panellakást.
Az épület a panelprogram keretében korszerűsítve lett. A környék csendes, nyugodt és kulturált, ideális választás mind családok, mind egyedülállók számára. Az ingatlan elosztását tekintve áll: 1 nagyméretű nappaliból 2 külön-bejáratú, tágas és napfényes lakószobából, konyhából, étkezőből, előszoba-közlekedőből, egy WC-ből, és egy fürdőszobából. A lakás jó elosztású, világos, felújításon esett át. A nyílászárók hő- és hangszigetelt műanyagok. A társas ház rendezett, ápolt, csendes részen található. A szobák laminált parketta burkolatúak, a többi helyiség járólap borítású. Az igényes megjelenésű lakás szép, beépített konyhabútorzattal rendelkezik, aminek gépészeti eszközei is beletartoznak a vételi árba. A lakás házközponti fűtésrendszerrel rendelkezik, melynek köszönhetően a radiátoros hőleadók állandóan kellemes hőmérsékletet biztosítanak, KLÍMA is helyet kapott, FŰTÉSE a klímával is lehetséges. A közös költségbe beletartozik: a fűtés, meleg víz, hulladékszállítási díj, társas házi biztosítás, lépcsőház világítás. A lakás BEFEKTETÉSI célra is kiválóan alkalmas. A tömb elhelyezkedése nagyon kedvező. Parkolás a lakótelep területén ingyenes. A mindennapi élethez szükséges szolgáltatások karnyújtásnyira vannak, a közelben található óvoda, bolt, szupermarket, posta és játszótér is ? minden, ami a hétköznapokhoz szükséges. Könnyen megközelíthető a belváros, akár gyalogosan is. A helyi járat rendszeresen közlekedik. Ajánlom mindenkinek, aki egy alacsony rezsi költségű, energia igényű lakásban, szép, családias, csendes részen kíván élni, nyugodt környezetben 1 hatalmas méretű lakásban. Ez az ingatlan kiváló befektetés akár magán célra, akár bérbeadás szempontjából! Amennyiben az ingatlan felkeltette érdeklődését, keressen bizalommal.
Az OTP Ingatlanpont teljes körű ügyintézéssel áll az eladók és a vevők rendelkezésére. A kínálatunkból választott ingatlan finanszírozásához kedvezményes hitelkonstrukciót kínálunk. Az ingatlan megfelel a fix 3%-os Otthon Start Hitelprogram feltételeinek! Az adásvételi szerződés megkötéséhez igény szerint megbízható ügyvédi közreműködést biztosítunk, és segítséget nyújtunk az adásvételhez kapcsolódó ügyek intézéséhez is. Az ingatlanról készült alaprajz, illetve fényképfelvételek az OTP ingatlanpont szellemi tulajdonát képezik. Ne szalassza el ezt a figyelemre méltó lehetőséget, vásároljon egy kiváló adottságokkal rendelkező ingatlant! Hívjon ma!
Tulajdonságok
Panellakás
Felújított
Házközponti
1990
Nem adta meg a hirdető
Vedd fel a kapcsolatot a hirdetővel

+36 30 724 0
Hitelkalkulátor
Második évtől
161 340 Ft A 13. hónaptól
7,99%
Végig fix Futamidő: 20 év Banki visszahívás
Az OTP Bank munkatársai a neked megfelelő napszakban veszik fel veled a kapcsolatot. A becslés a hirdető által megadott adatokon alapul. A jelen tájékoztatás nem minősül ajánlattételnek és nem teljes körű, az egyes feltételek a hitelbírálat eredményétől függően változhatnak. Kérjük, a részletekről tájékozódj az OTP Bank fiókjaiban vagy az OTP Bank honlapján közzétett vonatkozó Üzletszabályzatokból és Hirdetményekből.
Vedd fel a kapcsolatot a hirdetővel

+36 30 724 0
Vedd fel a kapcsolatot a hirdetővel

+36 30 724 0
UI_KIT.CHARACTER_COUNTER__COMPONENT.ACTUAL_CHARACTER__SR_ONLY UI_KIT.CHARACTER_COUNTER__COMPONENT.MAXIMUM_CHARACTER__SR_ONLY
Hasonló eladó ingatlanok Pápán
Frissítve: 21 napja
16
36,7 millió Ft 799,4 ezer Ft/m²
Eladó lakás, Pápa

Frissítve: 21 napja
6
37,45 millió Ft 913,3 ezer Ft/m²
Eladó lakás, Pápa
Feltöltve: 5 hónapja
10
35,9 millió Ft 335,5 ezer Ft/m²
Eladó lakás, Pápa, Szent László

Fedezd fel a
hasonló lakásokat!Még további lakások Pápán 37,49 M Ft körüli értékben
Tovább a hirdetésekhez Frissítve: 21 napja
7
37,45 millió Ft 913,3 ezer Ft/m²
Eladó lakás, Pápa
Frissítve: ma
18
37,5 millió Ft 833,3 ezer Ft/m²
Eladó lakás, Pápa

Feltöltve: 2 hónapja
19
37,5 millió Ft 833,3 ezer Ft/m²
Eladó lakás, Pápa

