+8 fotó
Hirdetéskód: 8897900
Referenciaszám: M322847-5154389
Frissítve: ma
Pécs eladó panellakás 1+1 fél szobás: 36,99 millió Ft
36,99 millió Ft
948 462 Ft/m²
39 m²
1+1 fél szoba
földszint
Eladó Lakás, Pécs
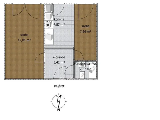
Pécs- Kertváros egyik legkedveltebb részén, a Lahti utcában eladó egy földszinti lakás, hőszigetelt, 4 emeletes társasházban. Az ingatlan alapvetően 1,5 szobás, földszinti, 39 nm, de átalakított, a nappaliból 2 helyiség lett létrehozva, (gipszkarton fal, így igény szerint könnyen visszaalakítható), ezen felül további egy félszoba megtalálható az ingatlanban.
Részben felújított, a képeken látható állapotban, műanyag nyílászárók szúnyoghálókkal, redőnyökkel. Villanyvezetékek a közelmúltban cserélve. Távfűtéses, nagyméretű tároló jár hozzá, mely a szomszéddal közös használatú. Parkra néző ablakok. Nagyon jó lokáció: 100 M sugarú körben benzinkút, buszmegálló, boltok (Lidl, Spar, Tesco) iskola és étterem is megtalálható.
A lépcsőház tiszta és rendezett, megtakarítással rendelkezik és jó a lakóközösség is.
Minden fontos kiszolgáló egység elérhető közelségben van!
Amennyiben Kertváros kedvelt részén szeretne lakni, akkor nézze meg ezt a saját elképzelése szerint átalakítható lakást és tegyen egy ajánlatot!
Referenciaszám: M322847
36990000 Ft
Referencia szám: M322847
Tulajdonságok
Panellakás
Átlagos
Távfűtés
1980
Nem adta meg a hirdető
Vedd fel a kapcsolatot a hirdetővel
+36 20 938 4
Hitelkalkulátor
Második évtől
159 188 Ft A 13. hónaptól
7,99%
Végig fix Futamidő: 20 év Banki visszahívás
Az OTP Bank munkatársai a neked megfelelő napszakban veszik fel veled a kapcsolatot.Hitelfelvétel esetén akár egy héttel rövidebb lehet az ügyintézés.
Ez az ingatlan a nálunk meglévő adatok alapján azonnali értékbecslésre alkalmas lehet.
A becslés a hirdető által megadott adatokon alapul. A jelen tájékoztatás nem minősül ajánlattételnek és nem teljes körű, az egyes feltételek a hitelbírálat eredményétől függően változhatnak. Kérjük, a részletekről tájékozódj az OTP Bank fiókjaiban vagy az OTP Bank honlapján közzétett vonatkozó Üzletszabályzatokból és Hirdetményekből.
Vedd fel a kapcsolatot a hirdetővel
+36 20 938 4
Vedd fel a kapcsolatot a hirdetővel
+36 20 938 4
UI_KIT.CHARACTER_COUNTER__COMPONENT.ACTUAL_CHARACTER__SR_ONLY UI_KIT.CHARACTER_COUNTER__COMPONENT.MAXIMUM_CHARACTER__SR_ONLY
Hasonló eladó ingatlanok Pécsett
Frissítve: 3 napja
20
36,75 M Ft 316 810 Ft/m²
Eladó lakás, Pécs, Hársfa út

Frissítve: ma
20
36,75 M Ft 316 810 Ft/m²
Eladó lakás, Pécs

Feltöltve: 8 hónapja
0
35 M Ft 897 436 Ft/m²
Eladó lakás, Pécs

Fedezd fel a
hasonló lakásokat!Még további lakások Pécsett 36,99 M Ft körüli értékben
Tovább a hirdetésekhez Frissítve: 8 hónapja
1
34,9 M Ft 872 500 Ft/m²
Eladó lakás, Pécs, Fülep Lajos u. 4.
Frissítve: 3 napja
20
33,8 M Ft 662 746 Ft/m²
Eladó lakás, Pécs

Frissítve: ma
20
33,8 M Ft 662 745 Ft/m²
Eladó lakás, Pécs

