

+18 fotó
Hirdetéskód: 8500216
Referenciaszám: M300915-4914506
Frissítve: 2 napja
Százhalombatta eladó panellakás 2+1 fél szobás: 68,4 millió Ft
68,4 millió Ft
963 380 Ft/m²
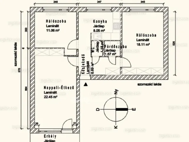
71 m²
2+1 fél szoba
3. emelet
Eladó Lakás, Százhalombatta
Eladásra kínálok egy Százhalombattán lévő igényesen felújított 2+1 szobás, 71 nm-es 3. emeleti lakást.
- SZÉP, MELEG OTTHON
- KONYHA ABLAKOS
- FELÚJÍTOTT, FOLYAMATOSAN KARBANTARTOTT LAKÁS
- BEÉPÍTETT LODZSA PARKRA NÉZŐ
- PANELPROGRAMOS HÁZBAN, SZÉP LÉPCSŐHÁZ, JÓ SZOMSZÉDOK
- ALACSONY REZSI
- KÖZÖS, NAGY TÁROLÓ
- VÍZÓRÁK CSERÉJE MEGTÖRTÉNT
Frekventált helyen, szép park mellett, közelben a piactéri bevásárló központ, iskola, óvoda, játszótér.
Lépjen kapcsolatba velünk még ma és fedezze fel az ingatlan által kínált lehetőségeket!
Elégedett vásárlóink bíznak bennünk - Ön is közéjük tartozhat!
Az OTP Ingatlanpont teljes körű ügyintézéssel áll az eladók és a vevők rendelkezésére! A kínálatunkból választott ingatlan finanszírozásához kedvezményes hitelt - és megoldásokat kínálunk. Az adásvételi szerződés megkötéséhez igény szerint megbízható ügyvédi közreműködést biztosítunk, és segítséget nyújtunk az adásvételhez kapcsolódó ügyek intézéséhez. Ha felkeltette ez a lakás az érdeklődését, hívjon bizalommal!
Referencia szám: M300915
Tulajdonságok
Panellakás
Jó állapotú
Távfűtés
1980
Nem adta meg a hirdető
Vedd fel a kapcsolatot a hirdetővel
Papp-Horváth Katalin OTPip - Budapest I. kerület Fő utca 7 - OTP Ingatlanpont Iroda Az iroda összes hirdetése
+36 30 400 1
Hitelkalkulátor
Második évtől
294 362 Ft A 13. hónaptól
7,99%
Végig fix Futamidő: 20 év Banki visszahívás
Az OTP Bank munkatársai a neked megfelelő napszakban veszik fel veled a kapcsolatot.Hitelfelvétel esetén akár egy héttel rövidebb lehet az ügyintézés.
Ez az ingatlan a nálunk meglévő adatok alapján azonnali értékbecslésre alkalmas lehet.
A becslés a hirdető által megadott adatokon alapul. A jelen tájékoztatás nem minősül ajánlattételnek és nem teljes körű, az egyes feltételek a hitelbírálat eredményétől függően változhatnak. Kérjük, a részletekről tájékozódj az OTP Bank fiókjaiban vagy az OTP Bank honlapján közzétett vonatkozó Üzletszabályzatokból és Hirdetményekből.
Vedd fel a kapcsolatot a hirdetővel
Papp-Horváth Katalin OTPip - Budapest I. kerület Fő utca 7 - OTP Ingatlanpont Iroda Az iroda összes hirdetése
+36 30 400 1
Vedd fel a kapcsolatot a hirdetővel
Papp-Horváth Katalin OTPip - Budapest I. kerület Fő utca 7 - OTP Ingatlanpont Iroda Az iroda összes hirdetése
+36 30 400 1
UI_KIT.CHARACTER_COUNTER__COMPONENT.REMAINING_SPACE__SR_ONLYUI_KIT.CHARACTER_COUNTER__COMPONENT.MAXIMUM_CHARACTER__SR_ONLY
Hasonló eladó ingatlanok Százhalombattán
Frissítve: 9 napja

20
Battai Új Lakások
71 M Ft 1 365 385 Ft/m²
Eladó lakás, Százhalombatta

Frissítve: 9 napja

20
Battai Új Lakások
73 M Ft 1 403 846 Ft/m²
Eladó lakás, Százhalombatta

Frissítve: ma

6
66,5 M Ft 910 958 Ft/m²
Eladó lakás, Százhalombatta

Fedezd fel a
hasonló lakásokat!Még további lakások Százhalombattán 68,4 M Ft körüli értékben
Tovább a hirdetésekhez Frissítve: 12 napja

20
68,4 M Ft 963 381 Ft/m²
Eladó lakás, Százhalombatta

Frissítve: 13 napja

20
68,4 M Ft 963 380 Ft/m²
Eladó lakás, Százhalombatta

Frissítve: 7 napja

20
68,4 M Ft 963 380 Ft/m²
Eladó lakás, Százhalombatta


Töltsd fel hirdetésed ingyenesen!
Egyszerű