

+9 fotó
Hirdetéskód: 8728013
Referenciaszám: 387969
Feltöltve: 4 napja
Szeged eladó panellakás 2 szobás: 49,5 millió Ft
49,5 millió Ft
900 000 Ft/m²
55 m²
2 szoba
3. emelet
Eladó panellakás Szeged, 55nm, 49.500.000Ft - Rókusi körút
FELÚJÍTOTT, ERKÉLYES PANELLAKÁS A RÓKUSI KÖRÚTON
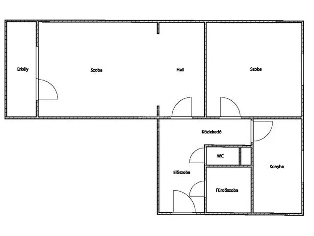
Eladóvá vált egy 55 m²-es, 2 szoba + hall elrendezésű, 3. emeleti panellakás a közkedvelt Rókusi körúton. A lakás erkéllyel rendelkezik, amely redőnyözött és hangszigetelt nyílászáróval ellátott, így a körút forgalma a lakásban egyáltalán nem hallatszik.
FŐBB JELLEMZŐK
Alapterület: 55 m²
Emelet: 3. emelet
Elrendezés: 2 szoba + hall, konyha, fürdőszoba, külön WC, erkély
A közelmúltban műszaki és esztétikai felújításon esett át.
- új, egyedi igények alapján tervezett konyhabútor
- fürdőszoba és WC mennyezetig burkolva
- új hidegburkolat a közlekedőben és a konyhában
- teljes elektromos hálózat korszerűsítve
- biztonsági bejárati ajtó cserélve
Erkély: redőnyözött, zajszigetelt nyílászárókkal felszerelve
Állapot: azonnal költözhető, esztétikus és praktikus otthon
ELHELYEZKEDÉS ÉS KÖRNYÉK
✔ Frekventált, de mégis élhető környék, minden fontos szolgáltatás (bevásárlási lehetőség, gyógyszertár, iskola, óvoda, tömegközlekedés) a közelben.
✔ Kiváló közlekedés – a belváros gyorsan és könnyen elérhető.
✔ Kulturált lakóközösség, rendezett lépcsőház.
Garázs igény szerint tovább bérelhető (közvetlen a lakás alatt)
Ez az ingatlan ideális választás lehet családoknak, fiatal pároknak, de befektetésnek is, hiszen elhelyezkedése és állapota miatt könnyen bérbe adható. ...TOVÁBBI, TÖBBEZRES INGATLAN KÍNÁLAT: www.gdn-ingatlan.hu - GDN azonosító: 387969
Tulajdonságok
Panellakás
Felújított
Távfűtés
1981
4 m²
Nem adta meg a hirdető
Vedd fel a kapcsolatot a hirdetővel
+36 70 602 8
Hitelkalkulátor
Második évtől
213 025 Ft A 13. hónaptól
7,99%
Végig fix Futamidő: 20 év Banki visszahívás
Az OTP Bank munkatársai a neked megfelelő napszakban veszik fel veled a kapcsolatot.Hitelfelvétel esetén akár egy héttel rövidebb lehet az ügyintézés.
Ez az ingatlan a nálunk meglévő adatok alapján azonnali értékbecslésre alkalmas lehet.
A becslés a hirdető által megadott adatokon alapul. A jelen tájékoztatás nem minősül ajánlattételnek és nem teljes körű, az egyes feltételek a hitelbírálat eredményétől függően változhatnak. Kérjük, a részletekről tájékozódj az OTP Bank fiókjaiban vagy az OTP Bank honlapján közzétett vonatkozó Üzletszabályzatokból és Hirdetményekből.
Vedd fel a kapcsolatot a hirdetővel
+36 70 602 8
Vedd fel a kapcsolatot a hirdetővel
+36 70 602 8
UI_KIT.CHARACTER_COUNTER__COMPONENT.REMAINING_SPACE__SR_ONLYUI_KIT.CHARACTER_COUNTER__COMPONENT.MAXIMUM_CHARACTER__SR_ONLY
Hasonló eladó ingatlanok Rókus városrészben
Frissítve: 10 napja

12
52,9 M Ft 998 113 Ft/m²
Eladó lakás, Szeged, Rókus
Frissítve: ma

9
47,5 M Ft 753 968 Ft/m²
Eladó lakás, Szeged, Rókus
Frissítve: ma

2
46,49 M Ft 948 775 Ft/m²
Eladó lakás, Szeged, Rókus

Fedezd fel a
hasonló lakásokat!Még további lakások Szeged, Rókus városrészben 49,5 M Ft körüli értékben
Tovább a hirdetésekhez Feltöltve: 6 hónapja

1
47,9 M Ft 694 203 Ft/m²
Eladó lakás, Szeged, Rókus
Frissítve: 23 napja

10
52,8 M Ft 942 857 Ft/m²
Eladó lakás, Szeged, Rókus
Frissítve: ma

9
52,99 M Ft 999 811 Ft/m²
Eladó lakás, Szeged, Rókus

Töltsd fel hirdetésed ingyenesen!
Egyszerű