+14 fotó
Hirdetéskód: 8852379
Referenciaszám: M319298-5124628
Frissítve: 13 napja
Tiszaújváros eladó panellakás 1+2 fél szobás: 35 millió Ft
35 millió Ft
636 364 Ft/m²
55 m²
1+2 fél szoba
6. emelet
Eladó Lakás, Tiszaújváros
Családias ingatlan eladó, Tiszaújváros belvárosában.
A lakás rendezett lépcsőház 6. emeletén található, gyönyörű kilátással a környező területre (liftes lépcsőház). Sétatávolságra minden ami a napi élethez elengedhetetlen. Óvoda, iskola, tömegközlekedés, boltok.
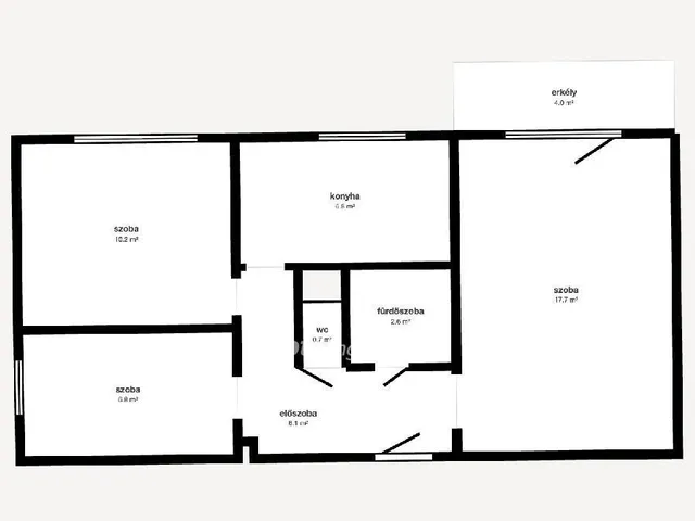
Az ingatlan 1+2 feles elosztású. A nagyobbik szoba jelenleg nappaliként funkcionál. A legkisebb szoba a háló szerepét tölti be. A 3. pedig pihenésre, olvasásra, vendégek fogadására. Elosztása miatt tökéletes lehet családosok részére is. A rendezett konyha minden igényt kielégít. A fürdőszoba - wc külön található. A bejárati ajtó több ponton záródó, biztonsági ajtó. A szobák laminált padlóval a lakás többi része járólappal burkolt. A nyílászárók fa nyílászárók,de tökéletesen karban vannak tartva. Az erkélyen a régi dróthálós üveg, modern polikarbonátra lett cserélve. Fűtése központi fűtés, hőleadás radiátorokon keresztül. Az ingatlanhoz természetesen közös tároló is tartozik. A tulajdonosok 1-2 dolog kivételével teljesen bútorozottan kínálják eladásra a lakást.
Amennyiben a hirdetés felkeltette az érdeklődését, esetleg lenne még kérdése, hívjon bizalommal!
Személyes megtekintés hétvégén lehetséges.
OTP Banki hátterünknek köszönhetően finanszírozási igényekben (pl. Otthon Start Hitelprogram, Babaváró, Falusi CSOK, CSOK Plusz, Lakáshitel, Személyi kölcsön stb.), illetve biztosítások tekintetében is díjmentesen, soron kívüli ügyintézéssel segítem ügyfeleim!
REFERENCIASZÁM: M315890
https://drive.google.com/drive/folders/1kTpxzKHNDPGFVUQfJwU0QnfD2Mrc2-UI?usp=drive_link
Tulajdonságok
Panellakás
Jó állapotú
Távfűtés
1978
Nem adta meg a hirdető
Vedd fel a kapcsolatot a hirdetővel
Klubert Gergő OTPip - Miskolc Szemere Bertalan utca 20 - OTP Ingatlanpont Iroda Az iroda összes hirdetése
+36 70 907 0
Hitelkalkulátor
Második évtől
150 624 Ft A 13. hónaptól
7,99%
Végig fix Futamidő: 20 év Banki visszahívás
Az OTP Bank munkatársai a neked megfelelő napszakban veszik fel veled a kapcsolatot. A becslés a hirdető által megadott adatokon alapul. A jelen tájékoztatás nem minősül ajánlattételnek és nem teljes körű, az egyes feltételek a hitelbírálat eredményétől függően változhatnak. Kérjük, a részletekről tájékozódj az OTP Bank fiókjaiban vagy az OTP Bank honlapján közzétett vonatkozó Üzletszabályzatokból és Hirdetményekből.
Vedd fel a kapcsolatot a hirdetővel
Klubert Gergő OTPip - Miskolc Szemere Bertalan utca 20 - OTP Ingatlanpont Iroda Az iroda összes hirdetése
+36 70 907 0
Vedd fel a kapcsolatot a hirdetővel
Klubert Gergő OTPip - Miskolc Szemere Bertalan utca 20 - OTP Ingatlanpont Iroda Az iroda összes hirdetése
+36 70 907 0
UI_KIT.CHARACTER_COUNTER__COMPONENT.ACTUAL_CHARACTER__SR_ONLY UI_KIT.CHARACTER_COUNTER__COMPONENT.MAXIMUM_CHARACTER__SR_ONLY
Hasonló eladó ingatlanok Tiszaújvárosban
Frissítve: 5 napja
10
37,9 M Ft 631 667 Ft/m²
Eladó lakás, Tiszaújváros
Frissítve: 13 napja
15
34,9 M Ft 581 667 Ft/m²
Eladó lakás, Tiszaújváros

Frissítve: 13 napja
17
35 M Ft 636 364 Ft/m²
Eladó lakás, Tiszaújváros


Fedezd fel a
hasonló lakásokat!Még további lakások Borsod-Abaúj-Zemplén megyében 35 M Ft körüli értékben
Tovább a hirdetésekhez Frissítve: 7 napja
15
34,9 M Ft 581 667 Ft/m²
Eladó lakás, Tiszaújváros

Frissítve: 7 napja
15
34,9 M Ft 581 667 Ft/m²
Eladó lakás, Tiszaújváros

Frissítve: 13 napja
17
35 M Ft 636 364 Ft/m²
Eladó lakás, Tiszaújváros

