

+12 fotó
Hirdetéskód: 8729440
Referenciaszám: H504798-5049733
Feltöltve: 3 napja
Budapest XVIII. kerület eladó sorház 3 szobás: 109,9 millió Ft
109,9 millió Ft
915 833 Ft/m²
120 m²
90 m²
3 szoba
Eladó ház Budapest 18. ker., Gloriett-telep
XVIII. kerület Gloriett-telep, Gilice téren csendes, rendezett és nyugodt családi sorházas részén eladó egy háromszintes lakóház.
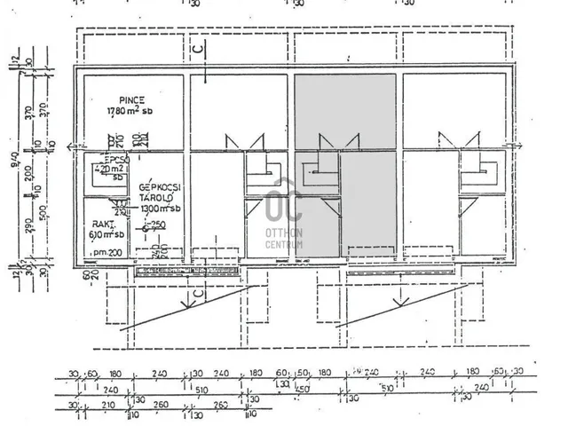
Az ingatlan a 90-es években épült, a felső két szinten összesen 80 m2 lakóterülettel rendelkezik, pinceszinten egy 41 nm-es zárt garázs + tárolóval. Ezen felül tartozik hozzá egy 30 nm zárt kertrész is, amit a nappaliból lehet megközelíteni, a garázs előtt pedig plusz egy autónyi beálló van még.
A pinceszinten garázs, szerelősarok és külön tároló található, a földszinten konyha, kamra, WC, előszoba és nappali. A pinceszintről csigalépcső vezet a földszintre és az első emeletre, ahol egy félszoba és egy nagy hálószoba található a tágas előtér és a fürdőszoba mellett.
A padlás hatalmas tároló területtel rendelkezik, igény szerint beépíthető.
Az ingatlan pár éve felújításon esett keresztül, kazáncsere, fürdőszoba és WC felújítás, légkondicionáló beszerelése, a garázsban tusoló kiépítése és melegvíz bojler beépítése, garázskapu csere történt. Az összes ablak és a bejárati ajtó is ki lett cserélve, redőnyös mindegyik.
A környéket kiváló közlekedés és infrastruktúra jellemzi: Spar, DM, Aldi, Lidl, Penny pár perc séta távolságban. Buszmegállók 5-7 perc sétára.
Bókay-kert közvetlen szomszédságában, a Halmi erdő közelében található, ami kitűnő lehetőséget kínál sportolásra vagy akár kutyasétáltatásra.
Osztatlan közös tulajdonú az ingatlan, de minden elszámolás saját mérő alapján történik.
Az ingatlan per- és tehermentes és hitelezhető.
Fontos, hogy most van folyamatban az önálló HRSZ megállapítása!
Bővebb tájékoztatás vagy megtekintés esetén hívjon bizalommal a hét bármely napján!
Bekéné Müller Cintia +36 (70) 454-5086
Referencia szám: H504798-ZE
Tulajdonságok
Sorház
Jó állapotú
Gázkazán
1991
Nem adta meg a hirdető
Vedd fel a kapcsolatot a hirdetővel
+36 70 465 6
Hitelkalkulátor
Második évtől
472 959 Ft A 13. hónaptól
7,99%
Végig fix Futamidő: 20 év Banki visszahívás
Az OTP Bank munkatársai a neked megfelelő napszakban veszik fel veled a kapcsolatot. A becslés a hirdető által megadott adatokon alapul. A jelen tájékoztatás nem minősül ajánlattételnek és nem teljes körű, az egyes feltételek a hitelbírálat eredményétől függően változhatnak. Kérjük, a részletekről tájékozódj az OTP Bank fiókjaiban vagy az OTP Bank honlapján közzétett vonatkozó Üzletszabályzatokból és Hirdetményekből.
Vedd fel a kapcsolatot a hirdetővel
+36 70 465 6
Vedd fel a kapcsolatot a hirdetővel
+36 70 465 6
UI_KIT.CHARACTER_COUNTER__COMPONENT.REMAINING_SPACE__SR_ONLYUI_KIT.CHARACTER_COUNTER__COMPONENT.MAXIMUM_CHARACTER__SR_ONLY
Hasonló eladó ingatlanok Gloriett-telep városrészben
Frissítve: 3 hónapja

1
111 M Ft 822 222 Ft/m²
Eladó sorház, Budapest XVIII. kerület, Gloriett-telep
Frissítve: 16 napja

14
109,9 M Ft 915 833 Ft/m²
Eladó sorház, Budapest XVIII. kerület, Gloriett-telep

Frissítve: 16 napja

10
99,9 M Ft 908 182 Ft/m²
Eladó ikerház, Budapest XVIII. kerület, Gloriett-telep

Fedezd fel a
hasonló házakat!Még további házak Budapest XVIII. kerületben 109,9 M Ft körüli értékben
Tovább a hirdetésekhez Frissítve: 11 napja

18
99,9 M Ft 908 182 Ft/m²
Eladó ikerház, Budapest XVIII. kerület, Gloriett-telep

Frissítve: ma

14
109,9 M Ft 915 833 Ft/m²
Eladó sorház, Budapest XVIII. kerület, Gloriett-telep

Frissítve: 3 napja

6
114,99 M Ft 927 339 Ft/m²
Eladó családi ház, Budapest XVIII. kerület


Töltsd fel hirdetésed ingyenesen!
Egyszerű