+6 fotó
Hirdetéskód: 8838977
Referenciaszám: HK-5111760-5111760
Feltöltve: 2 napja
Cegléd eladó sorház 4 szobás: 68 millió Ft
68 millió Ft
790 698 Ft/m²
86 m²
1006 m²
4 szoba
Eladó sorház, Cegléd
*86 nm-es MODERN és KÉNYELMES ÚJÉPÍTÉSŰ belső kétszintes lakás eladó Cegléden*
Kivételes lehetőség várja Önt Cegléden, csendes környezetben, ahol a nyugodt élet minden kényelmét élvezheti, közel a városi szolgáltatásokhoz. A lakás egy modern és exkluzív, 4 albetétes társasházban helyezkedik el. Az otthon melegéről 3 féle fűtési rendszer gondoskodik, tökéletes komfortot és gazdaságosságot biztosítva: egy GREE hőszivattyú, egy hűtő-fűtő klíma illetve egy BAXI kondenzációs gázkazán, így biztosan optimális energiamixet alakíthat ki magának.
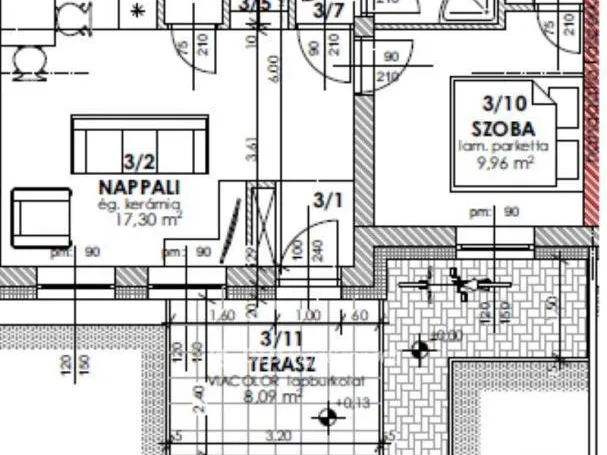
A 4 szobás otthon praktikusan elrendezett, földszintjén tágas nappali, egy szoba, konyha, gardrób, fürdőszoba, WC és kamra várja Önt, illetve egy terasz, melyeket szívesen megoszt majd barátaival. Az emeleten három további hálószoba és egy külön WC található.
Az építkezés a végső simításoknál tart, így a vevő még személyre szabhatja a burkolatokat az egyéniségének megfelelően. Az átadás várhatóan 2024 végén történik.
Cegléd gazdag történelmi örökséggel rendelkezik, mely a városközpontban és környékén jól felfedezhető. A helyi piac, hangulatos kávézók és éttermek színesítik a mindennapokat. Az ingatlan könnyen megközelíthető, mind autóval, mind tömegközlekedéssel. A városka közel fekszik a fővároshoz és környékéhez, így akár ingázásra is alkalmas.
Ne hagyja ki ezt a páratlan lehetőséget, hogy otthont találjon egy eleven és barátságos közösségben. Kérjük, keressen minket bátran további részletekért!
Tulajdonságok
Sorház
Új építésű
Házközponti
2024
Nem adta meg a hirdető
Vedd fel a kapcsolatot a hirdetővel
+36 70 572 0
Hitelkalkulátor
Második évtől
292 641 Ft A 13. hónaptól
7,99% 8,49%
Végig fix Futamidő: 20 év Banki visszahívás
Az OTP Bank munkatársai a neked megfelelő napszakban veszik fel veled a kapcsolatot. A becslés a hirdető által megadott adatokon alapul. A jelen tájékoztatás nem minősül ajánlattételnek és nem teljes körű, az egyes feltételek a hitelbírálat eredményétől függően változhatnak. Kérjük, a részletekről tájékozódj az OTP Bank fiókjaiban vagy az OTP Bank honlapján közzétett vonatkozó Üzletszabályzatokból és Hirdetményekből.
Vedd fel a kapcsolatot a hirdetővel
+36 70 572 0
Vedd fel a kapcsolatot a hirdetővel
+36 70 572 0
UI_KIT.CHARACTER_COUNTER__COMPONENT.REMAINING_SPACE__SR_ONLYUI_KIT.CHARACTER_COUNTER__COMPONENT.MAXIMUM_CHARACTER__SR_ONLY
Hasonló eladó ingatlanok Cegléden
Frissítve: 13 napja
20
Vadvirág Lakópark
73,81 M Ft 946 282 Ft/m²
Eladó sorház, Cegléd

Frissítve: 26 napja
16
69,9 M Ft 768 132 Ft/m²
Eladó családi ház, Cegléd
Frissítve: 24 napja
20
62,9 M Ft 507 258 Ft/m²
Eladó családi ház, Cegléd


Fedezd fel a
hasonló házakat!Még további házak Cegléden 68 M Ft körüli értékben
Tovább a hirdetésekhez Frissítve: 24 napja
10
63,5 M Ft 881 944 Ft/m²
Eladó ikerház, Cegléd

Frissítve: 4 hónapja
17
69,9 M Ft 706 061 Ft/m²
Eladó családi ház, Cegléd

Frissítve: 24 napja
20
62,9 M Ft 507 258 Ft/m²
Eladó családi ház, Cegléd


