+17 fotó
Hirdetéskód: 8922865
Referenciaszám: M324518
Frissítve: 12 napja
Kajászó eladó sorház 4 szobás: 99,9 millió Ft
99,9 millió Ft
839,5 ezer Ft/m² *
* A m² árat a hirdető adta meg.
119 m²
200 m²
4 szoba
Leírás
Kajászó központjában, egy zöldövezeti mellékutcában eladó 4 db nappali + 2 és 3 hálószobás sorházi lakás saját garázzsal, terasszal, erkéllyel és saját használatú kertrésszel.
A lakásokat sok éves tapasztalattal rendelkező kivitelező építi, a ház mellett áll egy korábban elkészült, hasonló sorház.
Helyiségeiben igény szerint választhatóak a hideg és meleg burkolatok a kivitelező által meghatározott értékben (műszaki tartalom).
A lakások a garázsoknál kerülnek összeépítésre, nincs közös lakóhelyiséggel érintkező közös falazatuk, ezáltal szeparáltak egymástól.
Várható átadás: 2026. ősz
-falazata: 30-as Porotherm tégla, szigetelés: 15 cm-es homlokzati hőszigetelő rendszer, tetőcserép fedéssel épülnek.
Műanyag nyílászárók kívül, választható fóliás ajtók belül, fűtése gáz kondenzációs kazánnal, radiátoros hőleadással, ajándék klíma a lakásokhoz!
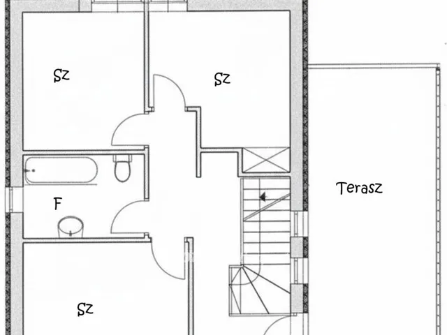
Helyiségek:
I. és IV. LAKÁS
Földszint (53,62 m2)
Előtér: 4,29 m2
WC: 1,98 m2
Nappali: 33,56 m2
Konyha-étkező: 9,45 m2
Lépcsőház-Tároló 4,34 m2
Külső terület (Terasz): 21,47 m2
Külső terület (Gépkocsi beálló): 18,60 m2
Emelet (45 m2)
Közlekedő: 11,07 m2
Fürdő: 4,44 m2
Szoba: 11,78 m2
Szoba: 8,42 m2
Gardrób (félszoba) 5,72 m2
Mosókonyha 3,56 m2
Terasz: 20,4 m2
Össz nettó: 98,6 m2 + 20.15m2 (1/3 teraszok és garázs) 119 m2
II. és III. LAKÁS
Összes hasznos alapterület: 53,7 m2
Előtér: 4,30 m2
WC: 1,98 m2
Nappali: 33,67 m2
Konyha-étkező: 9,41 m2
Lépcsőház-Tároló 4,34 m2
Külső terület (Terasz): 21,47 m2
Külső terület (Gépkocsi beálló): 18,60 m2
Emelet (45,3 m2)
Közlekedő: 10,31 m2
Fürdő: 5,52 m2
Szoba: 12,86 m2
Szoba: 8,5 m2
Szoba 8,15 m2
Terasz: 20,4 m2
Össz nettó: 99 m2 + 20.15m2 (1/3 teraszok és garázs) 119 m2
A bruttó méretet a hasznos lakóterületből, valamint a teraszok, erkélyek és garázsok egyharmadát beleszámolva állapítottam meg.
A hirdetésben szereplő képek között vannak referencia- és látványképek is.
A részletekért keressen bizalommal!
Tulajdonságok
Sorház
2
Új építésű
Gázkazán
2026
41,9 m²
Nem adta meg a hirdető
Vedd fel a kapcsolatot a hirdetővel

+36 70 907 8
Hitelkalkulátor
Második évtől
429 924 Ft A 13. hónaptól
7,99% 8,49%
Végig fix Futamidő: 20 év Banki visszahívás
Az OTP Bank munkatársai a neked megfelelő napszakban veszik fel veled a kapcsolatot. A becslés a hirdető által megadott adatokon alapul. A jelen tájékoztatás nem minősül ajánlattételnek és nem teljes körű, az egyes feltételek a hitelbírálat eredményétől függően változhatnak. Kérjük, a részletekről tájékozódj az OTP Bank fiókjaiban vagy az OTP Bank honlapján közzétett vonatkozó Üzletszabályzatokból és Hirdetményekből.
Vedd fel a kapcsolatot a hirdetővel

+36 70 907 8
Vedd fel a kapcsolatot a hirdetővel

+36 70 907 8
UI_KIT.CHARACTER_COUNTER__COMPONENT.ACTUAL_CHARACTER__SR_ONLY UI_KIT.CHARACTER_COUNTER__COMPONENT.MAXIMUM_CHARACTER__SR_ONLY
Hasonló eladó ingatlanok Kajászón
Frissítve: 7 napja
11
93 millió Ft 664,3 ezer Ft/m²
Eladó családi ház, Kajászó, Szellőrózsa utca

Frissítve: 21 napja
8
93 millió Ft 775 ezer Ft/m²
Eladó családi ház, Kajászó

Frissítve: 13 napja
20
99,9 millió Ft 839,5 ezer Ft/m²
Eladó sorház, Kajászó


Fedezd fel a
hasonló házakat!Még további házak Fejér megyében 99,9 M Ft körüli értékben
Tovább a hirdetésekhez Frissítve: 13 napja
20
99,9 millió Ft 839,5 ezer Ft/m²
Eladó sorház, Kajászó

Frissítve: 11 napja
20
99,9 millió Ft 839,5 ezer Ft/m²
Eladó sorház, Kajászó

Frissítve: 1 napja
20
99,9 millió Ft 839,5 ezer Ft/m²
Eladó sorház, Kajászó

