+4 fotó
Hirdetéskód: 8915358
Feltöltve: 2 napja
Kecskemét eladó sorház 4 szobás: 139,8 millió Ft
139,8 millió Ft
1 331 429 Ft/m²
105 m²
100 m²
4 szoba
Kecskemét belvárosához közel eladó 4 db sorházi lakás!
Kecskemét belvárosához közel eladó 4 db sorházi lakás!
Átadás 2026 eleje !!!
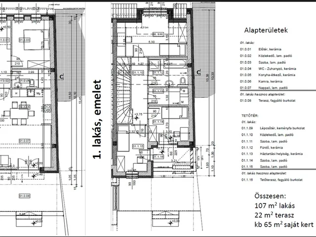
1. sorházi lakás107 nm, 22 nm-es terasz, 65 nm kert, udvari autó beálló - 149.445.000.-
2. sorházi lakás 108 nm, 25 nm terasz, 55 nm kert, beálló - 145.200.000.-
3. sorházi lakás 108 nm, 25 nm terasz, 55 nm kert, beálló - 145.200.000.-
4. sorházi lakás 103, 22 nm terasz, 55 nm kert, beálló - 139.800.000.-
Udvari parkolás carport megoldással !!! Minden helyhez elektromos töltési lehetőség !!!
Műszaki megoldások
• Minden lakás saját víz, áram és gázmérővel
• Az áram normál tarifával (3*16A)
• Minden lakáshoz 4,5 kWp-s önálló napelem saját inverterrel
• Padlófűtés, és hőszivattyús fali hűtő-fütő klímák minden helyiségben
• Kettős üzemelésű melegvíztároló (gáz+villany)
• Központi automata öntözőrendszer
• Elektromos alumínium redőnyök, szúnyoghálók
• Napellenző előkészítések
• A lakások nappalijában toló-bukó ajtók (Veka)
• TV, internet, wifi, riasztó, okos otthon
Értékesítés tervezett készültségi foka:
• Kulcsrakész átadás
• A mozgatható bútorok kivételével berendezve ( komplett fürdőszoba, beépített szekrény az előszobában, TV komód a földszinten, gépesített konyha - Bosch, Elektrolux, beépíatett hűtő, mikró, kerámialapos főzőlap, sütő, mosogatógép )
garázs ára: br. 13,6 millió forint
További információért keressen bizalommal!
Tulajdonságok
Sorház
2
Új építésű
Hőszivattyú
2026
Nem adta meg a hirdető
Vedd fel a kapcsolatot a hirdetővel
Saskó Anna Ingatlan Az iroda összes hirdetése
+36 70 670 7
Hitelkalkulátor
Második évtől
601 635 Ft A 13. hónaptól
7,99% 8,49%
Végig fix Futamidő: 20 év Banki visszahívás
Az OTP Bank munkatársai a neked megfelelő napszakban veszik fel veled a kapcsolatot. A becslés a hirdető által megadott adatokon alapul. A jelen tájékoztatás nem minősül ajánlattételnek és nem teljes körű, az egyes feltételek a hitelbírálat eredményétől függően változhatnak. Kérjük, a részletekről tájékozódj az OTP Bank fiókjaiban vagy az OTP Bank honlapján közzétett vonatkozó Üzletszabályzatokból és Hirdetményekből.
Vedd fel a kapcsolatot a hirdetővel
Saskó Anna Ingatlan Az iroda összes hirdetése
+36 70 670 7
Vedd fel a kapcsolatot a hirdetővel
Saskó Anna Ingatlan Az iroda összes hirdetése
+36 70 670 7
UI_KIT.CHARACTER_COUNTER__COMPONENT.ACTUAL_CHARACTER__SR_ONLY UI_KIT.CHARACTER_COUNTER__COMPONENT.MAXIMUM_CHARACTER__SR_ONLY
Hasonló eladó ingatlanok Bethlenváros városrészben
Frissítve: 16 napja
20
149 M Ft 876 471 Ft/m²
Eladó családi ház, Kecskemét, Bethlenváros

Frissítve: 3 napja
12
135 M Ft 1 285 714 Ft/m²
Eladó családi ház, Kecskemét, Bethlenváros
Frissítve: 16 napja
13
145 M Ft 580 000 Ft/m²
Eladó családi ház, Kecskemét


Fedezd fel a
hasonló házakat!Még további házak Kecskeméten 139,8 M Ft körüli értékben
Tovább a hirdetésekhez Frissítve: 3 hónapja
1
139,9 M Ft 635 909 Ft/m²
Eladó családi ház, Kecskemét, Vacsihegy
Frissítve: 3 napja
20
149 M Ft 827 778 Ft/m²
Eladó családi ház, Kecskemét

Frissítve: 7 napja
2
137,99 M Ft 730 106 Ft/m²
Eladó családi ház, Kecskemét

