Hirdetéskód: 8954301
Referenciaszám: 3071_1224
Feltöltve: 1 napja
Monor eladó sorház 1+3 fél szobás: 77 millió Ft
77 millió Ft
1 000 000 Ft/m²
77 m²
50 m²
1+3 fél szoba
Leírás
HASZNÁLJA KI A CSOK+ KAMATTÁMOGATOTT HITEL ELŐNYEIT, A 4% ILLETÉKKEDVEZMÉNYT, VALAMINT A 3%-OS OTTHON START HITELT!!!!!!
10 % FOGLALÓVAL LEKÖTHETŐ!!!
Monor kertvárosában 2 db társasházi lakás épül saját telekkel, közös kocsibeállóval melyek MÁR FOGLALÓZHATÓAK!!!
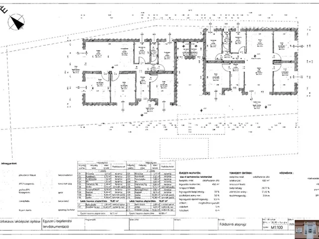
Az 1. lakás lakóterülete 76,87 m2, melyben előszoba (5,11 m2), nappali (18,36 m2), konyha-étkező (8,14 m2), közlekedő (2,75 m2), 1. szoba (10,15 m2), 2. szoba (9,49 m2), 3. szoba (9,36), fürdőszoba (7,12 m2), WC (1,35 m2), és háztartási helyiség (5,04 m2) található, valamint egy fedett terasz (12,42 m2) van a bejárat előtt. A két lakás nem ér össze, közöttük kerti tároló (2,81 m2) van.
Az ingatlanhoz kb. 50 m2 saját telek tartozik.
Fűtés: hőszivattyúval („H” tarifa), hőleadás padlófűtéssel, valamint inverteres klímával.
Közművek közül vezetékes víz, villany („H” tarifával), és csatorna bevezetésre kerül.
ÁRA: 77.000.000.- Ft
A 2. lakás lakóterülete 76,07 m2, melyben előszoba (5,11 m2), nappali (18,11 m2), konyha-étkező (3,86 m2), közlekedő (3,32 m2), 1. szoba (10,15 m2), 2. szoba (10,98 m2), 3. szoba (10,98), fürdőszoba (7,08 m2), WC (1,44 m2), és háztartási helyiség (5,04 m2) található, valamint a bejárati ajtó előtt egy előtér (4,01 m2), és egy fedett terasz (10,00 m2) kapcsolódik a nappalihoz. A két lakás között kerti tároló (2,81 m2) van.
Az ingatlanhoz kb. 400 m2 saját telek tartozik.
Fűtés: hőszivattyúval („H” tarifa), hőleadás padlófűtéssel, valamint inverteres klímával.
Közművek közül a villany („H” tarifával), és vezetékes víz kerül bevezetésre, a szennyvízelvezetés zárt rendszerű emésztőbe történik.
ÁRA: 80.000.000.- Ft
A lakások ytongból épülnek 10 cm külső dryvit szigeteléssel, a födémet 30 cm-es kőzetgyapottal szigetelik, a nyílászárók 3 rétegű, hőszigetelt műanyagok. A locsoláshoz fúrt kút van.
Elektromos kapu!
Burkolatok 10.000.- Ft/m2 árig választhatóak.
Átadás: 2026. október
DÍJMENTES HITELÜGYINTÉZÉS IRODÁNKBAN!!!
OTTHON START HITEL, CSOK+, BABAVÁRÓ KÖLCSÖN, KAMATTÁMOGATOTT LAKÁSHITELEK, ….
2003 ÓTA AZ ÖNÖK BIZALMÁBAN!
Tulajdonságok
Sorház
1
Nem adta meg a hirdető
Vedd fel a kapcsolatot a hirdetővel
+36 30 625 5
Hitelkalkulátor
Második évtől
331 373 Ft A 13. hónaptól
7,99%
Végig fix Futamidő: 20 év Banki visszahívás
Az OTP Bank munkatársai a neked megfelelő napszakban veszik fel veled a kapcsolatot. A becslés a hirdető által megadott adatokon alapul. A jelen tájékoztatás nem minősül ajánlattételnek és nem teljes körű, az egyes feltételek a hitelbírálat eredményétől függően változhatnak. Kérjük, a részletekről tájékozódj az OTP Bank fiókjaiban vagy az OTP Bank honlapján közzétett vonatkozó Üzletszabályzatokból és Hirdetményekből.
Vedd fel a kapcsolatot a hirdetővel
+36 30 625 5
Vedd fel a kapcsolatot a hirdetővel
+36 30 625 5
UI_KIT.CHARACTER_COUNTER__COMPONENT.ACTUAL_CHARACTER__SR_ONLY UI_KIT.CHARACTER_COUNTER__COMPONENT.MAXIMUM_CHARACTER__SR_ONLY
Hasonló eladó ingatlanok Monoron
Feltöltve: 8 napja
18
69,8 M Ft 997 143 Ft/m²
Eladó családi ház, Monor
Frissítve: 2 napja
20
82 M Ft 1 012 346 Ft/m²
Eladó ikerház, Monor

Frissítve: ma
20
82 M Ft 1 012 346 Ft/m²
Eladó ikerház, Monor


Fedezd fel a
hasonló házakat!Még további házak Monoron 77 M Ft körüli értékben
Tovább a hirdetésekhez Frissítve: ma
20
71,9 M Ft 836 047 Ft/m²
Eladó családi ház, Monor

Frissítve: 28 napja
20
78 M Ft 325 000 Ft/m²
Eladó egyéb ház, Monor
Frissítve: ma
20
82 M Ft 1 012 346 Ft/m²
Eladó ikerház, Monor

