+17 fotó
Hirdetéskód: 8831170
Referenciaszám: M318951-5109468
Feltöltve: 1 napja
Nyíregyháza eladó sorház 4+1 fél szobás: 53 millió Ft
53 millió Ft
582 418 Ft/m²
91 m²
245 m²
4+1 fél szoba
Eladó Ház, Nyíregyháza
Tágas otthon kerttel és terasszal Nyíregyháza Ságvári Kertvárosában.
Ha olyan otthont keres, ahol a városi kényelem és a családi házas életérzés tökéletes egyensúlyban van, ezt az ingatlant érdemes megnéznie. Nyíregyháza közkedvelt Ságvári Kertvárosában, kiválóan megközelíthető, mégis nyugodt környezetben kínálunk eladásra egy 127 nm-es, több szintes sorházi házat, saját pihenőkerttel és garázzsal.
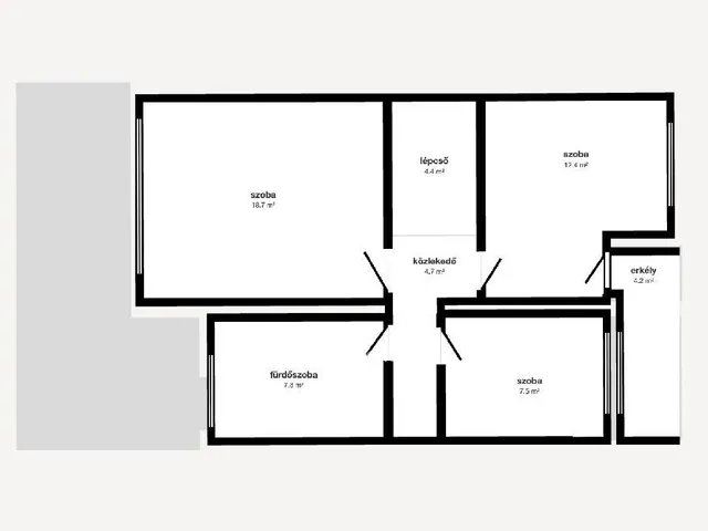
Az ingatlan belső terei kifejezetten élhetőek. A nagy nappali a ház szíve, ahonnan közvetlen kijárat nyílik a 20 nm-es teraszra, ideális helyszínt biztosítva családi reggelikhez, baráti beszélgetésekhez vagy esti pihenéshez. A 4,5 szobás kialakítás lehetővé teszi, hogy minden családtagnak saját tere legyen, miközben a közös életterek tágasak és világosak.
A ház földszint plusz két emeletes elrendezésű, erkéllyel és egy 24 nm-es padlástérrel, amely kiválóan alkalmas tárolásra vagy akár további funkció kialakítására. Két fürdőszoba szolgálja a mindennapi kényelmet, a fűtésről gázkonvektorok gondoskodnak, míg a nappaliban található gyönyörű cserépkályha nemcsak meleget, hanem igazi otthonos hangulatot is ad a háznak.
A 245 nm-es, intim pihenőkert ritka érték ebben a városrészben, ideális gyerekeknek, kertészkedéshez vagy egyszerűen csak kikapcsolódáshoz. A 21 nm-es garázs biztonságos parkolást és extra tárolási lehetőséget kínál.
Ez az ingatlan tökéletes választás mindazoknak, akik nem szeretnének kompromisszumot kötni a tér, a kert és a városi elhelyezkedés között, és egy hosszú távon is élhető, szerethető otthont keresnek Nyíregyháza egyik legjobb kertvárosi részén.
OTP Banki hátterünknek köszönhetően finanszírozási igényekben (pl. Otthon Start Hitelprogram, Babaváró, Falusi CSOK, CSOK Plusz, Lakáshitel, Személyi kölcsön stb.), illetve biztosítások tekintetében is díjmentesen, soron kívüli ügyintézéssel segítem ügyfeleim!
Referencia szám: M318951
Tulajdonságok
Sorház
Átlagos
Gáz (konvektor)
1987
A
Vedd fel a kapcsolatot a hirdetővel
Takács Jánosné OTPip - Nyíregyháza Dózsa György út 32-34 - OTP Ingatlanpont Iroda Az iroda összes hirdetése
+36 20 510 2
Hitelkalkulátor
Második évtől
228 088 Ft A 13. hónaptól
7,99%
Végig fix Futamidő: 20 év Banki visszahívás
Az OTP Bank munkatársai a neked megfelelő napszakban veszik fel veled a kapcsolatot. A becslés a hirdető által megadott adatokon alapul. A jelen tájékoztatás nem minősül ajánlattételnek és nem teljes körű, az egyes feltételek a hitelbírálat eredményétől függően változhatnak. Kérjük, a részletekről tájékozódj az OTP Bank fiókjaiban vagy az OTP Bank honlapján közzétett vonatkozó Üzletszabályzatokból és Hirdetményekből.
Vedd fel a kapcsolatot a hirdetővel
Takács Jánosné OTPip - Nyíregyháza Dózsa György út 32-34 - OTP Ingatlanpont Iroda Az iroda összes hirdetése
+36 20 510 2
Vedd fel a kapcsolatot a hirdetővel
Takács Jánosné OTPip - Nyíregyháza Dózsa György út 32-34 - OTP Ingatlanpont Iroda Az iroda összes hirdetése
+36 20 510 2
UI_KIT.CHARACTER_COUNTER__COMPONENT.REMAINING_SPACE__SR_ONLYUI_KIT.CHARACTER_COUNTER__COMPONENT.MAXIMUM_CHARACTER__SR_ONLY
Hasonló eladó ingatlanok Nyíregyházán
Frissítve: 27 napja
15
55 M Ft 550 000 Ft/m²
Eladó családi ház, Nyíregyháza

Frissítve: 4 hónapja
11
55 M Ft 550 000 Ft/m²
Eladó családi ház, Nyíregyháza, Oros
Frissítve: 27 napja
6
58 M Ft 527 273 Ft/m²
Eladó ikerház, Nyíregyháza


Fedezd fel a
hasonló házakat!Még további házak Nyíregyházán 53 M Ft körüli értékben
Tovább a hirdetésekhez Frissítve: 25 napja
20
56,5 M Ft 403 571 Ft/m²
Eladó családi ház, Nyíregyháza
Frissítve: 25 napja
20
56 M Ft 823 529 Ft/m²
Eladó családi ház, Nyíregyháza
Frissítve: 17 napja
10
52,5 M Ft 375 000 Ft/m²
Eladó családi ház, Nyíregyháza

