+4 fotó
Hirdetéskód: 8972256
Referenciaszám: 729500128
Feltöltve: 3 napja
Vác eladó sorház 4 szobás: 97,5 millió Ft
97,5 millió Ft
1 059 783 Ft/m²
92 m²
165 m²
4 szoba
4685: Vác modern, új építésű ingatlanokkal övezett lakóparkjában sorházi lakások eladók!!
Kedves Otthonkereső!!
Vác modern, új építésű ingatlanokkal övezett lakóparkjában sorházi lakások eladók!!
CÉGES ÉPÍTKEZÉS, az aktuális állami támogatások valamint kedvezményes, kamattámogatott hitelek, az ügyintézésben díjmentesen segítünk!
Az építő munkájára jellemző a megbízhatóság és igényesség, leinformálható, referencia házai megtekinthetők.
A lakások bruttó területe 92 nm, nettó lakóterület 87,15 nm + terasz + a 2-es lakásnál 2,8 nm külső tároló, belső kétszintes, nappali + három hálószobás, dupla-komfortos elrendezéssel.
Az egységek egymással kizárólag a tárolókon keresztül érintkeznek, ami nagyobb nyugalmat és elszeparáltságot biztosít. A lakásokhoz egy-egy 165 nm-es, saját kert is tartozik.
Az épület korszerű megoldásokkal és átgondolt térszervezéssel készül, amely kényelmes, jól használható életteret kínál.
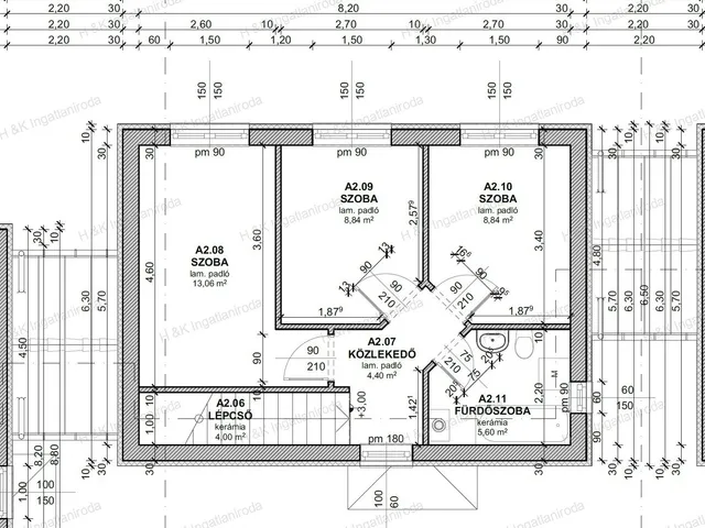
A földszinten (42,41 nm) tágas, amerikai konyhás nappali 33,26 nm, előtér 2,88 nm, zuhanyzós fürdőszoba 4,32 nm, lépcső alatti tároló/kamra 1,95 nm, valamint 9,6 nm-es terasz kerül kialakításra. Az emeleti szinten (44,74 nm) három külön nyíló hálószoba kap helyet (kettő 8,84 nm-es, egy 13,06 nm-es), továbbá 5,6 nm-es fürdőszoba és 4,4 nm-es közlekedő egészíti ki a lakóteret.
Az épület magas műszaki színvonalon valósul meg: a külső falazat Porotherm 30-as téglából készül, amelyet 15 cm vastag dryvit hőszigetelés egészít ki. A födém vasbeton szerkezetű, ásványgyapot szigeteléssel ellátva, a tetőt pedig tartós beton cserépfedés borítja. A nyílászárók háromrétegű üvegezéssel ellátott műanyag ablakok, amelyek kiváló hő- és hangszigetelést biztosítanak.
A fűtést és a használati meleg vizet korszerű hőszivattyús rendszer szolgáltatja, padlófűtéses hő leadással, a fürdőszobákban pedig törölközőszárítós radiátorok is helyet kapnak. Az ingatlan klíma előkészítéssel és riasztórendszer kiállással is rendelkezik.
A külső környezet rendezett kialakítású: térkövezett járda és gépkocsi beálló készül, valamint a vételár tartalmazza a kerítést, a személy- és autóbejárót, illetve a terv szerinti térburkolatokat is.
A lakás kulcsrakész állapotban kerül átadásra, konyhabútor nélkül, ugyanakkor a burkolatok, szaniterek és belső ajtók választhatók, a megadott műszaki tartalom szerinti kereteken belül a vételár részét képezve, az új tulajdonos saját ízlésére formálhatja az otthont.
A környék ellátottsága kiváló: a közelben üzletek, gyógyszertár, iskola és óvoda egyaránt megtalálható. A vásárlás során teljes körű támogatást nyújtunk, beleértve a díjmentes hitel-ügyintézést és a jogi hátteret is.
Ára: 97,5 M Ft/lakás Azonosító: 4685
Tulajdonságok
Sorház
1
Új építésű
Hőszivattyú
2026
A+
Vedd fel a kapcsolatot a hirdetővel
+36 70 418 1
Hitelkalkulátor
Második évtől
419 596 Ft A 13. hónaptól
7,99% 8,49%
Végig fix Futamidő: 20 év Banki visszahívás
Az OTP Bank munkatársai a neked megfelelő napszakban veszik fel veled a kapcsolatot. A becslés a hirdető által megadott adatokon alapul. A jelen tájékoztatás nem minősül ajánlattételnek és nem teljes körű, az egyes feltételek a hitelbírálat eredményétől függően változhatnak. Kérjük, a részletekről tájékozódj az OTP Bank fiókjaiban vagy az OTP Bank honlapján közzétett vonatkozó Üzletszabályzatokból és Hirdetményekből.
Vedd fel a kapcsolatot a hirdetővel
+36 70 418 1
Vedd fel a kapcsolatot a hirdetővel
+36 70 418 1
UI_KIT.CHARACTER_COUNTER__COMPONENT.ACTUAL_CHARACTER__SR_ONLY UI_KIT.CHARACTER_COUNTER__COMPONENT.MAXIMUM_CHARACTER__SR_ONLY
Hasonló eladó ingatlanok Vácon
Frissítve: 12 napja
20
92 M Ft 609 272 Ft/m²
Eladó családi ház, Vác
Frissítve: 12 napja
20
99,7 M Ft 772 868 Ft/m²
Eladó ikerház, Vác
Frissítve: 12 napja
20
96,7 M Ft 767 460 Ft/m²
Eladó ikerház, Vác

Fedezd fel a
hasonló házakat!Még további házak Vácon 97,5 M Ft körüli értékben
Tovább a hirdetésekhez Frissítve: 12 napja
11
97,09 M Ft 753 122 Ft/m²
Eladó ikerház, Vác

Frissítve: 12 napja
20
89 M Ft 589 404 Ft/m²
Eladó családi ház, Vác, Felső Törökhegy út

Frissítve: 12 napja
20
104,99 M Ft 739 366 Ft/m²
Eladó családi ház, Vác

