+11 fotó
Hirdetéskód: 8955303
Referenciaszám: M319375-5112686
Feltöltve: 2 napja
Bugyi eladó tanya 45000 m² telekterületű: 235 millió Ft
235 millió Ft
1 021 739 Ft/m²
45000 m²
Eladó Ház, Bugyi
ÖNÁLLÓ TANYA*****4,5 HEKTÁROS AKÁC ERDŐVEL*****3 GENERÁCIÓNAK IS *****HITELEZHETŐ!!!!
Eladásra kínálok Pest vármegyében, Budapesttől 20 percre egy 2011-ben újonnan épült tanyát 4,5 hektáros területen, 25 éves akác erdővel, családi házzal, gondnoki épülettel, lovas és állattartó épületekkel.
A Taksony - Bugyi közti főútvonalról egy kb.2 km-es erdőkkel övezett döngölt,sima földúton jutunk álmaink tanyájára. Az elvonulás szigete, távol és mégis közel, elszeparálva, mégis védetten, a szomszédos tanyák biztonságos közelségében.
A terület bekerített, külső,belső riasztókkal védett, az erdő mellett sok gyümölcsfa, nagy veteményeskert, bio gazdálkodás található,számos rendezett, tiszta óllal, fatárolóval.
Az ingatlan épületei:
1. FŐÉPÜLET
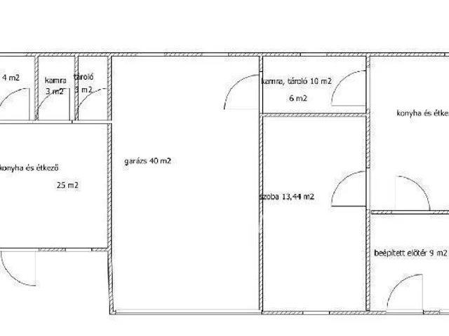
1. Lakás: 1 szoba, fürdőszoba, konyha étkezővel, tároló,kamra, padlófűtéssel.(50 m2)
2. Lakás, főépület: garázs elektromos kapuval,2 szoba, diófa konyhabútor elszívóval, elektromos indukciós tűzhellyel, sütővel, étkezővel, tároló, kádas fürdőszoba.Elektromos redőnyök, diófa ajtók, mindenhol padlófűtés.(100m2)
2 .ÉPÜLET
1.Lakás: 2 szoba, fürdőszoba, konyha étkezővel,tárolóval
2. Helyiség: tároló, hűtőszoba, saját felhasználásra állatfeldolgozó konyha rozsdamentes felszereléssel
3. Garázs: kb. 80 m2 ablakokkal,garázsajtóval
Egyéb építmények:
6 disznóól, 1 lótartásra szolgáló ól, 1 nagy tyúkól, 1 juhoknak akol fatárolók
1 villanyóra ház, szerszámtároló, gyönyörű épített Makovecz stílusú hatalmas szaletli
Gáz a telekhatáron. A fűtésről a közel 5 hektáros akácerdő gondoskodik.Ennek értéke 60-80 millió forint. Az ingatlan tehermentes, 1/1 tulajdonban.
Minden olyan, mint amilyet megálmodik az ember, ha egy igazi nagybetűs tanyára vágyik!!!! Modern, esztétikus, tiszta, rendezett, az állatok kommunikálnak, köszönnek, szaladnak a gazdi után, fantasztikus a milliő!! Elvarázsol!!!
Az OTP Bankcsoport teljeskörü hitelügyintézéssel és ügyvédi háttérrel segíti a leendő vevőt a vásárlás megkönnyítésére.
Kérdéseivel forduljon hozzám bizalommal.
Referenciaszám: M319375
Érdeklődni lehet: Toókné Ambrózi Andrea Tel:30-4214382
Referencia szám: M319375
Tulajdonságok
Tanya
230 m²
Vedd fel a kapcsolatot a hirdetővel
Toókné Ambrózi Andrea OTPip - Dunaharaszti Bocskai utca 10 - OTP Ingatlanpont Iroda Az iroda összes hirdetése
+36 30 421 4
Vedd fel a kapcsolatot a hirdetővel
Toókné Ambrózi Andrea OTPip - Dunaharaszti Bocskai utca 10 - OTP Ingatlanpont Iroda Az iroda összes hirdetése
+36 30 421 4
Vedd fel a kapcsolatot a hirdetővel
Toókné Ambrózi Andrea OTPip - Dunaharaszti Bocskai utca 10 - OTP Ingatlanpont Iroda Az iroda összes hirdetése
+36 30 421 4
UI_KIT.CHARACTER_COUNTER__COMPONENT.ACTUAL_CHARACTER__SR_ONLY UI_KIT.CHARACTER_COUNTER__COMPONENT.MAXIMUM_CHARACTER__SR_ONLY
Hasonló eladó ingatlanok Bugyiban
Frissítve: 25 napja
19
240 M Ft 701 754 Ft/m²
Eladó mezőgazdasági ingatlan, Bugyi
Feltöltve: 8 hónapja
1
250 M Ft 4 032 Ft/m²
Eladó mezőgazdasági ingatlan, Bugyi
Frissítve: 12 napja
14
235 M Ft 1 021 740 Ft/m²
Eladó mezőgazdasági ingatlan, Bugyi


Fedezd fel a
hasonló hirdetéseket!Még további mezőgazdasági ingatlanok Pest megyében 235 M Ft körüli értékben
Tovább a hirdetésekhez Frissítve: 3 napja
14
235 M Ft 1 021 739 Ft/m²
Eladó mezőgazdasági ingatlan, Bugyi

Frissítve: 3 napja
14
235 M Ft 1 021 739 Ft/m²
Eladó mezőgazdasági ingatlan, Bugyi

Frissítve: 3 napja
14
235 M Ft 1 021 739 Ft/m²
Eladó mezőgazdasági ingatlan, Bugyi

