

+15 fotó
Hirdetéskód: 8727233
Referenciaszám: 180801348
Frissítve: 2 napja
Nyíregyháza eladó tanya 1645 m² telekterületű: 26,5 millió Ft
26,5 millió Ft
384 058 Ft/m²
1645 m²
Nyíregyháza-Nyírszőlősön tanya gyümölcsössel eladó
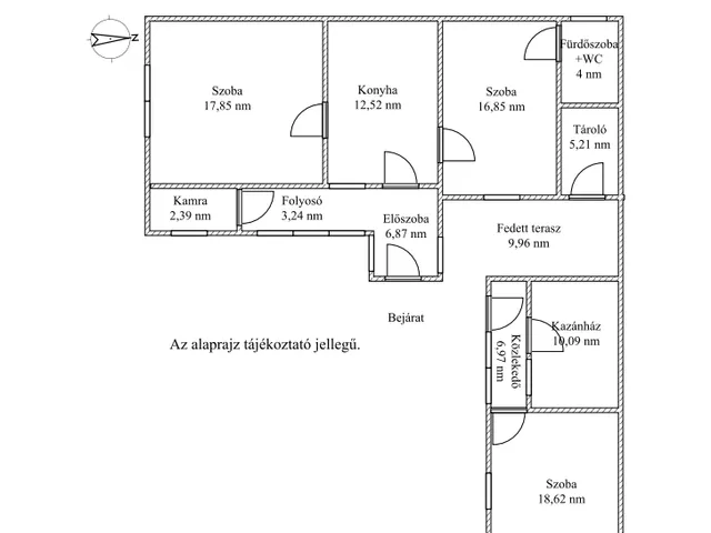
Nyíregyháza Nyírszőlős területén eladó egy tulajdoni lap szerinti tanya és gyümölcsös megnevezésű ingatlan.
- Két lakóegység található az ingatlanon
A nagyobb ház:- falazata vályog, vert fal, és tégla
- két szoba, konyha, fürdőszoba, előszoba, folyosó, kamra és kívülről megközelíthető tároló
- mérete: 68,9 nm
A kisebb lakórész:- falazata tégla
- szoba, közlekedő, kazánház található benne
- métere: 35,7 nm
- Az ablakok fa, szigetelt fa, és műanyagok, a fűtés gáz-cirkó, illetve két cserépkályha is rendelkezésre áll
- A tető héjazata cserép
- A melléképületek: - tyúkól, disznóól, szerszámos tároló, füstölő, kukorica kas, kinti WC
- A telek összmérete: 1645 nm, melyből 821 nm kivett tanya, 824 nm gyümölcsös
- A telek előtt külön helyrajzi számon egy 141 nm-es magánút található, mely a vételár részét képezi
- A kertben diófák, gyümölcsfák, szőlő is van
Ez az ingatlan ráncfelvarrás után akár két generáció együttélését is lehetővé teszi, a kert pedig a gazdálkodásra ad lehetőséget, akárcsak az ólak.
Mivel elég nagy a telek, ha építkezésben gondolkodik is éri az árát, az utcafronti része is elég széles
Az ingatlan kifüggesztendő, vásárlási szándéknál ezt figyelembe kell venni.
Keressen, ha vételi szándékkal szeretné megtekinteni az ingatlant!
Tulajdonságok
Tanya
69 m²
Vedd fel a kapcsolatot a hirdetővel
+36 70 616 6
Vedd fel a kapcsolatot a hirdetővel
+36 70 616 6
Vedd fel a kapcsolatot a hirdetővel
+36 70 616 6
UI_KIT.CHARACTER_COUNTER__COMPONENT.REMAINING_SPACE__SR_ONLYUI_KIT.CHARACTER_COUNTER__COMPONENT.MAXIMUM_CHARACTER__SR_ONLY
Hasonló eladó ingatlanok Nyírszőlős városrészben
Frissítve: 2 napja

13
25,8 M Ft 379 412 Ft/m²
Eladó mezőgazdasági ingatlan, Nyíregyháza, Oros
Frissítve: 10 hónapja

8
25 M Ft 1 495 Ft/m²
Eladó mezőgazdasági ingatlan, Gégény
Frissítve: 20 napja

3
24 M Ft 205 Ft/m²
Eladó mezőgazdasági ingatlan, Fehérgyarmat

Frissítve: 7 napja

15
25 M Ft 333 333 Ft/m²
Eladó mezőgazdasági ingatlan, Nagykálló

Frissítve: 3 napja

2
26 M Ft 339 Ft/m²
Eladó mezőgazdasági ingatlan, Kállósemjén
Frissítve: 23 napja

20
24 M Ft 489 796 Ft/m²
Eladó mezőgazdasági ingatlan, Lajosmizse


Töltsd fel hirdetésed ingyenesen!
Egyszerű