

+13 fotó
Hirdetéskód: 8716058
Referenciaszám: 38-5121
Frissítve: ma
Budapest V. kerület eladó társasházi lakás 2 szobás: 84 millió Ft
84 millió Ft
* A m² árat a hirdető adta meg.
47 m²
2 szoba
földszint
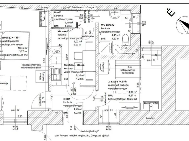
V. Kerület, Belgrád rakpart, 47 m²-es, földszinti, társasházi lakás
Eladó lakás a belváros szívében – exkluzív lehetőség befektetőknek és otthonkeresőknek!
Budapest egyik legpatinásabb részén, az V. kerületben, a Duna-part Világörökségi szakaszán, a Szabadság és Erzsébet híd között kínálunk eladásra egy 47 m²-es, azonnal költözhető lakást.
A lakás egy szépen karbantartott, 120 éves épület földszintjén található, csendes udvarra néz, így a belváros pezsgése zajmentesen élvezhető.
Főbb jellemzők:
-2 külön nyíló szoba + előszoba, konyha, fürdő, spájz.
-Felújított állapot (elektromos hálózat, nyílászárók, fűtés)
-Korszerű elektromos padlófűtés, távolról vezérelhető .
-Beépített konyhai gépek, zuhanyzós fürdőszoba.
-4 m-es belmagasság – galéria kialakítható.
-Kamera a bejáratnál, biztonságos ház, stabil társasház.
Elhelyezkedés:
-A Duna, egyetemek, közlekedési csomópontok (metró, villamos) pár perc sétára.
-Kávézók, üzletek, intézmények a közvetlen közelben.
-Világörökségi környezet, rendezett társasház, felújított homlokzattal.
Befektetők figyelem!
Hosszú és rövid távú kiadás is engedélyezett (társasházi szabályzatban rögzítve van)
Kiváló lokáció turizmus és egyetemi közelség miatt igen kedvelt az elhelyezkedés.
Igény esetén további 25 m²-es tároló bérlése biztosítható
Ez a lakás ideális választás, akár első otthonnak, nyugodt belvárosi fészeknek, akár biztos hozamot ígérő befektetésnek.
Amennyiben felkeltette az érdeklődést előre egyeztettet időpontban tudom mutatni, várom megkeresését bármelyik elérhetőségemen.
Tulajdonságok
Társasházi lakás
Újszerű
Egyéb
1948
Nem adta meg a hirdető
Nincs
Vedd fel a kapcsolatot a hirdetővel
+36 70 708 8
Hitelkalkulátor
Második évtől
361 498 Ft A 13. hónaptól
7,99%
Végig fix Futamidő: 20 év Banki visszahívás
Az OTP Bank munkatársai a neked megfelelő napszakban veszik fel veled a kapcsolatot.Hitelfelvétel esetén akár egy héttel rövidebb lehet az ügyintézés.
Ez az ingatlan a nálunk meglévő adatok alapján azonnali értékbecslésre alkalmas lehet.
A becslés a hirdető által megadott adatokon alapul. A jelen tájékoztatás nem minősül ajánlattételnek és nem teljes körű, az egyes feltételek a hitelbírálat eredményétől függően változhatnak. Kérjük, a részletekről tájékozódj az OTP Bank fiókjaiban vagy az OTP Bank honlapján közzétett vonatkozó Üzletszabályzatokból és Hirdetményekből.
Vedd fel a kapcsolatot a hirdetővel
+36 70 708 8
Vedd fel a kapcsolatot a hirdetővel
+36 70 708 8
UI_KIT.CHARACTER_COUNTER__COMPONENT.REMAINING_SPACE__SR_ONLYUI_KIT.CHARACTER_COUNTER__COMPONENT.MAXIMUM_CHARACTER__SR_ONLY
Hasonló eladó ingatlanok Budapest V. kerületben
Frissítve: 8 napja

14
80,03 M Ft 1 818 771 Ft/m²
Eladó lakás, Budapest V. kerület, Nádor utca

Frissítve: 6 hónapja

1
197 500 Euro
77,22 M Ft 1 883 474 Ft/m²
Eladó lakás, Budapest V. kerület
Frissítve: ma

20
84 M Ft 1 500 000 Ft/m²
Eladó lakás, Budapest V. kerület


Fedezd fel a
hasonló lakásokat!Még további lakások Budapest V. kerületben 84 M Ft körüli értékben
Tovább a hirdetésekhez Frissítve: 1 napja

20
89,9 M Ft
Eladó lakás, Budapest V. kerület, Sas utca

Frissítve: 9 napja

20
84 M Ft 1 500 000 Ft/m²
Eladó lakás, Budapest V. kerület

Frissítve: ma

20
84 M Ft 1 500 000 Ft/m²
Eladó lakás, Budapest V. kerület


Töltsd fel hirdetésed ingyenesen!
Egyszerű