+17 fotó
Hirdetéskód: 8857553
Referenciaszám: 5-4300
Frissítve: 15 napja
Budapest VII. kerület eladó társasházi lakás 3 szobás: 75 millió Ft
75 millió Ft
1,25 millió Ft/m²
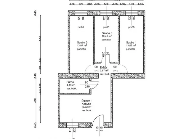
60 m²
3 szoba
2. emelet
VII. Kerület, M4 és M2 közelében, Rottenbiller utca, 60 m²-es, társasházi lakás
Tökéletes befektetés: felújított, külön szobák, bérbe is van adva.
Kiváló közösségi közlekedésnél, rendezett társasházban, emeleti, utcai napfényes lakás eladó.
Környék, infrastruktúra:
- Keleti pályaudvar 1 percre, M4 / M2 metró, vasút, buszok, trolibuszok, villamos,
- Aréna mall 10 perc busszal vagy 15 perc séta, Aldi 6 perc gyalogosan.
Társasházi felújítások:
- tető 2018-ban,
- gázvezeték hálózat 12 éve,
- elektromos hálózat részleges felújítása 3 éve,
- víz- és csatorna alapvezeték felújítása 6 éve.
- A nem túl távoli jövőben a társasház lépcsőházának és homlokzatának felújítása várható.
Hudetz János építőmester megbízásából 1892 körül épült háromemeletes, sarokkupolás eklektikus lakóház a Rottenbiller és a Garay utca sarkán.
Főhomlokzata kőerkélyekkel tagolt, a két felső emeleten téglaberakásos a homlokzat, ugyanitt az ablakok felett/körül díszítés látható.
Itt alakult meg 1906-ban az első magyarországi legális vasutas-szakszervezet, a Vasúti Munkások Országos Szövetsége.
Lakás paraméterei:
- 3 külön nyíló szoba és közös kis nappali rész konyhával,
- műszakilag teljesen felújítva: víz vezeték, villany hálózat, fűtés rendszer,
- fűtése: Ariston kondenzációs kombi kazán,
- műanyag ablakok nagyon jó szigeteléssel,
- biztonsági bejárati ajtó + rács,
- padlófűtés a konyhában,
- álmennyezet, mely a fűtés számlát is csökkenti,
- fürdőszobában üveg tusoló kabin,
- minőségi dizájn csillár a konyhában,
- teljes bútorzattal és gépekkel az irányárban.
Hívjon fel, jöjjön el, nézze meg és tegyen ajánlatot.
Bővebb információért és vagy egy személyes megtekintés végett keressen bizalommal.
Tulajdonságok
Társasházi lakás
Újszerű
Gázkazán
1892
Nem adta meg a hirdető
Nincs
Vedd fel a kapcsolatot a hirdetővel

+36 70 682 5
Hitelkalkulátor
Második évtől
322 766 Ft A 13. hónaptól
7,99%
Végig fix Futamidő: 20 év Banki visszahívás
Az OTP Bank munkatársai a neked megfelelő napszakban veszik fel veled a kapcsolatot.Hitelfelvétel esetén akár egy héttel rövidebb lehet az ügyintézés.
Ez az ingatlan a nálunk meglévő adatok alapján azonnali értékbecslésre alkalmas lehet.
A becslés a hirdető által megadott adatokon alapul. A jelen tájékoztatás nem minősül ajánlattételnek és nem teljes körű, az egyes feltételek a hitelbírálat eredményétől függően változhatnak. Kérjük, a részletekről tájékozódj az OTP Bank fiókjaiban vagy az OTP Bank honlapján közzétett vonatkozó Üzletszabályzatokból és Hirdetményekből.
Vedd fel a kapcsolatot a hirdetővel

+36 70 682 5
Vedd fel a kapcsolatot a hirdetővel

+36 70 682 5
UI_KIT.CHARACTER_COUNTER__COMPONENT.ACTUAL_CHARACTER__SR_ONLY UI_KIT.CHARACTER_COUNTER__COMPONENT.MAXIMUM_CHARACTER__SR_ONLY
Hasonló eladó ingatlanok Budapest VII. kerületben
Frissítve: 1 éve
1
76,5 millió Ft 910,7 ezer Ft/m²
Eladó lakás, Budapest VII. kerület
Feltöltve: ma
11
69,9 millió Ft 2,06 millió Ft/m²
Eladó lakás, Budapest VII. kerület, Garay utca

Frissítve: 3 napja
13
78,38 millió Ft 1,74 millió Ft/m²
Eladó lakás, Budapest VII. kerület


Fedezd fel a
hasonló lakásokat!Még további lakások Budapest VII. kerületben 75 M Ft körüli értékben
Tovább a hirdetésekhez Frissítve: 17 napja
15
73 millió Ft 1,28 millió Ft/m²
Eladó lakás, Budapest VII. kerület

Frissítve: 17 napja
15
73 millió Ft 1,28 millió Ft/m²
Eladó lakás, Budapest VII. kerület

Frissítve: 17 napja
16
73 millió Ft 1,28 millió Ft/m²
Eladó lakás, Budapest VII. kerület

