+17 fotó
Hirdetéskód: 8913309
Referenciaszám: 3-5213
Feltöltve: ma
Budapest XIX. kerület eladó társasházi lakás 2 szobás: 80,99 millió Ft
80,99 millió Ft
1 499 815 Ft/m²
54 m²
2 szoba
3. emelet
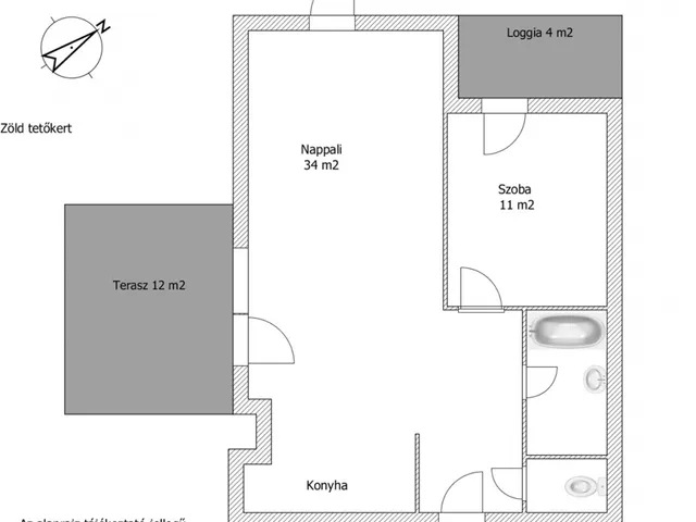
XIX. Kerület, Zrínyi utca, 54 m²-es, társasházi lakás, 2 szobás
ÚJ ÉPÍTÉSŰ, TERASZOS, környezettudatos, azonnal költözhető igényes, energiatakarékos lakás teremgarázs vásárlás opciójával - akár Otthon Start hitelre is Kispest ( XIX. kerület) szívében, kiváló infrastrukturális adottságokkal megvásárolható.
A 2024-ben épült társasház minden igényt kielégít. Geotermikus hűtés-fűtéssel, zöld tetőkerttel, hatalmas belső kerttel, energiatakarékos megoldásokkal várja lakóit.
Az 54 nm-es világos esztétikus otthon a 3. emeleten található. A lakás beosztása kiváló tervezés eredménye: az amerikai konyhás, dél- nyugati fekvésű nappalihoz kapcsolódik a 12 m2-es terasz, melyet körbeölel a társasház kezelésébe tartozó gyönyörű zöld terület. Innen nyílik a hálószoba, melynek saját erkélye van. A nappali nyílászáróinak az elhelyezkedése lehetőséget ad egy külön szoba leválasztására.
A nyílászárók, burkolatok, gépészeti elemek mind igényes anyagokból, kiváló minőségben fogják szolgálni a leendő lakóit.
Konyhabútor nincs az árban. A fürdőszoba mellett külön helyiségben található a WC.
A XIX. kerületben a parkolás ingyenes. Ugyanakkor a lakáshoz teremgarázs beállóhely és egy zárható tároló külön megvásárolható A mélygarázsból lifttel közvetleül elérhető a lakás szintje
A garázs és a tároló külön helyrajzi számon van, megvásárlása opcionális, ára együtt 7 M Ft.
A közös költség 20 000 Ft/ hó, minden más fogyasztás alapján, kb 15 000 Ft/hó
Elhelyezkedés kiváló: közintézmények, játszótér, bevásárlási lehetőség, piac, éttermek, SZTK, Posta, stb. gyalog elérhető távolságban. A nagy bevásárlóközpontok (Market Centrál vagy az M5-Soroksár bevásárlóközpont) autóval 12 perc
Közlekedés
Metró: M3 Köki megállója tömegközlekedésel 8 a Határ úti megálló 10 perc. Az itt közlekedő járatokkal: 50-es villamos, 93, 93A 136 számú buszok és a 914, 950, 950A éjszakai járatokkal a belváros is 25-30 perc alatt elérhető. Nagy bevásárló központok ( Auchan, Ikea, OBI, stb. ) autóval 10 perc
Az ingatlan tehermentes, fizetés után azonnal birtokba vehető.
Amennyiben szeretné megtekinteni, hívjon bátran a hét bármely napján.
Tulajdonságok
Társasházi lakás
Egyéb
2024
A++
Nincs
Vedd fel a kapcsolatot a hirdetővel
+36 70 931 1
Hitelkalkulátor
Második évtől
348 544 Ft A 13. hónaptól
7,99%
Végig fix Futamidő: 20 év Banki visszahívás
Az OTP Bank munkatársai a neked megfelelő napszakban veszik fel veled a kapcsolatot.Hitelfelvétel esetén akár egy héttel rövidebb lehet az ügyintézés.
Ez az ingatlan a nálunk meglévő adatok alapján azonnali értékbecslésre alkalmas lehet.
A becslés a hirdető által megadott adatokon alapul. A jelen tájékoztatás nem minősül ajánlattételnek és nem teljes körű, az egyes feltételek a hitelbírálat eredményétől függően változhatnak. Kérjük, a részletekről tájékozódj az OTP Bank fiókjaiban vagy az OTP Bank honlapján közzétett vonatkozó Üzletszabályzatokból és Hirdetményekből.
Vedd fel a kapcsolatot a hirdetővel
+36 70 931 1
Vedd fel a kapcsolatot a hirdetővel
+36 70 931 1
UI_KIT.CHARACTER_COUNTER__COMPONENT.ACTUAL_CHARACTER__SR_ONLY UI_KIT.CHARACTER_COUNTER__COMPONENT.MAXIMUM_CHARACTER__SR_ONLY
Hasonló eladó ingatlanok Budapest XIX. kerületben
Frissítve: 2 hónapja
6
Aerogate Homes
73,37 M Ft 1 630 344 Ft/m²
Eladó lakás, Budapest XIX. kerület, Tompa utca 162119/7 hrsz.
Frissítve: 7 napja
20
79,9 M Ft 1 065 333 Ft/m²
Eladó lakás, Budapest XIX. kerület

Frissítve: ma
14
73,4 M Ft 1 384 906 Ft/m²
Eladó lakás, Budapest XIX. kerület


Fedezd fel a
hasonló lakásokat!Még további lakások Budapest XIX. kerületben 80,99 M Ft körüli értékben
Tovább a hirdetésekhez Frissítve: 7 napja
20
79,9 M Ft 1 065 333 Ft/m²
Eladó lakás, Budapest XIX. kerület

Frissítve: 4 napja
14
BAM living Kispest - ahol a nyugalom és a modern városi élet találkozik.
87,9 M Ft 1 352 258 Ft/m²
Eladó lakás, Budapest XIX. kerület, Iparos utca 2.
Frissítve: 7 napja
20
82,02 M Ft 1 673 917 Ft/m²
Eladó lakás, Budapest XIX. kerület


