+3 fotó
Hirdetéskód: 8945927
Referenciaszám: 325056
Frissítve: 21 napja
Ajka eladó téglalakás 4 szobás: 79 millió Ft
79 millió Ft
877,8 ezer Ft/m² *
* A m² árat a hirdető adta meg.
90 m²
4 szoba
földszint
Eladó Lakás, Ajka 79.000.000 Ft
Eladó ÚJ ÉPÍTÉSŰ lakás Ajka- Bakonygyepesen!
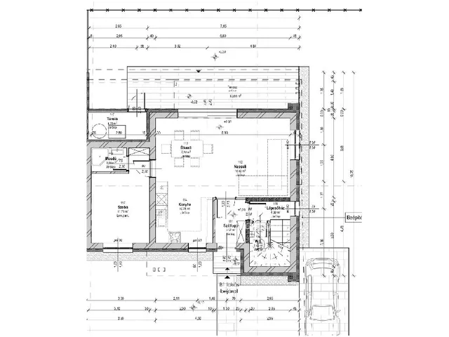
Az ingatlan 4 lakásos társasházban található, a lakás 89,75 m2-es, a hozzá tartozó telek területe 177,65 m2.
3 szoba + nappali kialakítású, belső 2 szintes lakás.
A ház körbekerített , zárt telken helyezkedik el, ahol a lakáshoz felszíni PARKOLÓHELY is tartozik.
Műszaki adatok:
A társasház földszinti teherhordó és térelhatároló falszerkezetei 30 cm vastagsággal, LEIER N+F típusú
falazóblokkból készülnek, míg a válaszfalak 10 cm vastagsággal szintén LEIER válaszfallapokból
épülnek meg.
Födémszerkezet 20 cm vastag monolit vasbeton szerkezet XPS kiegészítő hőszigeteléssel.
Tető kialakítása lapostető.
Homlokzati nyílászárók Spectus 70 típusú belül fehér, kívül antracit színű műanyagszerkezetek 2 rétegű hőszigetelő üvegezéssel ,redőnnyel ellátva.
A ház homlokzati szigetelése 15 cm vastag dryvit EPS 80 hőszigetelő rendszerrel készül.
A társasház fűtése padlófűtéses kialakítású hőszivattyús rendszer.
Az ingatlan burkolatok,szaniterek, belső ajtók, konyhabútor nélkül kerül átadásra!
Bővebb műszaki részletekért, kérem keressen bizalommal!
Kivitelezés várható befejezése: 2025. III. negyedév
Amennyiben hirdetésem felkeltette az érdeklődését, kérem keressen elérhetőségeimen!
Teljeskörű szolgáltatást vállalok a megbízástól a beköltözésig:
- Ingatlanértékesítés
- Ingatlan értékbecslés
- Energetikai tanúsítvány
- Hitelügyintézés, Biztosítás
- Ügyvéd
- Lakberendezés 3D tervezéssel
- Napelemes rendszerek
- Épülettakarítás
- Kivitelezés, felújítás
Hock Adrienn
Ingatlanszakértő, Ingatlanvagyon értékelő, Lakberendező
Tulajdonságok
Téglalakás
2
Új építésű
2025
Nem adta meg a hirdető
Vedd fel a kapcsolatot a hirdetővel
+36 70 705 2
Hitelkalkulátor
Második évtől
339 980 Ft A 13. hónaptól
7,99% 8,49%
Végig fix Futamidő: 20 év Banki visszahívás
Az OTP Bank munkatársai a neked megfelelő napszakban veszik fel veled a kapcsolatot. A becslés a hirdető által megadott adatokon alapul. A jelen tájékoztatás nem minősül ajánlattételnek és nem teljes körű, az egyes feltételek a hitelbírálat eredményétől függően változhatnak. Kérjük, a részletekről tájékozódj az OTP Bank fiókjaiban vagy az OTP Bank honlapján közzétett vonatkozó Üzletszabályzatokból és Hirdetményekből.
Vedd fel a kapcsolatot a hirdetővel
+36 70 705 2
Vedd fel a kapcsolatot a hirdetővel
+36 70 705 2
UI_KIT.CHARACTER_COUNTER__COMPONENT.ACTUAL_CHARACTER__SR_ONLY UI_KIT.CHARACTER_COUNTER__COMPONENT.MAXIMUM_CHARACTER__SR_ONLY
Hasonló eladó ingatlanok Ajkán
Frissítve: 1 napja
20
81,9 millió Ft 795,1 ezer Ft/m²
Eladó lakás, Ajka
Frissítve: 8 napja
20
75 millió Ft 765,3 ezer Ft/m²
Eladó lakás, Ajka
Frissítve: 1 hónapja
9
75 millió Ft 765,3 ezer Ft/m²
Eladó lakás, Ajka


Fedezd fel a
hasonló lakásokat!Még további lakások Veszprém megyében 79 M Ft körüli értékben
Tovább a hirdetésekhez Frissítve: 1 hónapja
9
81,9 millió Ft 789,9 ezer Ft/m²
Eladó lakás, Ajka

Frissítve: 21 napja
6
81,9 millió Ft 787,5 ezer Ft/m²
Eladó lakás, Ajka
Frissítve: 21 napja
6
75 millió Ft 765,3 ezer Ft/m²
Eladó lakás, Ajka
