+5 fotó
Hirdetéskód: 8838103
Referenciaszám: M300669-4928839
Feltöltve: 3 napja
Albertirsa eladó téglalakás 4 szobás: 86 millió Ft
86 millió Ft
716 667 Ft/m²
120 m²
4 szoba
földszint
Eladó Lakás, Albertirsa
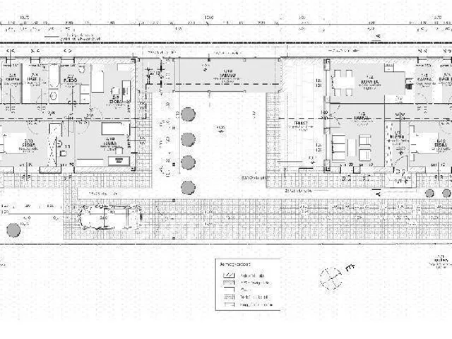
Pest vármegye, Albertirsa kertvárosi részén 2025. év végén átadásra kerülő kétlakásos lakóépület 120 m2 nagyságú lakása 1058 m2-es osztatlan közös tulajdonú telken eladó. A kétlakásos összkomfortos ingatlan első, 1-es számú lakása A energetikai besorolással, 30 cm-es Porotherm téglából, 15 cm-es homlokzati szigeteléssel, 25 cm kőzetgyapottal szigetelt fa szerkezetű, gipszkarton álmennyezetű födémmel, fa tetőszerkezeten beton héjazattal és körben csatornával készül. A ház egy nappalival, három szobával, egy konyha-étkezővel, egy kamrával, egy nagyobb méretű tárolóval, két fürdőszoba-WC helyiséggel, egy közlekedővel, egy előszobával és egy 24 m2 nagyságú fedett terasszal kerül megépítésre. Az összközműves ingatlanban a közművek közül a háromfázisú (3x20 Amper), valamint az egyfázisú H-tarifás villany-, a vezetékes víz-ellátás, a csatorna, és a gáz a telken belül megtalálható. A beépítendő külső műanyag ablakok 3 rétegű üvegezéssel, redőnnyel, valamint ablakonként egy szúnyoghálóval kerülnek beépítésre, a bejárat biztonsági ajtóval lesz kivitelezve. A belső terek elválasztására jó minőségű dekor ajtók kerülnek beépítésre. Az otthon melegét és a melegvíz ellátását hőszivattyú biztosítja padlófűtéses hőleadással, alternatív megoldásként inverteres hűtő-fűtő klíma kerül beépítésre. A szobák laminált padló-, a többi helyiség járólap burkolatot kapnak, a fürdőszoba és a WC-helyiségekbe Mofém szaniterek kerülnek beépítésre. Az ingatlan vételára tartalmazza a több rétegben készre dolgozott fehér festést és a villanykapcsolókat. A terasz burkolata járólappal kerül kivitelezésre.
A lakóház körben bekerítésre kerül, gépjárművek számára az utcáról használati megosztással a kisebb udvarrészre kapubejáró lesz biztosított. Az udvar tereprendezéssel kerül átadásra. Az ár a bútorzatot nem tartalmazza.
Az ingatlan elhelyezkedése kiváló, újépítésű ingatlanok szomszédságában épül. A közelben minden megtalálható: többféle bevásárlási lehetőség, iskola, óvoda, élelmiszerbolt, egészségügyi rendelő, benzinkút, Polgármesteri Hivatal 1-2 km-en belül megközelíthető, a településen a tömegközlekedés megoldott.
A hirdetés tájékoztató jellegű, az ingatlanról pontos adatokat a megtekintést követően a tulajdonos által elmondottak alapján tudunk garantálni!
A vásárlás finanszírozásában az OTP kedvezőbb kamatozású hitelkonstrukcióival tudunk segíteni díjmentesen, sorban állás nélkül! Az adásvételi szerződés lebonyolításához korrekt ügyvédi közreműködést tudunk ajánlani. Amennyiben felkeltettem érdeklődését, hívjon bizalommal! Eladó ingatlanokat keresünk meglévő és új ügyfeleink részére!
Referencia szám: M300669
Tulajdonságok
Téglalakás
Új építésű
Hőszivattyú
2025
Nem adta meg a hirdető
Vedd fel a kapcsolatot a hirdetővel
+36 70 323 1
Hitelkalkulátor
Második évtől
370 105 Ft A 13. hónaptól
7,99% 8,49%
Végig fix Futamidő: 20 év Banki visszahívás
Az OTP Bank munkatársai a neked megfelelő napszakban veszik fel veled a kapcsolatot. A becslés a hirdető által megadott adatokon alapul. A jelen tájékoztatás nem minősül ajánlattételnek és nem teljes körű, az egyes feltételek a hitelbírálat eredményétől függően változhatnak. Kérjük, a részletekről tájékozódj az OTP Bank fiókjaiban vagy az OTP Bank honlapján közzétett vonatkozó Üzletszabályzatokból és Hirdetményekből.
Vedd fel a kapcsolatot a hirdetővel
+36 70 323 1
Vedd fel a kapcsolatot a hirdetővel
+36 70 323 1
UI_KIT.CHARACTER_COUNTER__COMPONENT.REMAINING_SPACE__SR_ONLYUI_KIT.CHARACTER_COUNTER__COMPONENT.MAXIMUM_CHARACTER__SR_ONLY
Hasonló eladó ingatlanok Albertirsán
Frissítve: 14 napja
8
86 M Ft 716 667 Ft/m²
Eladó lakás, Albertirsa

Frissítve: 14 napja
8
86 M Ft 716 667 Ft/m²
Eladó lakás, Albertirsa

Frissítve: 9 napja
16
89 M Ft 831 776 Ft/m²
Eladó lakás, Albertirsa


Fedezd fel a
hasonló lakásokat!Még további lakások Pest megyében 86 M Ft körüli értékben
Tovább a hirdetésekhez Frissítve: 25 napja
8
86 M Ft 716 667 Ft/m²
Eladó lakás, Albertirsa

Frissítve: 25 napja
8
86 M Ft 716 667 Ft/m²
Eladó lakás, Albertirsa

Feltöltve: 21 napja
8
86 M Ft 716 667 Ft/m²
Eladó lakás, Albertirsa

