Hirdetéskód: 8825981
Frissítve: 2 napja
Bicske eladó téglalakás 3 szobás: 78 millió Ft
78 millió Ft
1 200 000 Ft/m²
65 m²
3 szoba
2. emelet
Leírás
ELINDULT A HARMADIK PROJEKT, A C. ÉPÜLET MEGÉPÍTÉSE! VÁLASSZONY EGY FIATALOS, MODERN TÉGLAÉPÍTÉSŰ LAKÁST BICSKÉN!
MÁSODIK EMELET 4. SZÁMÚ LAKÁS
Új építésű, energiatakarékos lakások Bicske ősfás lakóparkjában – vasútállomás közel, csendes, zöld környezetben!
Bicske egyik legkedveltebb részén, a Gesztenyés Lakókertben, több mint 1 hektáros, ősfás területen épülnek új, modern lakások a fejlesztő második ütemében – így már bizonyított minőség várja az új tulajdonosokat.
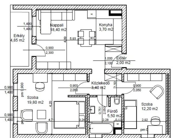
A lakás elosztása:
- Nappali: 18,40 m²
- Szoba: 19,80 m2
- Szoba: 12,20 m2
- Konyha: 3,70 m2
- Fürdő, WC: 5,50 m²
- Előtér: 2,00 m²
- Közlekedő: 3,40 m2
- Erkély: 4,85 m²
Tároló (18,30 m2) és udvari gépkocsibeálló benne van az árban!
A társasház műszaki tartalma és kivitelezése:
- Fenntartható megoldások: napelem, korszerű hőszigetelés
- Tartós alap: vasbeton sávalap, talajnedvesség elleni szigetelés
- Prémium nyílászárók: egyedi gyártású, 3 rétegű üvegezésű műanyag ablakok
- Konyha alapbútorral
- Egyedi fogyasztásmérők minden lakásban
- Fűtés: gázkazán + lakásonkénti hőmennyiségmérő
Miért érdemes itt lakni?
- Csendes, zöld, ősfás környezet
- Modern, energiatakarékos kivitelezés
- Kiváló közlekedés a vasútállomás révén
- Kényelmes lakáselrendezés és erkély
Ne maradjon le a lehetőségről!
Vegye fel velünk a kapcsolatot még ma, és biztosítsa új otthonát a Gesztenyés Lakókertben!
Tulajdonságok
Téglalakás
2
Új építésű
Gázkazán
2026
4,8 m²
A++
Vedd fel a kapcsolatot a hirdetővel
Floriana Ingatlan Az iroda összes hirdetése
+36 30 434 3
Hitelkalkulátor
Második évtől
335 676 Ft A 13. hónaptól
7,99% 8,49%
Végig fix Futamidő: 20 év Banki visszahívás
Az OTP Bank munkatársai a neked megfelelő napszakban veszik fel veled a kapcsolatot. A becslés a hirdető által megadott adatokon alapul. A jelen tájékoztatás nem minősül ajánlattételnek és nem teljes körű, az egyes feltételek a hitelbírálat eredményétől függően változhatnak. Kérjük, a részletekről tájékozódj az OTP Bank fiókjaiban vagy az OTP Bank honlapján közzétett vonatkozó Üzletszabályzatokból és Hirdetményekből.
Vedd fel a kapcsolatot a hirdetővel
Floriana Ingatlan Az iroda összes hirdetése
+36 30 434 3
Vedd fel a kapcsolatot a hirdetővel
Floriana Ingatlan Az iroda összes hirdetése
+36 30 434 3
UI_KIT.CHARACTER_COUNTER__COMPONENT.REMAINING_SPACE__SR_ONLYUI_KIT.CHARACTER_COUNTER__COMPONENT.MAXIMUM_CHARACTER__SR_ONLY
Hasonló eladó ingatlanok Bicskén
Frissítve: 20 napja
15
84,9 M Ft 1 248 529 Ft/m²
Eladó lakás, Bicske, Bicske kertváros
Frissítve: 7 napja
12
Bicske Gesztenyés Lakópark 3. ütem
71 M Ft 1 183 333 Ft/m²
Eladó lakás, Bicske, Csákvári utca

Frissítve: 7 napja
13
Bicske Gesztenyés Lakópark 3. ütem
71 M Ft 1 183 333 Ft/m²
Eladó lakás, Bicske, Csákvári utca


Fedezd fel a
hasonló lakásokat!Még további lakások Fejér megyében 78 M Ft körüli értékben
Tovább a hirdetésekhez Frissítve: 7 napja
13
Bicske Gesztenyés Lakópark 3. ütem
78 M Ft 1 147 059 Ft/m²
Eladó lakás, Bicske, Csákvári utca

Frissítve: 7 napja
11
Bicske Gesztenyés Lakópark 3. ütem
73 M Ft 1 216 667 Ft/m²
Eladó lakás, Bicske, Csákvári utca

Feltöltve: 2 napja
1
73 M Ft 1 280 702 Ft/m²
Eladó lakás, Bicske, Csákvári út 14.

Töltsd fel hirdetésed ingyenesen!
Egyszerű