

+14 fotó
Hirdetéskód: 8659308
Referenciaszám: M309813-5007585
Frissítve: ma
Budapest I. kerület eladó téglalakás 3 szobás: 104,9 millió Ft
104,9 millió Ft
1 907 273 Ft/m²
55 m²
3 szoba
2. emelet
Eladó Lakás, Budapest 1. ker.
!!! ENGLISH DESCRIPTION BELOW !!!
Felújított, klasszikus lakás a Duna-part közelében – azonnal költözhető otthon a Fő utcában
Ha a Duna-part közelsége és az esti séták vagy futás fontos Önnek, ez a lakás ideális választás lehet. Eladó egy teljes körűen felújított, klasszikus hangulatú otthon Budapest egyik legkeresettebb részén, a Fő utcában.
Főbb jellemzők:
Teljes körű felújítás: új bejárati ajtó, nyílászárók, strangok, új cirkófűtés
Padlófűtés biztosítja az otthonos meleget
Klíma és riasztó kiállások előkészítve
Új, modern konyhabútor és minőségi beépített gépek
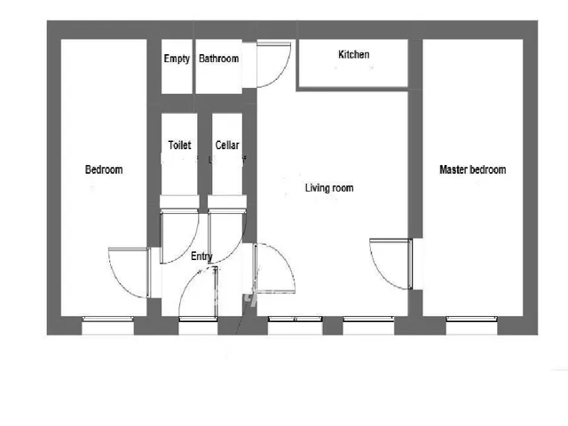
Két külön nyíló, jól szeparált szoba – kiváló elrendezés (lásd alaprajz)
Alacsony közös költség: 15.000 Ft/hó, vízdíjjal együtt
További előnyök:
Rendezett társasház, mindössze 24 lakással
Jelentős megtakarással rendelkező lakóközösség
Azonnal költözhető állapot
Finanszírozás:
Az OTP Bank kedvezményes lakáshitelével is elérhető – egyedi kamatfeltételekkel, díjmentes ügyintézéssel.
Amennyiben felkeltette érdeklődését, forduljon hozzánk bizalommal, akár hétvégén is!
⸻
Fully Renovated Apartment near the Danube – Classic Home in Prime Location on Fő utca
If you enjoy evening walks or jogging along the Danube, this apartment could be the perfect choice. Located in a premium area of downtown Budapest, this fully renovated, classic-style flat is move-in ready and ideal for city lovers.
Key features:
Comprehensive renovation: new entrance door, all windows and pipes replaced, new gas boiler
Comfortable underfloor heating throughout
A/C and alarm system pre-installed
Brand-new kitchen furniture and high-quality appliances
Two well-separated, spacious rooms – functional layout (see floor plan)
Low monthly common cost: 15,000 HUF (including water)
Additional highlights:
Well-maintained building with only 24 apartments
Financially stable condominium with savings
Immediate move-in possible
Financing available:
Offered with favorable OTP Bank housing loan – special interest rates and free administration.
If you’re interested and would like to view the apartment, feel free to call – even on weekends.
Referencia szám: M309813-ZE
Tulajdonságok
Téglalakás
Felújított
Gázkazán
1920
Nem adta meg a hirdető
Vedd fel a kapcsolatot a hirdetővel
Gregoryan Artur OTPip - Budapest XIII. kerület Pannónia utca 25 - OTP Ingatlanpont Iroda Az iroda összes hirdetése
+36 70 630 0
Hitelkalkulátor
Második évtől
451 442 Ft A 13. hónaptól
7,99%
Végig fix Futamidő: 20 év Banki visszahívás
Az OTP Bank munkatársai a neked megfelelő napszakban veszik fel veled a kapcsolatot.Hitelfelvétel esetén akár egy héttel rövidebb lehet az ügyintézés.
Ez az ingatlan a nálunk meglévő adatok alapján azonnali értékbecslésre alkalmas lehet.
A becslés a hirdető által megadott adatokon alapul. A jelen tájékoztatás nem minősül ajánlattételnek és nem teljes körű, az egyes feltételek a hitelbírálat eredményétől függően változhatnak. Kérjük, a részletekről tájékozódj az OTP Bank fiókjaiban vagy az OTP Bank honlapján közzétett vonatkozó Üzletszabályzatokból és Hirdetményekből.
Vedd fel a kapcsolatot a hirdetővel
Gregoryan Artur OTPip - Budapest XIII. kerület Pannónia utca 25 - OTP Ingatlanpont Iroda Az iroda összes hirdetése
+36 70 630 0
Vedd fel a kapcsolatot a hirdetővel
Gregoryan Artur OTPip - Budapest XIII. kerület Pannónia utca 25 - OTP Ingatlanpont Iroda Az iroda összes hirdetése
+36 70 630 0
UI_KIT.CHARACTER_COUNTER__COMPONENT.REMAINING_SPACE__SR_ONLYUI_KIT.CHARACTER_COUNTER__COMPONENT.MAXIMUM_CHARACTER__SR_ONLY
Hasonló eladó ingatlanok Víziváros I. ker. városrészben
Frissítve: 17 napja

19
99,9 M Ft 1 884 906 Ft/m²
Eladó lakás, Budapest I. kerület, Víziváros I. ker.

Frissítve: ma

19
99,9 M Ft 1 884 906 Ft/m²
Eladó lakás, Budapest I. kerület, Víziváros I. ker.

Frissítve: 1 hónapja

20
99,5 M Ft 1 485 075 Ft/m²
Eladó lakás, Budapest I. kerület, Víziváros I. ker., Hunyadi János út

Fedezd fel a
hasonló lakásokat!Még további lakások Budapest I. kerületben 104,9 M Ft körüli értékben
Tovább a hirdetésekhez Frissítve: 17 napja

19
99,9 M Ft 1 884 906 Ft/m²
Eladó lakás, Budapest I. kerület, Víziváros I. ker.

Frissítve: 9 napja

12
109,99 M Ft 1 999 818 Ft/m²
Eladó lakás, Budapest I. kerület, Víziváros I. ker.
Frissítve: ma

20
104,9 M Ft 1 907 273 Ft/m²
Eladó lakás, Budapest I. kerület, Víziváros I. ker.


Töltsd fel hirdetésed ingyenesen!
Egyszerű