+14 fotó
Hirdetéskód: 8764138
Referenciaszám: M309813-5070555
Frissítve: 1 napja
Budapest I. kerület eladó téglalakás 3 szobás: 99,9 millió Ft
99,9 millió Ft
1 816 364 Ft/m²
55 m²
3 szoba
2. emelet
Eladó Lakás, Budapest 1. ker.
Ha a Duna parton szeretne esténként sétálni vagy kocogni, ez a lakás ideális választás lehet. Csodás helyen, prémium lokációval, klasszikus lakás a Fő utcán.
A z ingatlant teljes mértékben felújította a tulajdonosa. Bejárati ajtó, összes nyílászáró, strangok, és a cirkó is ki lett cserélve. A meleget praktikusan padlófűtés szolgáltatja. Klíma és riasztó kiállások előkészítve. Konyhabútor és a minőségi gépek is teljesen újak.
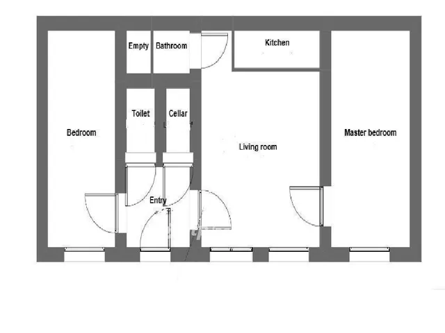
A külön bejáratú szobák mérete és elhelyezkedése is ideális, a mellékelt alaprajzon megtekinthető.
Közös költség 15.000.-Ft, ami tartalmazza a vízdíjat is. A társasháznak van megtakarítása, az épületben mindössze 24 lakás van.
Azonnal költözhető ez a gyönyörű lakás.
Az OTP Bank kedvezményes lakáshitelével segítjük a vásárlását, egyedi kamatfeltételekkel és díjmentes ügyintézéssel. Amennyiben a lakás felkeltette érdeklődését és szívesen megnézné, akkor hívjon bizalommal, akár hétvégén is! Kérem, tekintse meg az ingatlan bemutató videóját:
Tulajdonságok
Téglalakás
Felújított
Gázkazán
1920
Nem adta meg a hirdető
Vedd fel a kapcsolatot a hirdetővel
Bertalan Barnabásné OTPip - Budapest XI. kerület Bartók Béla út 62 - OTP Ingatlanpont Iroda Az iroda összes hirdetése
+36 70 439 8
Hitelkalkulátor
Második évtől
429 924 Ft A 13. hónaptól
7,99%
Végig fix Futamidő: 20 év Banki visszahívás
Az OTP Bank munkatársai a neked megfelelő napszakban veszik fel veled a kapcsolatot.Hitelfelvétel esetén akár egy héttel rövidebb lehet az ügyintézés.
Ez az ingatlan a nálunk meglévő adatok alapján azonnali értékbecslésre alkalmas lehet.
A becslés a hirdető által megadott adatokon alapul. A jelen tájékoztatás nem minősül ajánlattételnek és nem teljes körű, az egyes feltételek a hitelbírálat eredményétől függően változhatnak. Kérjük, a részletekről tájékozódj az OTP Bank fiókjaiban vagy az OTP Bank honlapján közzétett vonatkozó Üzletszabályzatokból és Hirdetményekből.
Vedd fel a kapcsolatot a hirdetővel
Bertalan Barnabásné OTPip - Budapest XI. kerület Bartók Béla út 62 - OTP Ingatlanpont Iroda Az iroda összes hirdetése
+36 70 439 8
Vedd fel a kapcsolatot a hirdetővel
Bertalan Barnabásné OTPip - Budapest XI. kerület Bartók Béla út 62 - OTP Ingatlanpont Iroda Az iroda összes hirdetése
+36 70 439 8
UI_KIT.CHARACTER_COUNTER__COMPONENT.REMAINING_SPACE__SR_ONLYUI_KIT.CHARACTER_COUNTER__COMPONENT.MAXIMUM_CHARACTER__SR_ONLY
Hasonló eladó ingatlanok Budapest I. kerületben
Frissítve: 17 napja
8
99 M Ft 1 112 360 Ft/m²
Eladó lakás, Budapest I. kerület

Frissítve: 17 napja
8
99 M Ft 1 112 360 Ft/m²
Eladó lakás, Budapest I. kerület, Alagút utca

Frissítve: 2 napja
8
99 M Ft 1 112 360 Ft/m²
Eladó lakás, Budapest I. kerület


Fedezd fel a
hasonló lakásokat!Még további lakások Budapest I. kerületben 99,9 M Ft körüli értékben
Tovább a hirdetésekhez Frissítve: 17 napja
8
99 M Ft 1 112 360 Ft/m²
Eladó lakás, Budapest I. kerület

Frissítve: 17 napja
15
105 M Ft 1 478 873 Ft/m²
Eladó lakás, Budapest I. kerület, Batthyány utca

Frissítve: 17 napja
19
99,9 M Ft 1 884 906 Ft/m²
Eladó lakás, Budapest I. kerület


Töltsd fel hirdetésed ingyenesen!
Egyszerű
