+17 fotó
Hirdetéskód: 8843584
Referenciaszám: H510357-5119695
Frissítve: 4 napja
Budapest II. kerület eladó téglalakás 3 szobás: 124,9 millió Ft
124,9 millió Ft
1 541 975 Ft/m²
81 m²
3 szoba
félemelet
Eladó lakás Budapest 2. ker., Országút
Budapest II. kerületének központi részén, Rózsadomb és Országút városrész határán keresi új tulajdonosát egy 81 m2-es, egyedi adottságokkal rendelkező, 3 szobás, felújítandó állapotú nagypolgári lakás. Ha központi, jó közlekedéssel rendelkező, magas presztízsű helyen szeretné kialakítani új otthonát vagy irodáját ezt az ingatlant feltétlenül nézze meg!
! ! ! A képek között fotórealisztikus látványtervek is találhatók ! ! !
KÖRNYÉK és KÖZLEKEDÉS:
II. kerület, Rózsadomb és Országút határán, Buday László utca.
Buda belső, frekventált részén található kedvelt környék a Mechwart liget és a Széna tér közvetlen közelében.
Kiváló infrastruktúrával és közlekedéssel rendelkező, polgári hangulatú, magas presztízsű terület.
Biztonságos, rendezett környék, kellemes, csendes mellékutcákkal, kevés zajjal és sok zölddel.
A lakástól néhány perce elérhető minden, ami a hétköznapokhoz szükséges.
A Mammut bevásárlóközpont 7 perc, a Mechwart tér 3 perces sétatávolság.
4 perces séta a 17, 4, és 6-os villamos járatok megállója, melyekkel a belváros könnyen megközelíthető.
TÁRSASHÁZ:
️ 1910-es évek körül épült, 6 szintes, liftes téglaépület.
️ Stílusos társasház, külső és belső homlokzata jó állapotú.
️ Műszakilag rendszeresen karbantartott, gondozott épület.
️ Lépcsőháza tiszta és rendezett.
️ Lakóközössége kultúrált, vegyes korosztály.
LAKÁS:
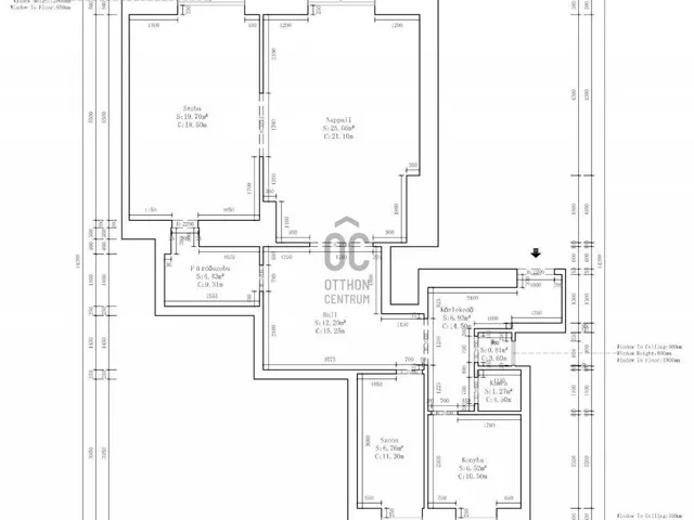
Magasföldszinti, 81 m2-es, 3 szobás, nagypolgári stílusú ingatlan.
Tulajdoni lapon földszinti, de ez a természetben első emeletnek felel meg.
A társasházban van lift, amivel a lakásig is el lehet jutni.
Az ingatlan műszakilag és esztétikailag is felújítandó állapotú.
Jelenlegi felosztása: közlekedő, 3 szoba, hall, konyha, kamra, fürdőszoba, WC.
Tájolása keleti, hatalmas ablakokkal és világos terekkel rendelkezik.
A szobák ablakai két utcára néző fa nyílászárók, koruknak megfelelő állapotban vannak.
A szobák parkettával, a konyha, a kamra, a fürdőszoba és a WC járólappal burkolt.
Belmagassága 320 cm, igény esetén fekvő galéria kialakítható.
Fűtését házközponti kazán, a hő-leadást radiátorok, a melegvíz ellátást villanybojler biztosítja.
Közös költsége 43.700 Ft/hó, ami tartalmazza a fűtés általányt és a vízdíjat is.
AZ INGATLAN MEGTEKINTHETŐ:
️ Személyesen
️ Online személyes bejelentkezéssel
FINANSZÍROZÁSI KÉRDÉSEKBEN – ONLINE ÜGYINTÉZÉSSEL IS – SEGÍTÜNK!
️ Bank-független hitelcenterünk díjmentesen versenyezteti az összes bank és hitelintézet ajánlatát.
️ Önnek csak annyi a dolga, hogy egyeztet munkatársunkkal, majd kiválasztja a hosszú távon is legkedvezőbb konstrukciót.
️ Szakértőink 20+ év tapasztalattal, fogyasztóbarát lakáshitelekkel, babaváró hitellel, teljes körű CSOK Plusz és OTTHON START program ügyintézéssel várják.
️ Időpont-egyeztetéssel munkaidő után is elérhetők.
Kérdés esetén és megtekintési időponttal kapcsolatban várom hívását!
Ez az ingatlan a Felező csomag megbízási portfólióhoz tartozik. Részletek az Otthon Centrum weboldalán.
Tulajdonságok
Téglalakás
Felújítandó
Házközponti
1910
Nem adta meg a hirdető
Vedd fel a kapcsolatot a hirdetővel
+36 70 435 2
Hitelkalkulátor
Második évtől
537 513 Ft A 13. hónaptól
7,99%
Végig fix Futamidő: 20 év Banki visszahívás
Az OTP Bank munkatársai a neked megfelelő napszakban veszik fel veled a kapcsolatot.Hitelfelvétel esetén akár egy héttel rövidebb lehet az ügyintézés.
Ez az ingatlan a nálunk meglévő adatok alapján azonnali értékbecslésre alkalmas lehet.
A becslés a hirdető által megadott adatokon alapul. A jelen tájékoztatás nem minősül ajánlattételnek és nem teljes körű, az egyes feltételek a hitelbírálat eredményétől függően változhatnak. Kérjük, a részletekről tájékozódj az OTP Bank fiókjaiban vagy az OTP Bank honlapján közzétett vonatkozó Üzletszabályzatokból és Hirdetményekből.
Vedd fel a kapcsolatot a hirdetővel
+36 70 435 2
Vedd fel a kapcsolatot a hirdetővel
+36 70 435 2
UI_KIT.CHARACTER_COUNTER__COMPONENT.ACTUAL_CHARACTER__SR_ONLY UI_KIT.CHARACTER_COUNTER__COMPONENT.MAXIMUM_CHARACTER__SR_ONLY
Hasonló eladó ingatlanok Országút városrészben
Frissítve: 4 napja
8
125 M Ft 1 623 377 Ft/m²
Eladó lakás, Budapest II. kerület, Országút

Frissítve: 4 napja
20
133,5 M Ft 1 880 282 Ft/m²
Eladó lakás, Budapest II. kerület, Országút

Frissítve: 1 napja
16
133,5 M Ft 1 880 282 Ft/m²
Eladó lakás, Budapest II. kerület, Országút


Fedezd fel a
hasonló lakásokat!Még további lakások Budapest II. kerület, Országút városrészben 124,9 M Ft körüli értékben
Tovább a hirdetésekhez Frissítve: ma
16
133,5 M Ft 1 880 282 Ft/m²
Eladó lakás, Budapest II. kerület, Országút

Frissítve: 4 napja
20
133,5 M Ft 1 880 282 Ft/m²
Eladó lakás, Budapest II. kerület, Országút

Frissítve: 4 napja
18
115 M Ft 281 174 Ft/m²
Eladó lakás, Budapest II. kerület, Országút

