+11 fotó
Hirdetéskód: 8942544
Referenciaszám: M325384
Feltöltve: ma
Budapest II. kerület eladó téglalakás 2+1 fél szobás: 154,9 millió Ft
154,9 millió Ft
1 844 048 Ft/m² *
* A m² árat a hirdető adta meg.
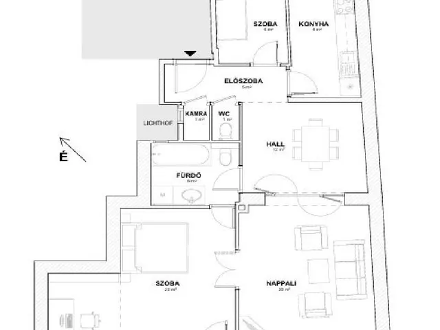
84 m²
2+1 fél szoba
2. emelet
Leírás
Budai életérzés a Rózsadomb lábánál. Tágas, erkélyes családi otthon a II. kerületben
Eladó egy különleges hangulatú, Bauhaus stílusú társasház legfelső szintjén található lakás a II. kerületi Kút utcában, a budai oldal egyik legélhetőbb, legkeresettebb részén.
Ez az otthon tökéletes választás mindazok számára, akik szeretnék ötvözni a városi kényelmet a nyugodt, zöld budai környezettel, és ideális lehet családok számára, akik hosszú távra terveznek.
Főbb jellemzők: 84 nm alapterület, 2 + fél szoba + hall (könnyen alakítható akár 3?4 szobássá), erkélyes, világos terek, 2,9 m belmagasság, két tájolás (DNY,ÉK) egész napos természetes fény, legfelső szint, nincs felső szomszéd, saját 6 nm-es pincetároló, közös, zöld belső kert használata.
Budai életérzés, minden karnyújtásnyira. A lakás elhelyezkedése kivételes: pár perc sétával elérhető minden, ami a kényelmes mindennapokhoz szükséges. miközben az utca csendes, nyugodt, átmenő forgalomtól szinte mentes. A közelben: Margit híd, Széll Kálmán tér, Mammut bevásárlóközpont, Fény utcai piac, Millenáris park, Margit-sziget.
Ez a környék tökéletes egyensúlyt teremt a városi pezsgés és a természet közelsége között.
Családra tervezve: a lakás elrendezése és alakíthatósága miatt ideális választás családoknak. Külön nyíló, jól szeparálható szobák, könnyen bővíthető szobaszám (akár 3 vagy 4 szobára), világos, élhető közösségi terek, biztonságos, barátságos lakóközösség
A nagy ablakoknak köszönhetően akár több fürdőszoba kialakítása is megoldható, így a lakás hosszú távon is kényelmes életteret biztosít.
Épület: 1940-es években épült, Bauhaus jellegű társasház, hőszigetelt, karbantartott állapot, 12 lakásos, csendes közösség, nagy, zöld belső kert, felújított, világos lépcsőház.
Lehetőség és érték egyben: a lakás jó állapotú, igény szerint korszerűsíthető, ugyanakkor már most is otthonos és azonnal költözhető. Kiváló választás azoknak, akik saját igényeikre formálható, értékálló budai otthont keresnek.
Tulajdonságok
Téglalakás
Átlagos
Házközponti
1940
6 m²
Nem adta meg a hirdető
Vedd fel a kapcsolatot a hirdetővel
Potoczki László Budapest III. kerület Lajos utca 74-76 - OTP Ingatlanpont Iroda Az iroda összes hirdetése
+36 70 458 4
Hitelkalkulátor
Második évtől
666 619 Ft A 13. hónaptól
7,99%
Végig fix Futamidő: 20 év Banki visszahívás
Az OTP Bank munkatársai a neked megfelelő napszakban veszik fel veled a kapcsolatot.Hitelfelvétel esetén akár egy héttel rövidebb lehet az ügyintézés.
Ez az ingatlan a nálunk meglévő adatok alapján azonnali értékbecslésre alkalmas lehet.
A becslés a hirdető által megadott adatokon alapul. A jelen tájékoztatás nem minősül ajánlattételnek és nem teljes körű, az egyes feltételek a hitelbírálat eredményétől függően változhatnak. Kérjük, a részletekről tájékozódj az OTP Bank fiókjaiban vagy az OTP Bank honlapján közzétett vonatkozó Üzletszabályzatokból és Hirdetményekből.
Vedd fel a kapcsolatot a hirdetővel
Potoczki László Budapest III. kerület Lajos utca 74-76 - OTP Ingatlanpont Iroda Az iroda összes hirdetése
+36 70 458 4
Vedd fel a kapcsolatot a hirdetővel
Potoczki László Budapest III. kerület Lajos utca 74-76 - OTP Ingatlanpont Iroda Az iroda összes hirdetése
+36 70 458 4
UI_KIT.CHARACTER_COUNTER__COMPONENT.ACTUAL_CHARACTER__SR_ONLY UI_KIT.CHARACTER_COUNTER__COMPONENT.MAXIMUM_CHARACTER__SR_ONLY
Hasonló eladó ingatlanok Országút városrészben
Frissítve: 1 napja
20
149,8 M Ft 1 741 860 Ft/m²
Eladó lakás, Budapest II. kerület, Országút

Frissítve: 28 napja
10
161 M Ft 1 769 231 Ft/m²
Eladó lakás, Budapest II. kerület, Országút
Frissítve: 3 napja
20
162 M Ft 2 025 000 Ft/m²
Eladó lakás, Budapest II. kerület, Országút, Szilágyi Erzsébet fasor


Fedezd fel a
hasonló lakásokat!Még további lakások Budapest II. kerületben 154,9 M Ft körüli értékben
Tovább a hirdetésekhez Frissítve: 1 napja
16
149,8 M Ft 1 741 860 Ft/m²
Eladó lakás, Budapest II. kerület, Országút
Frissítve: 22 napja
14
162 M Ft 2 025 000 Ft/m²
Eladó lakás, Budapest II. kerület, Országút

Frissítve: 28 napja
11
165 M Ft 1 755 319 Ft/m²
Eladó lakás, Budapest II. kerület, Országút

