+10 fotó
Hirdetéskód: 8950357
Referenciaszám: H513786-5188547
Feltöltve: ma
Budapest II. kerület eladó téglalakás 3 szobás: 132 millió Ft
132 millió Ft
2 095 238 Ft/m²
63 m²
3 szoba
1. emelet
Eladó lakás Budapest 2. ker., Zöldmál
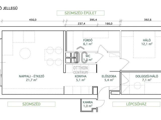
Eladó egy frissen és magas színvonalon felújított, 60 nm-es, egyedi tervezésű lakás Budapest II. kerületének egyik legkedveltebb, csendes részén, Zöldmál városrészben.
Az ingatlan valódi ritkaság a piacon: minden részletében átgondolt, harmonikus enteriőr és tudatos térkihasználás jellemzi.
A lakás kialakításánál az esztétikum és a funkcionalitás tökéletes egyensúlya volt a cél — minden négyzetméter értéket képvisel.
Főbb jellemzők:
- Kiváló elrendezésű, világos terek,
- Egyedi gyártású bútorok és nyílászárók — prémium minőség, nem tömeggyártott megoldások,
- Magas színvonalú anyaghasználat és igényes kivitelezés,
- Fűtő-hűtő klíma minden helyiségben a maximális komfortért,
- Hang- és hőszigetelt falak és nyílászárók,
- Megbízható, hatékony kazánfűtés (Ariston),
- Két külön bejáratú saját tároló (2 nm és 4 nm).
A lakáshoz tartozó terasz intim, zöldre néző kilátást biztosít, ideális helyszíne egy nyugodt reggeli kávézásnak vagy egy hosszú nap utáni esti kikapcsolódásnak.
Az emeleti elhelyezkedés privát életteret nyújt, miközben a környék természetközeli hangulata folyamatosan jelen van.
Ez az otthon ideális választás azok számára, akik a minőséget, az egyediséget és a zöldövezeti nyugalmat keresik — kompromisszumok nélkül.
További információért vagy megtekintési időpont egyeztetéséhez keressen bizalommal.
Tulajdonságok
Téglalakás
Felújított
Gázkazán
1970
Nem adta meg a hirdető
Vedd fel a kapcsolatot a hirdetővel
+36 70 465 6
Hitelkalkulátor
Második évtől
568 068 Ft A 13. hónaptól
7,99%
Végig fix Futamidő: 20 év Banki visszahívás
Az OTP Bank munkatársai a neked megfelelő napszakban veszik fel veled a kapcsolatot.Hitelfelvétel esetén akár egy héttel rövidebb lehet az ügyintézés.
Ez az ingatlan a nálunk meglévő adatok alapján azonnali értékbecslésre alkalmas lehet.
A becslés a hirdető által megadott adatokon alapul. A jelen tájékoztatás nem minősül ajánlattételnek és nem teljes körű, az egyes feltételek a hitelbírálat eredményétől függően változhatnak. Kérjük, a részletekről tájékozódj az OTP Bank fiókjaiban vagy az OTP Bank honlapján közzétett vonatkozó Üzletszabályzatokból és Hirdetményekből.
Vedd fel a kapcsolatot a hirdetővel
+36 70 465 6
Vedd fel a kapcsolatot a hirdetővel
+36 70 465 6
UI_KIT.CHARACTER_COUNTER__COMPONENT.ACTUAL_CHARACTER__SR_ONLY UI_KIT.CHARACTER_COUNTER__COMPONENT.MAXIMUM_CHARACTER__SR_ONLY
Hasonló eladó ingatlanok Zöldmál városrészben
Feltöltve: 6 hónapja
5
123 M Ft 3 617 647 Ft/m²
Eladó lakás, Budapest II. kerület, Zöldmál
Frissítve: 9 napja
7
129,9 M Ft 1 709 211 Ft/m²
Eladó lakás, Budapest II. kerület, Zöldmál
Frissítve: 7 napja
13
132 M Ft 2 095 238 Ft/m²
Eladó lakás, Budapest II. kerület, Zöldmál


Fedezd fel a
hasonló lakásokat!Még további lakások Budapest II. kerületben 132 M Ft körüli értékben
Tovább a hirdetésekhez Frissítve: 1 napja
13
132 M Ft 2 095 238 Ft/m²
Eladó lakás, Budapest II. kerület, Zöldmál

Frissítve: 1 napja
13
132 M Ft 2 095 238 Ft/m²
Eladó lakás, Budapest II. kerület, Zöldmál

Frissítve: 16 napja
13
132 M Ft 2 095 238 Ft/m²
Eladó lakás, Budapest II. kerület, Zöldmál

