+10 fotó
Hirdetéskód: 8961820
Referenciaszám: H513786-5195696
Feltöltve: ma
Budapest II. kerület eladó téglalakás 3 szobás: 132 millió Ft
132 millió Ft
2 095 238 Ft/m²
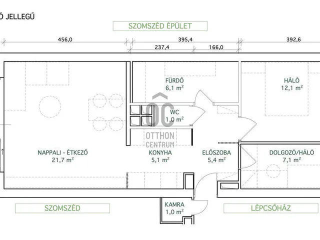
63 m²
3 szoba
1. emelet
Eladó lakás Budapest 2. ker., Zöldmál
Prémium minőségben felújított, egyedi tervezésű lakás eladó Zöldmálon!
Budapest II. kerületének egyik legkedveltebb, csendes részén, Zöldmálon kínálunk megvételre egy 60 m²-es, frissen és magas színvonalon felújított, egyedi tervezésű lakást.
Az ingatlan igazi ritkaság a piacon: átgondolt térkihasználás, harmonikus enteriőr és prémium kivitelezés jellemzi, ahol az esztétikum és funkcionalitás tökéletes egyensúlyban van.
Főbb jellemzők:
-Világos, kiváló elosztású terek
-Egyedi gyártású bútorok és nyílászárók
-Prémium anyaghasználat, igényes kivitelezés
-Fűtő-hűtő klíma minden helyiségben
-Kiváló hang- és hőszigetelés
-Hatékony, megbízható kazánfűtés (Ariston)
-Két saját tároló (2 m² és 4 m²)
Különlegesség:
-A lakáshoz tartozó terasz zöldre néző, intim környezetet biztosít, ideális -pihenésre vagy kikapcsolódásra.
-Az emeleti elhelyezkedésnek köszönhetően nyugodt, privát életteret kínál.
Elhelyezkedés:
-Csendes, zöldövezeti környezet
-Kiváló lokáció a II. kerületben
-Természetközeli hangulat, mégis jól megközelíthető
Ajánlom:
Azok számára, akik kompromisszumok nélkül keresnek egyedi, magas minőségű otthont, nyugodt környezetben.
További információért és megtekintésért keressen bizalommal!
Tulajdonságok
Téglalakás
Felújított
Gázkazán
1970
Nem adta meg a hirdető
Vedd fel a kapcsolatot a hirdetővel
+36 70 467 9
Hitelkalkulátor
Második évtől
568 068 Ft A 13. hónaptól
7,99%
Végig fix Futamidő: 20 év Banki visszahívás
Az OTP Bank munkatársai a neked megfelelő napszakban veszik fel veled a kapcsolatot.Hitelfelvétel esetén akár egy héttel rövidebb lehet az ügyintézés.
Ez az ingatlan a nálunk meglévő adatok alapján azonnali értékbecslésre alkalmas lehet.
A becslés a hirdető által megadott adatokon alapul. A jelen tájékoztatás nem minősül ajánlattételnek és nem teljes körű, az egyes feltételek a hitelbírálat eredményétől függően változhatnak. Kérjük, a részletekről tájékozódj az OTP Bank fiókjaiban vagy az OTP Bank honlapján közzétett vonatkozó Üzletszabályzatokból és Hirdetményekből.
Vedd fel a kapcsolatot a hirdetővel
+36 70 467 9
Vedd fel a kapcsolatot a hirdetővel
+36 70 467 9
UI_KIT.CHARACTER_COUNTER__COMPONENT.ACTUAL_CHARACTER__SR_ONLY UI_KIT.CHARACTER_COUNTER__COMPONENT.MAXIMUM_CHARACTER__SR_ONLY
Hasonló eladó ingatlanok Zöldmál városrészben
Feltöltve: 7 hónapja
5
123 M Ft 3 617 647 Ft/m²
Eladó lakás, Budapest II. kerület, Zöldmál
Frissítve: 2 napja
13
132 M Ft 2 095 238 Ft/m²
Eladó lakás, Budapest II. kerület, Zöldmál

Frissítve: 2 napja
7
129,9 M Ft 1 709 211 Ft/m²
Eladó lakás, Budapest II. kerület, Zöldmál

Fedezd fel a
hasonló lakásokat!Még további lakások Budapest II. kerületben 132 M Ft körüli értékben
Tovább a hirdetésekhez Frissítve: ma
13
132 M Ft 2 095 238 Ft/m²
Eladó lakás, Budapest II. kerület, Zöldmál

Frissítve: ma
13
132 M Ft 2 095 238 Ft/m²
Eladó lakás, Budapest II. kerület, Zöldmál

Frissítve: 2 napja
13
132 M Ft 2 095 238 Ft/m²
Eladó lakás, Budapest II. kerület, Zöldmál

