+17 fotó
Hirdetéskód: 8929344
Referenciaszám: P4774-1-01-02-003
Feltöltve: ma
Budapest II. kerület eladó téglalakás 4 szobás: 299,94 millió Ft
299,94 millió Ft
2 803 140 Ft/m²
107 m²
4 szoba
2. emelet
Off market lehetőség a 2. kerületben!
A penthouse lakás a terekről szól..
340 cm-es belmagasságával, imponáló tereivel és benapozottságával egy műteremlakáshoz hasonlítható!
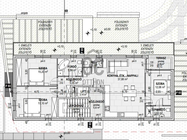
Az ingatlan nettó alapterülete 104,53 m² amely terasz résszel is kiegészül (5,18 m² terasz)
Projekt bemutatása
Új otthonok a 2. kerületben!
2026 .május 31-ig egyedi fizetési ütemezéssel!
A 2. kerület hűvösvölgyi részén rendkívül ritkán elérhetőek újépítésű lakások,
de most újabb lehetőséget nyitunk meg vásárlóink előtt.
AZ ÉPÜLET
A tervező személye mindig rendkívül fontos egy fejlesztésnél.
A luxus szegmensben már jól ismert építésziroda most is kitett magáért.
A kis lakásszámú épület minden szintjén egy lakás kerül kialakításra, így biztosítva a maximális privát életteret és az egyedülálló benapozást.
A terek nagyvonalúak, ahogy egy ilyen, fejlesztés megkívánja.
Az épület formavilága modern, mégsem a szokásos kocka minimál vonalat követi.
A homlokzaton travertin mészkőburkolat köszön vissza, amely amellett,
hogy rendkívül időtálló, kiemelkedően attraktív megjelenés biztosít a teljes épületnek.
A LAKÁSOK
Szintenként kizárólag egy lakás kap helyet, így biztosítva a privátszférát.
Minden lakás következetes tervezés eredménye, ezen az alapterületen kedvezőbb kialakítású lakást nem lehet kialakítani!
Így a lakásoknak az árkategóriájukban NINCS VERSENYTÁRSA!
Minden lakáshoz külön leválasztott garázsrész készül.
A földszinti és az I. emeleti lakás is, kertkapcsolattal fog rendelkezni!
ANYAGHASZNÁLAT
A prémium lokáció megköveteli az I. osztályú anyaghasználatot.
A tervezett kubatúra rendkívül egyedi, a homlokzatra felhasznált Travertin mészkőburkolata legnemesebb ókori építményeket idézi, hangsúlyozva az időtállóságot.
A kőzetgyapothőszigetelés és a beépített szellőztetőrendszer biztosítja a lakások megfelelő szellőzését.
A 3 rétegű Internorm fa nyílászárók tovább növelik a természetes anyaghasználat hangsúlyát, Európa egyik legismertebb nyílászárója magáért beszél.
A magas minőségű belsőajtók és a burkolatok kiválasztásához az ország egyik legnagyobb kínálatú bemutatóterme áll rendelkezésre.
MŰSZAKI FELSZERELTSÉG ÉS TECHNOLÓGIA
kifogástalan ENERGETIKA! nemcsak kiváló minőségű nyílászárók kerültek beépítésre, de a Daikin hőszivattyú mellett, hővisszanyerős szellőztetőrendszer biztosítja a lakóterek megfelelő levegőutánpótlását.
- élhető és világos terek számos nyílászáróval!
- gépesített konyha, makulátlan Miele gépekkel!
- minden lakáshoz vásárolható dupla teremgarázs beálló, amely külön kapuval lezárható+1 felszíni beállóval is rendelkezik
- a lifttel a garázsból egyenesen a lakás bejárati ajtóig juthatunk!
- a társasház közös kis gondozott kerttel is rendelkezik!
LOKÁCIÓ/SZOLGÁLTATÁSOK
sétatávolságon belül elérhető yoga stúdió, a környék legjobb zöldségese a Vitamin-Völgy,
és néhány percre található a Lidl, dm, nemzeti dohánybolt, barber, teniszpálya és a Hűvösvölgyi szolgáltatóház benne minden szolgáltatással.
10 percre a francia iskola,
15 percre a Széll Kálmán tér
3 percre a kínai iskola, illetve további iskolák, óvódák és bölcsődék séta távolságra!
TÖMEGKÖZLEKEDÉS
A tömegközlekedés gyors és kényelmes,
busz
5, 29,129,956
villamos
56,56A, 59B, 61
a Széll Kálmán tértől pedig könnyen elérhető az egész város!
A kerületrész amellett, hogy közkedvelt lakhatás céljából, kiváló befektetési lehetőséggel is kecsegtet, mivel a kerületrész nem bővelkedik a lehetőségekben.
Fizetési ütemezés:
az alapfizetési ütemezés
20% az előszerződés megkötésekor
20% a szerkezetkész állapot elérésekor
a fennmaradó 60% akár a használatbavételt követően!
AZ ELSŐ INGATLANVÁSÁRLÓ 5 % KEDVEZMÉNYT KAP AZ ÁRBÓL, AMENNYIBEN A 20-30-20-30%-OS FINANSZÍROZÁST VÁLASZTJA.
A további egyedi fizetési lehetőségek miatt, kérem hívjon!
Tulajdonságok
Téglalakás
Új építésű
2027
5,2 m²
Nem adta meg a hirdető
Vedd fel a kapcsolatot a hirdetővel
+36 70 465 6
Hitelkalkulátor
Második évtől
1 290 788 Ft A 13. hónaptól
7,99% 8,49%
Végig fix Futamidő: 20 év Banki visszahívás
Az OTP Bank munkatársai a neked megfelelő napszakban veszik fel veled a kapcsolatot.Hitelfelvétel esetén akár egy héttel rövidebb lehet az ügyintézés.
Ez az ingatlan a nálunk meglévő adatok alapján azonnali értékbecslésre alkalmas lehet.
A becslés a hirdető által megadott adatokon alapul. A jelen tájékoztatás nem minősül ajánlattételnek és nem teljes körű, az egyes feltételek a hitelbírálat eredményétől függően változhatnak. Kérjük, a részletekről tájékozódj az OTP Bank fiókjaiban vagy az OTP Bank honlapján közzétett vonatkozó Üzletszabályzatokból és Hirdetményekből.
Vedd fel a kapcsolatot a hirdetővel
+36 70 465 6
Vedd fel a kapcsolatot a hirdetővel
+36 70 465 6
UI_KIT.CHARACTER_COUNTER__COMPONENT.ACTUAL_CHARACTER__SR_ONLY UI_KIT.CHARACTER_COUNTER__COMPONENT.MAXIMUM_CHARACTER__SR_ONLY
Hasonló eladó ingatlanok Budapest II. kerületben
Frissítve: ma
20
308,98 M Ft 4 351 770 Ft/m²
Eladó lakás, Budapest II. kerület

Frissítve: 24 napja
20
329 M Ft 2 150 327 Ft/m²
Eladó lakás, Budapest II. kerület
Frissítve: 22 napja
20
271 M Ft 2 669 951 Ft/m²
Eladó lakás, Budapest II. kerület


Fedezd fel a
hasonló lakásokat!Még további lakások Budapest II. kerületben 299,94 M Ft körüli értékben
Tovább a hirdetésekhez Frissítve: 14 napja
20
Tulipán Luxury Residence I.
285,02 M Ft 3 471 590 Ft/m²
Eladó lakás, Budapest II. kerület, Tulipán utca

Frissítve: 18 napja
15
320 M Ft 3 368 421 Ft/m²
Eladó lakás, Budapest II. kerület

Frissítve: 22 napja
20
289 M Ft 3 175 824 Ft/m²
Eladó lakás, Budapest II. kerület


