+17 fotó
Hirdetéskód: 8801705
Referenciaszám: M307669-5093680
Frissítve: 1 napja
Budapest III. kerület eladó téglalakás 3 szobás: 141,9 millió Ft
141,9 millió Ft
1 842 857 Ft/m²
77 m²
3 szoba
földszint
Eladó Lakás, Budapest 3. ker.
Közel Budapest nyüzsgő központjához, mégis távol a város zajától!
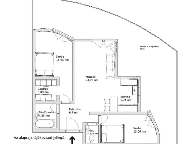
A 3. kerületi Forest Hill lakóparkban eladó egy 77 nm-es, 2 hálószobás, földszinti, örökpanorámás lakás közvetlen kertkapcsolattal.
A tágas, világos, amerikai konyhás nappali délkeleti fekvésű, innen nyílik a 12 nm-es fedett terasz és a saját használatú kert.
A két hálószoba a nappali két oldalán helyezkedik el, így ideális elosztású akár családnak vagy home office-hoz is.
Az egyik háló 16 nm, gardróbszobával és kertkapcsolattal, a másik 13 nm, saját 8,5 nm-es burkolt terasszal rendelkezik.
A fürdőszoba kádas, a WC külön helyiségben található.
A vételár tartalmazza a beépített, teljesen gépesített konyhabútort és a képeken látható bútorokat is.
A lakás minden helyiségében elektromos alumínium redőny található, a nappali légkondicionált.
Fűtése házközponti, egyedi mérőkkel, radiátoros hőleadással.
A közös költség tartalmazza a 40 nm-es saját kert gondozását, vízfogyasztást és a szemétszállítást is.
Igény esetén egy közel 14 nm-es garázs is vásárolható az ingatlanhoz.
Ez a lakás tökéletes választás mindazoknak, akik zöld, csendes környezetre vágynak, mégis elérhető távolságra szeretnének maradni a belvárostól.
Close to the bustling center of Budapest, yet far from the noise of the city!
A 77 sqm, 2-bedroom, ground-floor, panoramic apartment with direct garden access is for sale in the Forest Hill residential park in the 3rd district. The spacious, bright, American-style living room with kitchen is southeast facing, from here you can open up to the 12 sqm covered terrace and the private garden. The two bedrooms are located on either side of the living room, making it an ideal layout for a family or a home office.
One bedroom is 16 sqm, with a wardrobe and garden connection, the other is 13 sqm, with its own 8.5 sqm paved terrace. The bathroom has a bathtub, the toilet is in a separate room.
The purchase price includes the built-in, fully mechanized kitchen furniture and the furniture shown in the pictures. There are electric aluminum shutters in every room of the apartment, the living room is air-conditioned. The heating is central, with individual meters, with radiator heat transfer. The common cost includes the maintenance of the 40 sqm private garden, water consumption and garbage disposal. If desired, a garage of nearly 14 sqm can also be purchased with the property.
This apartment is the perfect choice for all those who want a green, quiet environment, but still want to stay within reach of the city center.
Antal Enikő
+36/20-371-2105
Tulajdonságok
Téglalakás
Újszerű
Házközponti fűtés egyedi méréssel
2023
Nem adta meg a hirdető
Vedd fel a kapcsolatot a hirdetővel
Antal Enikő OTPip - Budapest IX. kerület Üllői út 21 - OTP Ingatlanpont Iroda Az iroda összes hirdetése
+36 20 371 2
Hitelkalkulátor
Második évtől
610 673 Ft A 13. hónaptól
7,99%
Végig fix Futamidő: 20 év Banki visszahívás
Az OTP Bank munkatársai a neked megfelelő napszakban veszik fel veled a kapcsolatot.Hitelfelvétel esetén akár egy héttel rövidebb lehet az ügyintézés.
Ez az ingatlan a nálunk meglévő adatok alapján azonnali értékbecslésre alkalmas lehet.
A becslés a hirdető által megadott adatokon alapul. A jelen tájékoztatás nem minősül ajánlattételnek és nem teljes körű, az egyes feltételek a hitelbírálat eredményétől függően változhatnak. Kérjük, a részletekről tájékozódj az OTP Bank fiókjaiban vagy az OTP Bank honlapján közzétett vonatkozó Üzletszabályzatokból és Hirdetményekből.
Vedd fel a kapcsolatot a hirdetővel
Antal Enikő OTPip - Budapest IX. kerület Üllői út 21 - OTP Ingatlanpont Iroda Az iroda összes hirdetése
+36 20 371 2
Vedd fel a kapcsolatot a hirdetővel
Antal Enikő OTPip - Budapest IX. kerület Üllői út 21 - OTP Ingatlanpont Iroda Az iroda összes hirdetése
+36 20 371 2
UI_KIT.CHARACTER_COUNTER__COMPONENT.REMAINING_SPACE__SR_ONLYUI_KIT.CHARACTER_COUNTER__COMPONENT.MAXIMUM_CHARACTER__SR_ONLY
Hasonló eladó ingatlanok Csillaghegy városrészben
Frissítve: 1 napja
10
129,9 M Ft 1 623 750 Ft/m²
Eladó lakás, Budapest III. kerület, Csillaghegy

Frissítve: 28 napja
10
129,9 M Ft 1 623 750 Ft/m²
Eladó lakás, Budapest III. kerület, Csillaghegy

Frissítve: ma
9
129,9 M Ft 1 546 429 Ft/m²
Eladó lakás, Budapest III. kerület, Csillaghegy


Fedezd fel a
hasonló lakásokat!Még további lakások Budapest III. kerület, Csillaghegy városrészben 141,9 M Ft körüli értékben
Tovább a hirdetésekhez Frissítve: 3 hónapja
9
MyCity Panorama
127,87 M Ft 2 029 714 Ft/m²
Eladó lakás, Budapest III. kerület, Csillaghegy, Pusztakúti út 12-30.
Frissítve: 3 hónapja
9
MyCity Panorama
144,72 M Ft 1 644 545 Ft/m²
Eladó lakás, Budapest III. kerület, Csillaghegy, Pusztakúti út 12-30.
Frissítve: 3 hónapja
9
MyCity Panorama
142,34 M Ft 1 735 902 Ft/m²
Eladó lakás, Budapest III. kerület, Csillaghegy, Pusztakúti út 12-30.

Töltsd fel hirdetésed ingyenesen!
Egyszerű
