+17 fotó
Hirdetéskód: 8942935
Referenciaszám: H515003-5183911
Feltöltve: 2 napja
Budapest III. kerület eladó téglalakás 2 szobás: 116 millió Ft
116 millió Ft
2 109 091 Ft/m²
55 m²
2 szoba
3. emelet
Eladó lakás Budapest 3. ker., Óbuda
Magas minőségben felújított, 55 nm-es, erkélyes, dunai panorámás, 3. emeleti lakás eladó liftes társasházban – ide tényleg csak beköltözni kell!
Új tulajdonosát keresi Óbuda kifejezetten kedvelt részén, a Kolosy térhez közel egy 55 m2-es, 2 szobás, erkélyes, frissen és igényesen felújított tégla lakás.
Ha fontos Önnek a jó közlekedés, a Duna közelsége, a központi elhelyezkedés akkor ezt a lakást feltétlenül nézze meg!
KÖRNYÉK ÉS KÖZLEKEDÉS:
- III. kerület, Óbuda, a Kolosy tér vonzáskörzete.
- Frekventált környék, kiváló infrastruktúrával és jó tömegközlekedéssel.
- A hétköznapokhoz szükséges szolgáltatások sétatávolságon belül kényelmesen elérhetők.
- Karnyújtásnyira a Kolosy téri bevásárlóközpont és az Óbudai Egyetem több kara
- Közelben a Komjádi uszoda és a Lukács fürdő
- 10 perces körön belül elérhető élelmiszerbolt, park, játszótér, uszoda, oktatási és egészségügyi intézmények is.
- A HÉV, a 17-es, 19-es, a 41-es villamosjárat és számos autóbuszjárat, éjszakai busz megállója 2 perc sétára.
- Parkolni az utcán, a ház előtt lehet.
A HÁZRÓL:
- 1943-as években épült, 4 szintes, liftes téglaépület.
- 25 lakásos, zárt lépcsőházas, gondozott társasház.
- A ház homlokzata is jó állapotú, a lakók gondját viselik az épületnek.
- A lakóközösség kulturált, igényes környezetére, a közös képviselet megbízható, a társasház megtakarítással rendelkezik.
- A lakáshoz tartozik egy önálló, 8 nm-es pincerekesz is.
AMIT A LAKÁSRÓL FONTOS TUDNI:
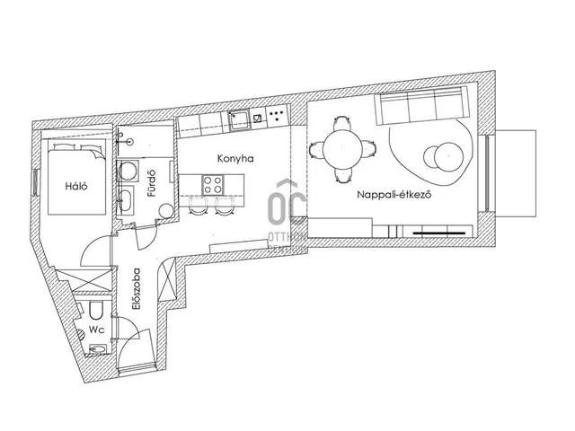
- 55 m2-es, 3. emeleti, 2 szobás, erkélyes, frissen felújított, azonnal költözhető ingatlan.
- Alaprajza átgondolt: az eredeti 1 szobás lakás amerikai konyhás nappali + külön hálószobás elrendezésre lett átalakítva
- Jelenlegi felosztása: előszoba, konyha-nappali-étkező, hálószoba, fürdőszoba, külön WC, erkély.
- Fűtését és hűtését fain col klíma biztosítja.
- A hálószoba ablaka hátsó zöld udvarra, a nappali ablaka a Dunára néz.
- Előszoba-konyha--nappali-étkező és hálószoba hajópadlóval, a vizes helyiségek járólappal burkoltak.
- A közös költség 24.000 Ft/hó, amely tartalmazza a szemétszállítást, a lépcsőház világítást, takarítást és a felújítási alapot is.
Ideális választás egyedülállóknak, fiatal pároknak vagy befektetésnek is.
AZ INGATLAN MEGTEKINTHETŐ:
* Személyesen,
* ONLINE, személyes bemutatással.
FINANSZÍROZÁSI KÉRDÉSEKBEN ONLINE ÜGYINTÉZÉSSEL IS SEGÍTÜNK:
* Bank-független hitelcenterünk díjmentesen versenyezteti minden bank és hitelintézet ajánlatát.
* Önnek nincs más dolga, mint beszélgetni munkatársunkkal, majd a megversenyeztetett ajánlatokból kiválasztani a hosszútávon is a legmegfelelőbb konstrukciót.
* Szakértőink 20 éves szakmai tapasztalattal és egyedi igényekre szabott, fogyasztóbarát lakáshitelekkel, babaváró hitellel, teljes körű CSOK PLUSZ és OTTHON START ügyintézéssel várják Önt.
* Előre egyeztetve akár a normál munkaidő után is.
Az ingatlan kiváló elhelyezkedésének köszönhetően igazán sok lehetőséget rejt magában, akár saját részre, akár üzleti célra keres ezt mindenképp érdemes megnézni!
Érdeklődés esetén VÁROM HÍVÁSÁT a hét minden napján!
Tulajdonságok
Téglalakás
Felújított
Elektromos
1943
Nem adta meg a hirdető
Vedd fel a kapcsolatot a hirdetővel
+36 70 465 6
Hitelkalkulátor
Második évtől
499 211 Ft A 13. hónaptól
7,99%
Végig fix Futamidő: 20 év Banki visszahívás
Az OTP Bank munkatársai a neked megfelelő napszakban veszik fel veled a kapcsolatot.Hitelfelvétel esetén akár egy héttel rövidebb lehet az ügyintézés.
Ez az ingatlan a nálunk meglévő adatok alapján azonnali értékbecslésre alkalmas lehet.
A becslés a hirdető által megadott adatokon alapul. A jelen tájékoztatás nem minősül ajánlattételnek és nem teljes körű, az egyes feltételek a hitelbírálat eredményétől függően változhatnak. Kérjük, a részletekről tájékozódj az OTP Bank fiókjaiban vagy az OTP Bank honlapján közzétett vonatkozó Üzletszabályzatokból és Hirdetményekből.
Vedd fel a kapcsolatot a hirdetővel
+36 70 465 6
Vedd fel a kapcsolatot a hirdetővel
+36 70 465 6
UI_KIT.CHARACTER_COUNTER__COMPONENT.ACTUAL_CHARACTER__SR_ONLY UI_KIT.CHARACTER_COUNTER__COMPONENT.MAXIMUM_CHARACTER__SR_ONLY
Hasonló eladó ingatlanok Óbuda városrészben
Frissítve: 22 napja
11
119,9 M Ft 908 333 Ft/m²
Eladó lakás, Budapest III. kerület, Óbuda

Frissítve: 1 hónapja
19
113,9 M Ft 1 539 189 Ft/m²
Eladó lakás, Budapest III. kerület, Óbuda

Frissítve: 28 napja
9
109,9 M Ft 1 324 096 Ft/m²
Eladó lakás, Budapest III. kerület, Óbuda


Fedezd fel a
hasonló lakásokat!Még további lakások Budapest III. kerület, Óbuda városrészben 116 M Ft körüli értékben
Tovább a hirdetésekhez Frissítve: ma
18
114,9 M Ft 1 492 208 Ft/m²
Eladó lakás, Budapest III. kerület, Óbuda

Frissítve: 2 napja
16
115 M Ft 2 346 939 Ft/m²
Eladó lakás, Budapest III. kerület, Óbuda

Frissítve: 11 napja
18
114,9 M Ft 1 492 208 Ft/m²
Eladó lakás, Budapest III. kerület, Óbuda

