+15 fotó
Hirdetéskód: 8959168
Referenciaszám: 7299
Frissítve: 2 napja
Budapest III. kerület eladó téglalakás 2+1 fél szobás: 93 millió Ft
93 millió Ft
2+1 fél szoba
4. emelet
Leírás
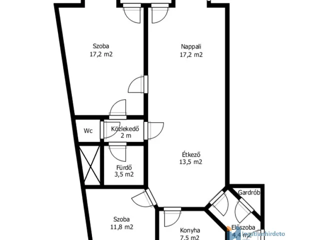
Elhelyezkedése: Társasház Emeleti elhelyezkedés: Emeleten Emelet száma: 4 Épület emeleteinek száma: 6 Tájolása: Keleti tájolású Állapota: Használt - felújítandó Komfort besorolása: összkomfortos Építési éve: 1986 Alapterülete: 78 m2 Szobák száma: 2 + 1 szoba Közművek: Gáz, Víz, Villany, Csatorna Fűtés típusa: Cirkó Homlokzat állapot: átlagos Építési mód: Tégla Tető anyaga: Cserép Parkolási lehetőség: Garázsban Kilátás: Utcafronti kilátás Jellemzői: Alacsony rezsi, Jó közlekedés Energetikai besorolás: Nincs adat Egyéb jellemzők: Erkély Terhelések: Tehermentes ingatlan Eladásra vonatkozó információk: Azonnal beköltözhető
3. kerületben, a Pacsirtamező utcában eladó egy 4. emeleti, felújítandó 78 m2-es, 2 szobás és 1 félszobás, erkélyes (3 m2), világos, tégla lakás.
Az 1986-ban épült tégla társasház 6 emeletes. Lift szolgálja a lakók kényelmét. A lépcsőház karban- és tisztán tartott. Az épület mögött közös kert biztosítja a lakók kikapcsolódását és nyugalmát.
A lakáshoz tartozik a padlás szinten egy 4 m2-es tároló, melyet a vételár tartalmaz.
A lakás főbb jellemzői:
- tehermentes
- azonnal birtokba vehető
- K-i és NY-i fekvés
- ablakos konyha
- fürdőszoba káddal
- külön WC
- minden egyedileg mérhető
Fűtés: cirkó gázkazán
Közös költség: 34.760 Ft/hó
A lakáshoz tartozik az udvarban 1 db külön helyrajzi számmal rendelkező zárható garázs (21 m2), melyeknek ára további 20 M Ft és igény esetén megvásárolható.
Közlekedés: HÉV (H5) buszok (9, 29, 111) villamosok (17, 19, 41) éjszakai járatok (923, 934, 960) pár percen belül elérhetőek
Közelben: bevásárlási lehetőségek, óvoda, iskola, bank, posta, gyógyszertár stb.
További információért kérem, hívjon bizalommal, majd nézze meg személyesen, és tegyen egy ajánlatot!
Tulajdonságok
Téglalakás
6
Felújítandó
1986
Nem adta meg a hirdető
Vedd fel a kapcsolatot a hirdetővel
+36 30 333 6
Hitelkalkulátor
Második évtől
400 230 Ft A 13. hónaptól
7,99%
Végig fix Futamidő: 20 év Banki visszahívás
Az OTP Bank munkatársai a neked megfelelő napszakban veszik fel veled a kapcsolatot. A becslés a hirdető által megadott adatokon alapul. A jelen tájékoztatás nem minősül ajánlattételnek és nem teljes körű, az egyes feltételek a hitelbírálat eredményétől függően változhatnak. Kérjük, a részletekről tájékozódj az OTP Bank fiókjaiban vagy az OTP Bank honlapján közzétett vonatkozó Üzletszabályzatokból és Hirdetményekből.
Vedd fel a kapcsolatot a hirdetővel
+36 30 333 6
Vedd fel a kapcsolatot a hirdetővel
+36 30 333 6
UI_KIT.CHARACTER_COUNTER__COMPONENT.ACTUAL_CHARACTER__SR_ONLY UI_KIT.CHARACTER_COUNTER__COMPONENT.MAXIMUM_CHARACTER__SR_ONLY
Hasonló eladó ingatlanok Óbuda városrészben
Feltöltve: 1 éve
1
89,9 millió Ft 1,23 millió Ft/m²
Eladó lakás, Budapest III. kerület, Óbuda
Frissítve: 5 hónapja
1
96,5 millió Ft 1,4 millió Ft/m²
Eladó lakás, Budapest III. kerület, Óbuda
Frissítve: 10 napja
13
98,18 millió Ft 1,79 millió Ft/m²
Eladó lakás, Budapest III. kerület, Óbuda

Fedezd fel a
hasonló lakásokat!Még további lakások Budapest III. kerület, Óbuda városrészben 93 M Ft körüli értékben
Tovább a hirdetésekhez Frissítve: 9 hónapja
1
90 millió Ft 1,48 millió Ft/m²
Eladó lakás, Budapest III. kerület, Óbuda
Frissítve: 14 napja
12
91,5 millió Ft 1,37 millió Ft/m²
Eladó lakás, Budapest III. kerület, Óbuda

Frissítve: 9 hónapja
Szüneteltetett hirdetés - Budapest III. kerület, Óbuda
A hirdető átmenetileg szünetelteti az ingatlanhirdetést.
