

+10 fotó
Hirdetéskód: 7930481
Referenciaszám: 213306003
Frissítve: 7 napja
Budapest III. kerület eladó téglalakás 3 szobás: 120,22 millió Ft
120,22 millió Ft
1 742 261 Ft/m²
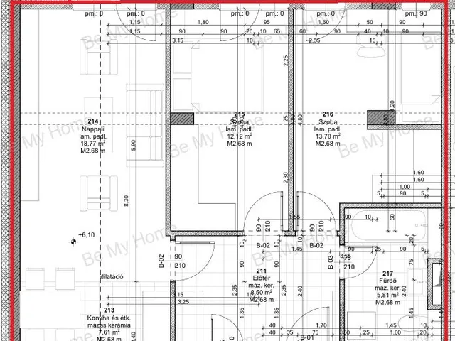
69 m²
3 szoba
2. emelet
III. KERÜLETBEN ÚJ ÉPÍTÉSŰ TÁRSASHÁZI LAKÁSOK LEKÖTHETŐK!
2. EMELETI, NAPPALI + 2 HÁLÓSZOBA + 12 NM TERASZ!
Óbuda-Filatorigáton épülő 20 lakásos LIFTES társasház lakásainak értékesítése megkezdődött!
A terület ellátottsága kiváló, pár perc sétára található a GoBuda Mall,
az 1-es villamos végállomása, buszmegállók, fonódó villamosok végállomása.
Műszaki tartalma érintőlegesen:
Külső nyílászárók:
Egyedi gyártású műanyag nyílászárók, háromrétegű (k= 0,7) thermo üvegezéssel (3rtg üveg).
A beépített redőnyszekrényeket a műszaki kivitel tartalmazza, hőszigetelő alumínium lamellával.
Bejárati ajtók:
Egyedileg készített fém borítású biztonsági ajtó, kitekintő nyílással a MABISZ által elfogadott kivitelben .
Belső nyílászárók:
Furnérozott vagy fóliás sík tömör vagy üvegezett ajtók, matt króm kilinccsel (szerelve br. 90.000 Ft értékben). Csak hagyományos nyíló kivitelben, 75x210 cm vagy 90x210 cm standard méretekben.
Lehetőség van tolószerkezetek elkészítésére is, felár ellenében.
Hőközpont:
Kiemelten energiatakarékos hőszivatyú és 1db tartalék gáz kazán gépésztervek szerint méretezett teljesítménnyel, puffertárolós melegvízellátással. Lakásoknál digitális hőmennyiségmérővel.
Hőleadók:
Oxigéndiffúz mentes csövezéssel, padlófűtés rendszerrel, méretezés szerint.
Szaniter áruk:
Duravit vagy Villeroy szaniterek (50.000 Ft bruttó/db)
A WC és a bidet fali függesztett, beépített tartállyal rendelkező szerelvények, Valsir falitartállyal illetve szerelvényekkel. A fürdőkád egyenes akrilkád (70.000 Ft/db értékben)
Eladó lakásaink:
Fszt.1. 71 nm + 17 nm terasz + kertkapcsolat
Fszt.2. 76 nm + 20.5 nm terasz + kertkapcsolat FOGLALVA
1.em.1. 69 nm + 12 nm terasz
1.em.2. 48 nm ELADVA
1.em.3. 43 nm ELADVA
1.em.4. 69 nm + 15 nm terasz ELADVA
1.em.5. 44 nm + 7.6 nm terasz ELADVA
1.em.6. 78 nm
2.em.1. 69 nm + 12 nm terasz
2.em.2. 48 nm ELADVA
2.em.3. 43 nm ELADVA
2.em.4. 69 nm + 15 nm terasz FOGLALVA
2.em.5. 44 nm + 7.6 nm terasz ELADVA
2.em.6. 78 nm
3.em.1. 107 nm + 25 nm terasz FOGLALVA
3.em.2. 44 nm + 15 nm terasz FOGLALVA
3.em.3. 102 nm + 28 nm terasz
3.em.4. 41 nm + 14 nm terasz FOGLALVA
3.em.5. 73 nm + 13 nm terasz
3.em.6. 74 nm + 16 nm terasz
TEREMGARÁZS BEÁLLÓHELY 6 MFt.
A kivitelező megbízható, nagy múltú cég, referenciákkal rendelkezik!
ÁTADÁS 2026. I. NEGYEDÉV
Irodánk segíti ügyfeleit abban az esetben is amennyiben a vásárláshoz:
- ingatlant kell értékesíteni
- hitelre lesz szüksége
- állami támogatást szeretne igénybe venni
- asztalosra, kertészre egyéb szakemberre van szüksége
Várom hívását, akár hétvégén is.
Tulajdonságok
Téglalakás
3
Új építésű
Egyéb
2024
Nem adta meg a hirdető
Vedd fel a kapcsolatot a hirdetővel
+36 30 235 7
Hitelkalkulátor
Második évtől
517 355 Ft A 13. hónaptól
7,99% 8,49%
Végig fix Futamidő: 20 év Banki visszahívás
Az OTP Bank munkatársai a neked megfelelő napszakban veszik fel veled a kapcsolatot.Hitelfelvétel esetén akár egy héttel rövidebb lehet az ügyintézés.
Ez az ingatlan a nálunk meglévő adatok alapján azonnali értékbecslésre alkalmas lehet.
A becslés a hirdető által megadott adatokon alapul. A jelen tájékoztatás nem minősül ajánlattételnek és nem teljes körű, az egyes feltételek a hitelbírálat eredményétől függően változhatnak. Kérjük, a részletekről tájékozódj az OTP Bank fiókjaiban vagy az OTP Bank honlapján közzétett vonatkozó Üzletszabályzatokból és Hirdetményekből.
Vedd fel a kapcsolatot a hirdetővel
+36 30 235 7
Vedd fel a kapcsolatot a hirdetővel
+36 30 235 7
UI_KIT.CHARACTER_COUNTER__COMPONENT.REMAINING_SPACE__SR_ONLYUI_KIT.CHARACTER_COUNTER__COMPONENT.MAXIMUM_CHARACTER__SR_ONLY
Hasonló eladó ingatlanok Budapest III. kerületben
Frissítve: 11 napja

7
113,5 M Ft 1 940 171 Ft/m²
Eladó lakás, Budapest III. kerület

Frissítve: 9 napja

6
Waterfront City 4/ 6A, 6B, 6C
128 M Ft 2 461 538 Ft/m²
Eladó lakás, Budapest III. kerület

Frissítve: 11 napja

3
117 M Ft 2 000 000 Ft/m²
Eladó lakás, Budapest III. kerület


Fedezd fel a
hasonló lakásokat!Még további lakások Budapest III. kerületben 120,22 M Ft körüli értékben
Tovább a hirdetésekhez Frissítve: 7 napja

10
130,46 M Ft 1 762 936 Ft/m²
Eladó lakás, Budapest III. kerület
Frissítve: 7 napja

14
124,82 M Ft 1 600 205 Ft/m²
Eladó lakás, Budapest III. kerület
Frissítve: 7 napja

14
122,06 M Ft 1 769 043 Ft/m²
Eladó lakás, Budapest III. kerület

Töltsd fel hirdetésed ingyenesen!
Egyszerű