

+5 fotó
Hirdetéskód: 8735607
Referenciaszám: 388135
Frissítve: ma
Budapest III. kerület eladó téglalakás 3 szobás: 137 millió Ft
137 millió Ft
1 826 667 Ft/m²
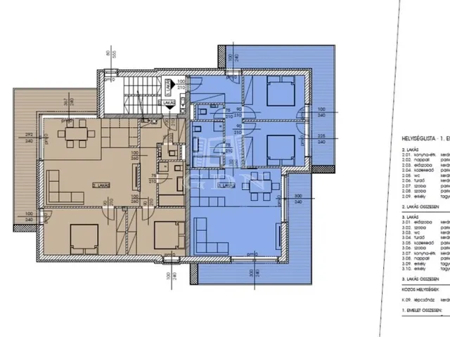
75 m²
3 szoba
1. emelet
Eladó téglalakás Budapest, III. kerület, 75nm, 137.000.000Ft - Kisbojtár utca
Modern elegancia Óbuda szívében – tágas, teraszos lakás eladó
Alapterület: 75,87 m² + terasz: 19,5 m² → összesen: 85,62 m²
Ár: 137 M Ft
Garázs: opcionálisan vásárolható, 8 M Ft
Oázis Óbuda szívében – napsütötte teraszok, elegáns otthonok, kertvárosi hangulat
A Kisbojtár projekt a III. kerületben, a Bojtár utca és a Kisbojtár utca találkozásánál helyezkedik el, csendes, barátságos környezetben. A Bécsi és a Szentendrei utak közelsége révén a közlekedés kiváló, miközben a környék megőrzi meghitt, családias hangulatát
Bölcsőde, óvoda, iskolák, valamint több szuper- és hipermarket néhány perces távolságra találhatók, így a mindennapi élet kényelmesen megszervezhető.
A projektben összesen két épületben, mindössze nyolc lakás került kialakításra, így a lakóközösség kis létszámú, exkluzív. A földszinti lakások kertkapcsolatosak, az emeleti otthonokat tágas teraszok, a legfelső szinteket pedig egyedi penthouse jelleg jellemzi. A pinceszinten kényelmes teremgarázs-beállók és közös gépészeti helyiségek találhatók.
Az eladó lakás a 1. emeleten helyezkedik el, kiváló beosztású, világos terekkel és 19,5 m²-es terasszal, amely tökéletes helyszíne lehet a reggeli kávézásnak vagy esti pihenésnek.
Műszaki tartalom – a modern komfort szolgálatában
Energetikai besorolás: A+
Fűtés: Daikin levegő–levegő hőszivattyús rendszer padlófűtéssel
Hűtés: szobánként 1–1 fancoil egység
Nyílászárók: 5 légkamrás, 3 rétegű üvegezés
Redőny: elektromos alumínium redőnyhöz kiállások előkészítve
Homlokzat: 15 cm kőzetgyapot szigetelés
Burkolatok: igényes, nagylapos fürdőszobai burkolatok
A lakások minden részletükben a mai kor elvárásainak megfelelő, energiahatékony és kényelmes életteret biztosítanak.
Miért különleges ez az ingatlan?
✅ Beköltözhető, per- és tehermentes
✅ Kiváló infrastruktúra, mégis csendes környezet
✅ Kis lakásszámú, exkluzív társasház
✅ Modern technológia, alacsony fenntartási költségek
✅ Kiváló lakóérték és remek befektetés ...TOVÁBBI, TÖBBEZRES INGATLAN KÍNÁLAT: www.gdn-ingatlan.hu - GDN azonosító: 388135
Tulajdonságok
Téglalakás
Új építésű
Hőszivattyú
2025
19 m²
Nem adta meg a hirdető
Vedd fel a kapcsolatot a hirdetővel
+36 70 427 7
Hitelkalkulátor
Második évtől
589 586 Ft A 13. hónaptól
7,99% 8,49%
Végig fix Futamidő: 20 év Banki visszahívás
Az OTP Bank munkatársai a neked megfelelő napszakban veszik fel veled a kapcsolatot.Hitelfelvétel esetén akár egy héttel rövidebb lehet az ügyintézés.
Ez az ingatlan a nálunk meglévő adatok alapján azonnali értékbecslésre alkalmas lehet.
A becslés a hirdető által megadott adatokon alapul. A jelen tájékoztatás nem minősül ajánlattételnek és nem teljes körű, az egyes feltételek a hitelbírálat eredményétől függően változhatnak. Kérjük, a részletekről tájékozódj az OTP Bank fiókjaiban vagy az OTP Bank honlapján közzétett vonatkozó Üzletszabályzatokból és Hirdetményekből.
Vedd fel a kapcsolatot a hirdetővel
+36 70 427 7
Vedd fel a kapcsolatot a hirdetővel
+36 70 427 7
UI_KIT.CHARACTER_COUNTER__COMPONENT.REMAINING_SPACE__SR_ONLYUI_KIT.CHARACTER_COUNTER__COMPONENT.MAXIMUM_CHARACTER__SR_ONLY
Hasonló eladó ingatlanok Budapest III. kerületben
Frissítve: 2 napja

9
141,72 M Ft 1 375 922 Ft/m²
Eladó lakás, Budapest III. kerület
Frissítve: 10 napja

6
Waterfront City 4/ 6A, 6B, 6C
128 M Ft 2 461 538 Ft/m²
Eladó lakás, Budapest III. kerület

Frissítve: 12 napja

4
134,7 M Ft 2 567 671 Ft/m²
Eladó lakás, Budapest III. kerület


Fedezd fel a
hasonló lakásokat!Még további lakások Budapest III. kerületben 137 M Ft körüli értékben
Tovább a hirdetésekhez Frissítve: 8 napja

10
130,46 M Ft 1 762 936 Ft/m²
Eladó lakás, Budapest III. kerület
Frissítve: 8 napja

14
124,82 M Ft 1 600 205 Ft/m²
Eladó lakás, Budapest III. kerület
Frissítve: 8 napja

14
146,85 M Ft 1 932 184 Ft/m²
Eladó lakás, Budapest III. kerület

Töltsd fel hirdetésed ingyenesen!
Egyszerű