+17 fotó
Zenga
Premier
Hirdetéskód: 8828195
Referenciaszám: M319284
Feltöltve: 1 napja
Budapest IX. kerület eladó téglalakás 3 szobás: 169,9 millió Ft
169,9 millió Ft
1 788 422 Ft/m² *
* A m² árat a hirdető adta meg.
87 m²
3 szoba
2. emelet

Friss hirdetések, amiket nem találsz meg más ingatlankereső portálon.
Fedezd fel elsőként a Zenga Premier címkés eladó ingatlanokat! További részletek A Duna House, OTP Ingatlanpont, Otthon Centrum és további hálózatok új, kizárólagos hirdetéseinek nagy részét a zenga.hu és koltozzbe.hu ingatlankeresőn láthatod legelőször, és a feltöltéstől két hétig nem érhetők el más ingatlankeresőn!
Leírás
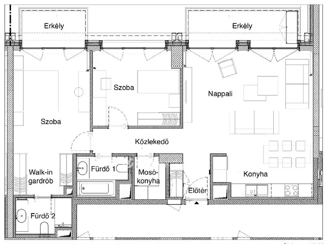
Eladásra kínálok Budapest IX. kerületének legkedveltebb részén, a Duna közelében lakóparkban egy 2025-ben átadott, nettó 88 nm2-es, prémium minőségben kialakított, új építésű lakást. Az ingatlan a 2. emeleten helyezkedik el, liftes, akadálymentes társasházban, csendes, zárt magánútra néző, északkeleti tájolással.
A lakás amerikai konyhás nappalival és két külön nyíló hálószobával rendelkezik, melyekhez két teljes értékű, WC-s fürdőszoba tartozik. A fő hálószoba saját fürdővel, walk-in gardróbbal és erkélykapcsolattal bír. A tágas nappaliból közvetlen kijárat nyílik a 8 m2-es erkélyre, a második hálószobához pedig egy 5nm- es tartozik. A két erkély ideális teret biztosít pihenéshez vagy kikapcsolódáshoz.
Az ingatlan teljesen bútorozott és gépesített, egyedi gyártású konyhabútorokkal és gardróbokkal, melyek a vételár részét képezik. A fűtés házközponti, egyedi mérőkkel, gáz nincs bekötve. A komfortérzetről kiépített, többzónás klímarendszer gondoskodik. A közös költség 35 000 Ft havonta, a rezsi fogyasztás alapján fizetendő.
A lakás különleges előnye a zárt magánút, amely nyugodt környezetet és ingyenes parkolási lehetőséget biztosít a lakók számára. Teremgarázs hely vásárolható 7,7 millió forinttól, illetve bérelhető havi 35 000 forintért.
A City Pearl Lakópark modern, rendezett környezetet kínál kiváló infrastruktúrával. A Duna-part, a Corvin Negyed, bevásárlási lehetőségek, éttermek, kávézók, edzőtermek és egyetemek mind könnyen elérhetők, ahogy a tömegközlekedés is. Az ingatlan ideális választás saját otthonnak vagy értékálló befektetésnek, azonnal költözhető, kompromisszummentes megoldást keresők számára.
Tulajdonságok
Téglalakás
Új építésű
Házközponti fűtés egyedi méréssel
2025
13 m²
Nem adta meg a hirdető
Vedd fel a kapcsolatot a hirdetővel
Záhony Endre Budapest VIII. kerület József körút 72 - OTP Ingatlanpont Iroda Az iroda összes hirdetése
+36 30 406 6
Hitelkalkulátor
Második évtől
731 172 Ft A 13. hónaptól
7,99% 8,49%
Végig fix Futamidő: 20 év Banki visszahívás
Az OTP Bank munkatársai a neked megfelelő napszakban veszik fel veled a kapcsolatot.Hitelfelvétel esetén akár egy héttel rövidebb lehet az ügyintézés.
Ez az ingatlan a nálunk meglévő adatok alapján azonnali értékbecslésre alkalmas lehet.
A becslés a hirdető által megadott adatokon alapul. A jelen tájékoztatás nem minősül ajánlattételnek és nem teljes körű, az egyes feltételek a hitelbírálat eredményétől függően változhatnak. Kérjük, a részletekről tájékozódj az OTP Bank fiókjaiban vagy az OTP Bank honlapján közzétett vonatkozó Üzletszabályzatokból és Hirdetményekből.
Vedd fel a kapcsolatot a hirdetővel
Záhony Endre Budapest VIII. kerület József körút 72 - OTP Ingatlanpont Iroda Az iroda összes hirdetése
+36 30 406 6
Vedd fel a kapcsolatot a hirdetővel
Záhony Endre Budapest VIII. kerület József körút 72 - OTP Ingatlanpont Iroda Az iroda összes hirdetése
+36 30 406 6
UI_KIT.CHARACTER_COUNTER__COMPONENT.REMAINING_SPACE__SR_ONLYUI_KIT.CHARACTER_COUNTER__COMPONENT.MAXIMUM_CHARACTER__SR_ONLY
Hasonló eladó ingatlanok Budapest IX. kerületben
Frissítve: 7 napja
20
155 M Ft 1 291 667 Ft/m²
Eladó lakás, Budapest IX. kerület

Frissítve: 3 hónapja
14
CITY PEARL
157,39 M Ft 1 809 100 Ft/m²
Eladó lakás, Budapest IX. kerület, Soroksári út 58
Feltöltve: 26 napja
1
CITY PEARL
164,14 M Ft 2 159 719 Ft/m²
Eladó lakás, Budapest IX. kerület, Soroksári út 58

Fedezd fel a
hasonló lakásokat!Még további lakások Budapest IX. kerületben 169,9 M Ft körüli értékben
Tovább a hirdetésekhez Frissítve: 3 hónapja
14
CITY PEARL
172,78 M Ft 1 892 001 Ft/m²
Eladó lakás, Budapest IX. kerület, Soroksári út 58
Feltöltve: 26 napja
1
CITY PEARL
167,02 M Ft 1 919 751 Ft/m²
Eladó lakás, Budapest IX. kerület, Soroksári út 58
Frissítve: 30 napja
20
165 M Ft 2 291 666 Ft/m²
Eladó lakás, Budapest IX. kerület, Lechner Ödön fasor

Töltsd fel hirdetésed ingyenesen!
Egyszerű
