+17 fotó
Hirdetéskód: 8815717
Referenciaszám: 390404
Frissítve: 17 napja
Budapest V. kerület eladó téglalakás 3 szobás: 190 millió Ft
190 millió Ft
1,88 millió Ft/m²
101 m²
3 szoba
5. emelet
Eladó téglalakás Budapest, V. kerület, 101nm, 190.000.000Ft - Honvéd utca
Eladó felújított, tágas, 3 szobás lakás Budapest szívében
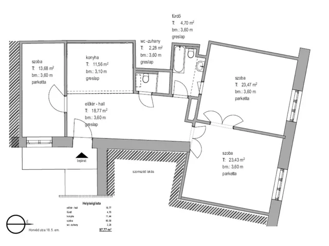
Ritka lehetőség a belváros egyik legkedveltebb részén! A Honvéd utcában kínálunk megvételre egy összesen 101 m²-es, teljeskörűen felújított, nagy terekkel rendelkező, 3 szobás, 2 fürdőszobás gyönyörű otthont.
A lakás 2025-ben átfogó felújításon esett át, melynek során új műanyag, redőnyös kültéri nyílászárókat, modern burkolatokat és minőségi szanitereket kapott. Az ingatlan elosztása rendkívül praktikus: különnyíló szobák, egy kádas és egy zuhanyzós fürdőszoba is szolgálja a kényelmet – így családoknak, pároknak és akár kiadásra is ideális választás.
Az 5. emeleti elhelyezkedésnek köszönhetően a lakás világos, csendes, a jó állapotú, karbantartott társasház pedig lifttel rendelkezik, ami még kényelmesebbé teszi a mindennapokat. A közös költség tartalmazza a víz és fűtés díját.
Főbb jellemzők:
• Alapterület: 101 m²
• Elosztás: 3 szoba
• 2 fürdőszoba (kád + zuhany)
• 2025-ben teljeskörű felújítás
• Új műanyag nyílászárók, redőnyök
• 5. emelet, liftes ház
• Csendes, tágas, azonnal költözhető
Irányár: 190.000.000 Ft
Ha szeretnél egy frissen felújított, elegáns és kiváló lokációjú lakást Budapest belvárosában, ne hagyd ki ezt a lehetőséget! Kiváló befektetés és kényelmes otthon egyben. ...TOVÁBBI, TÖBBEZRES INGATLAN KÍNÁLAT: www.gdn-ingatlan.hu - GDN azonosító: 390404
Tulajdonságok
Téglalakás
Felújított
Házközponti
1905
Nem adta meg a hirdető
Vedd fel a kapcsolatot a hirdetővel
+36 70 376 2
Hitelkalkulátor
Második évtől
817 673 Ft A 13. hónaptól
7,99%
Végig fix Futamidő: 20 év Banki visszahívás
Az OTP Bank munkatársai a neked megfelelő napszakban veszik fel veled a kapcsolatot.Hitelfelvétel esetén akár egy héttel rövidebb lehet az ügyintézés.
Ez az ingatlan a nálunk meglévő adatok alapján azonnali értékbecslésre alkalmas lehet.
A becslés a hirdető által megadott adatokon alapul. A jelen tájékoztatás nem minősül ajánlattételnek és nem teljes körű, az egyes feltételek a hitelbírálat eredményétől függően változhatnak. Kérjük, a részletekről tájékozódj az OTP Bank fiókjaiban vagy az OTP Bank honlapján közzétett vonatkozó Üzletszabályzatokból és Hirdetményekből.
Vedd fel a kapcsolatot a hirdetővel
+36 70 376 2
Vedd fel a kapcsolatot a hirdetővel
+36 70 376 2
UI_KIT.CHARACTER_COUNTER__COMPONENT.ACTUAL_CHARACTER__SR_ONLY UI_KIT.CHARACTER_COUNTER__COMPONENT.MAXIMUM_CHARACTER__SR_ONLY
Hasonló eladó ingatlanok Belváros városrészben
Frissítve: 17 napja
6
174 millió Ft 2,56 millió Ft/m²
Eladó lakás, Budapest V. kerület, Belváros

Frissítve: 17 napja
7
186 millió Ft 2 millió Ft/m²
Eladó lakás, Budapest V. kerület, Belváros

Frissítve: 1 éve
9
185 millió Ft 2,01 millió Ft/m²
Eladó lakás, Budapest V. kerület, Belváros, Haris köz

Fedezd fel a
hasonló lakásokat!Még további lakások Budapest V. kerület, Belváros városrészben 190 M Ft körüli értékben
Tovább a hirdetésekhez Frissítve: 17 napja
9
200 millió Ft 2,53 millió Ft/m²
Eladó lakás, Budapest V. kerület, Belváros

Frissítve: 17 napja
18
179 millió Ft 1,79 millió Ft/m²
Eladó lakás, Budapest V. kerület, Belváros
Frissítve: 17 napja
13
188 millió Ft 2 millió Ft/m²
Eladó lakás, Budapest V. kerület, Belváros

