

+2 fotó
Hirdetéskód: 8753831
Referenciaszám: LK067591-5064297
Frissítve: ma
Budapest V. kerület eladó téglalakás 3 szobás: 286 millió Ft
286 millió Ft
1 894 040 Ft/m²
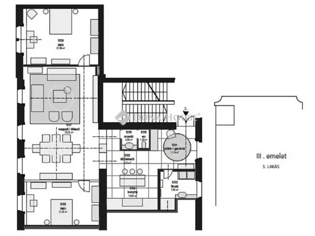
151 m²
3 szoba
3. emelet
Eladó lakás, Budapest 5. ker.
Ritka befektetési lehetőség a Belváros szívében!
Eladó a Hold utcában, a Batthyány-örökmécses közelében egy 151 nm-es, felújítandó nagypolgári lakás, egy liftes, 3 emeletes ház legfelső szintjén.
A lakás két helyrajzi számon szerepel, így akár két különálló lakás is kialakítható ideális rövid vagy hosszú távú kiadásra, prémium bérlői környezetben.
Igény esetén a közvetlenül mellette lévő, 169 nm-es lakás is megvásárolható, így több mint 320 nm-es ingatlanportfólió hozható létre egyedülálló lokációban.
Miért befektetés?
Ritkaságnak számít ekkora alapterület a belváros patinás részén
Két külön lakás kialakítható, magas hozamlehetőséggel
Kiemelten keresett lokáció: Parlament, Szabadság tér, üzleti negyed pár perc sétára
Jelentős értéknövekedési potenciál felújítást követően
Ez az ingatlan azoknak szól, akik biztos, prémium lokációban keresnek értéknövelő befektetést.
A Duna House teljes kínálatával kapcsolatban forduljanak hozzám bizalommal!
Bankfüggetlen pénzügyi szakembereink tanácsadással, ügyintézéssel tudják segíteni Önöket álmaik, céljaik megvalósításában!
Vegye igénybe díjmentes konzultációinkat!
https://www.facebook.com/otthonkonnyeden
Referencia szám: LK067591
Tulajdonságok
Téglalakás
Felújítandó
Gázkazán
1890
Nem adta meg a hirdető
Vedd fel a kapcsolatot a hirdetővel
+36 1 690 03
Hitelkalkulátor
Második évtől
1 230 814 Ft A 13. hónaptól
7,99%
Végig fix Futamidő: 20 év Banki visszahívás
Az OTP Bank munkatársai a neked megfelelő napszakban veszik fel veled a kapcsolatot. A becslés a hirdető által megadott adatokon alapul. A jelen tájékoztatás nem minősül ajánlattételnek és nem teljes körű, az egyes feltételek a hitelbírálat eredményétől függően változhatnak. Kérjük, a részletekről tájékozódj az OTP Bank fiókjaiban vagy az OTP Bank honlapján közzétett vonatkozó Üzletszabályzatokból és Hirdetményekből.
Vedd fel a kapcsolatot a hirdetővel
+36 1 690 03
Vedd fel a kapcsolatot a hirdetővel
+36 1 690 03
UI_KIT.CHARACTER_COUNTER__COMPONENT.REMAINING_SPACE__SR_ONLYUI_KIT.CHARACTER_COUNTER__COMPONENT.MAXIMUM_CHARACTER__SR_ONLY
Hasonló eladó ingatlanok Budapest V. kerületben
Frissítve: 12 napja

20
283 M Ft
Eladó lakás, Budapest V. kerület, Széchenyi utca
Frissítve: 15 napja

8
800 000 Euro
312,8 M Ft 3 861 728 Ft/m²
Eladó lakás, Budapest V. kerület, TETŐTERASZOS, PANORÁMÁS LAKÁS
Frissítve: 9 napja

17
270 M Ft 500 000 Ft/m²
Eladó lakás, Budapest V. kerület, Királyi Pál utca


Fedezd fel a
hasonló lakásokat!Még további lakások Budapest V. kerületben 286 M Ft körüli értékben
Tovább a hirdetésekhez Frissítve: 11 napja

20
289 M Ft 2 368 852 Ft/m²
Eladó lakás, Budapest V. kerület
Frissítve: 11 napja

20
279 M Ft 2 325 000 Ft/m²
Eladó lakás, Budapest V. kerület
Frissítve: 28 napja

20
270,09 M Ft 2 547 996 Ft/m²
Eladó lakás, Budapest V. kerület, Párizsi utca


Töltsd fel hirdetésed ingyenesen!
Egyszerű