+17 fotó
Hirdetéskód: 8812325
Referenciaszám: 390240
Feltöltve: 1 napja
Budapest VII. kerület eladó téglalakás 3 szobás: 99,9 millió Ft
99,9 millió Ft
1 637 705 Ft/m²
61 m²
3 szoba
2. emelet
Eladó téglalakás Budapest, VII. kerület, 61nm, 99.900.000Ft - Ligetváros
Modern igényesen felújított lakás eladó!
Két lakássá alakított ingatlan " A" jelű lakását kínáljuk megvételre a Damjanich utca kedvelt részén, liftes ház 2. emeletén.
Az ingatlan teljeskörűen felújított, minőségi bútorokkal és gépekkel berendezett, minden részletét gondosan megtervezték.
A lakás világos, tágas érzetet nyújt, minden helyiségén ablak van.
Használati megosztással kerül értékesítésre.
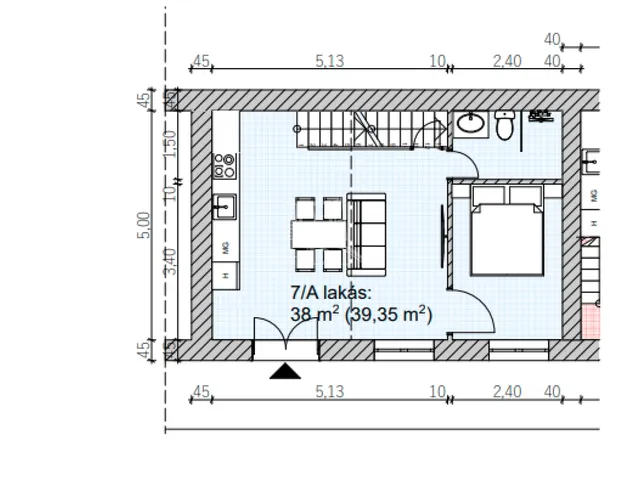
" A"- lakás rendkívül jó beosztású, hasznos alapterülete 61 nm.
- alapterület 38 nm.
- beosztása:
- előtér,
- konyha + étkező + nappali,
- hálószoba,
- fürdőszoba +WC,
- teljesértékű galéria 23 nm.
- beosztása:
- hálószoba,
- gardrób szoba,
Ebben a lakásban a fűtés gáz Mika kazánnal történik +1 db hűtő-fűtő klíma van.
A fűtés, villanybojler, redőnyök, lámpák, mosógép távolról vezérelhető.
A konyhák gépesítettek.
A lakás külön mérőórákkal rendelkezik.
Az ingatlan befektetésnek is kíváló, könnyen kiadható az Állatorvosi Egyetem és a turisztikai látványosságok közelsége miatt.
A környék rendkívül kedvelt, a Városliget, a Hősök tere és az Andrássy út néhány perc sétával elérhető.
Amivel segítjük az Ön ingatlanvásárlását:
- ingyenes hitelügyintézés,
- jogi háttér,
- földhivatali ügyintézés,
- energetikai tanúsítvány,
- a vevő számára az ingatlanközvetítés ingyenes.
Irodánk 30 éves szakmai tapasztalattal áll ügyfelei rendelkezésére!
Várom szíves megkeresését! ...TOVÁBBI, TÖBBEZRES INGATLAN KÍNÁLAT: www.gdn-ingatlan.hu - GDN azonosító: 390240
Tulajdonságok
Téglalakás
Felújított
Gáz (héra)
1950
Nem adta meg a hirdető
Vedd fel a kapcsolatot a hirdetővel
+36 70 269 5
Hitelkalkulátor
Második évtől
429 924 Ft A 13. hónaptól
7,99%
Végig fix Futamidő: 20 év Banki visszahívás
Az OTP Bank munkatársai a neked megfelelő napszakban veszik fel veled a kapcsolatot.Hitelfelvétel esetén akár egy héttel rövidebb lehet az ügyintézés.
Ez az ingatlan a nálunk meglévő adatok alapján azonnali értékbecslésre alkalmas lehet.
A becslés a hirdető által megadott adatokon alapul. A jelen tájékoztatás nem minősül ajánlattételnek és nem teljes körű, az egyes feltételek a hitelbírálat eredményétől függően változhatnak. Kérjük, a részletekről tájékozódj az OTP Bank fiókjaiban vagy az OTP Bank honlapján közzétett vonatkozó Üzletszabályzatokból és Hirdetményekből.
Vedd fel a kapcsolatot a hirdetővel
+36 70 269 5
Vedd fel a kapcsolatot a hirdetővel
+36 70 269 5
UI_KIT.CHARACTER_COUNTER__COMPONENT.REMAINING_SPACE__SR_ONLYUI_KIT.CHARACTER_COUNTER__COMPONENT.MAXIMUM_CHARACTER__SR_ONLY
Hasonló eladó ingatlanok Ligetváros városrészben
Frissítve: 8 napja
15
91,5 M Ft 1 500 000 Ft/m²
Eladó lakás, Budapest VII. kerület, Ligetváros

Frissítve: 8 napja
20
109 M Ft 1 453 333 Ft/m²
Eladó lakás, Budapest VII. kerület, Ligetváros, Murányi utca

Frissítve: ma
20
99,99 M Ft 1 492 388 Ft/m²
Eladó lakás, Budapest VII. kerület, Ligetváros


Fedezd fel a
hasonló lakásokat!Még további lakások Budapest VII. kerület, Ligetváros városrészben 99,9 M Ft körüli értékben
Tovább a hirdetésekhez Frissítve: 8 napja
8
99,7 M Ft 1 120 225 Ft/m²
Eladó lakás, Budapest VII. kerület, Ligetváros, Damjanich utca

Frissítve: ma
11
94,9 M Ft 1 336 620 Ft/m²
Eladó lakás, Budapest VII. kerület, Ligetváros

Frissítve: 10 napja
20
95 M Ft 1 233 766 Ft/m²
Eladó lakás, Budapest VII. kerület, Ligetváros


Töltsd fel hirdetésed ingyenesen!
Egyszerű
