+16 fotó
Zenga
Premier
Hirdetéskód: 8898892
Referenciaszám: M323028
Feltöltve: 1 napja
Budapest VII. kerület eladó téglalakás 1 szobás: 67,9 millió Ft
67,9 millió Ft
1 543 182 Ft/m² *
* A m² árat a hirdető adta meg.
41 m²
1 szoba

Friss hirdetések, amiket nem találsz meg más ingatlankereső portálon.
Fedezd fel elsőként a Zenga Premier címkés eladó ingatlanokat! További részletek A Duna House, OTP Ingatlanpont, Otthon Centrum és további hálózatok új, kizárólagos hirdetéseinek nagy részét a zenga.hu és koltozzbe.hu ingatlankeresőn láthatod legelőször, és a feltöltéstől két hétig nem érhetők el más ingatlankeresőn!
Leírás
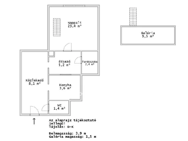
Eladó egy kiváló lakás prémium bútorokkal közel 4 méteres belmegassággal a Dohány utcában!
Ez a nagypolgári stílusban épült lakás a tulajdoni lapon 41 m2-es lakás a valóságban viszont 44 m2 alapterületű! Az ingatlanoz egy kényelmes méretű galéria is tartozik, így a hasznos élettér ennél is nagyobb. A lakás asztalos által tervezett bútorokkal berendezett, amelyek a vételár részét képezik. Egy egyszerű tisztasági festés után szinte teljesen új állapotú otthont kapunk, az ingatlan gondosan karbantartott és azonnal költözhető.
A közel 4 méteres belmagasság tágas, levegős érzetet biztosít, a galéria kiválóan használható hálórészként vagy dolgozósarokként, így a nappali teljes értékű élettér marad. A DK-i tájolásnak köszönhetően a lakás kifejezetten világos és napfényes, ami egész nap kellemes hangulatot teremt.
A bejáraton belépve egy kényelmes közlekedő fogad, ahonnan külön nyílik a konyha, a külön WC és az étkező. Az étkező tovább vezet a tágas nappaliba, amely a lakás központi tere, itt található a galériára vezető lépcső is. A fürdőszoba szintén külön helyiség, jól elkülönül a lakótértől. Az elrendezés nagy előnye, hogy a funkciók nincsenek egymásra zsúfolva, minden helyiség jól használható és természetes módon kapcsolódik a másikhoz.
A Dohány utca Budapest egyik legközpontibb része, ahol szinte minden gyalogosan elérhető. A tömegközlekedés kiváló, néhány perc sétára található az M2 metró Astoria és Blaha Lujza tér megállója, valamint számos busz és villamosjárat, így a város bármely pontja gyorsan megközelíthető. A környéken éttermek, kávézók, üzletek, egyetemek, kulturális és szórakozási lehetőségek széles választéka található.
Ha szereti a belváros pezsgését, de hazaérve egy nyugodt környezetre vágyik, akkor ez a lakás teljes mértékben megfelelő az ön igényeinek.
Ha szeretné megtekinteni a lakást keressen bizalommal!
Tulajdonságok
Téglalakás
Újszerű
Gázkazán
1890
Nem adta meg a hirdető
Vedd fel a kapcsolatot a hirdetővel
Filotás Balázs Budapest XIII. kerület Szabolcs utca 19-21 - OTP Ingatlanpont Iroda Az iroda összes hirdetése
+36 30 880 9
Hitelkalkulátor
Második évtől
292 211 Ft A 13. hónaptól
7,99%
Végig fix Futamidő: 20 év Banki visszahívás
Az OTP Bank munkatársai a neked megfelelő napszakban veszik fel veled a kapcsolatot.Hitelfelvétel esetén akár egy héttel rövidebb lehet az ügyintézés.
Ez az ingatlan a nálunk meglévő adatok alapján azonnali értékbecslésre alkalmas lehet.
A becslés a hirdető által megadott adatokon alapul. A jelen tájékoztatás nem minősül ajánlattételnek és nem teljes körű, az egyes feltételek a hitelbírálat eredményétől függően változhatnak. Kérjük, a részletekről tájékozódj az OTP Bank fiókjaiban vagy az OTP Bank honlapján közzétett vonatkozó Üzletszabályzatokból és Hirdetményekből.
Vedd fel a kapcsolatot a hirdetővel
Filotás Balázs Budapest XIII. kerület Szabolcs utca 19-21 - OTP Ingatlanpont Iroda Az iroda összes hirdetése
+36 30 880 9
Vedd fel a kapcsolatot a hirdetővel
Filotás Balázs Budapest XIII. kerület Szabolcs utca 19-21 - OTP Ingatlanpont Iroda Az iroda összes hirdetése
+36 30 880 9
UI_KIT.CHARACTER_COUNTER__COMPONENT.ACTUAL_CHARACTER__SR_ONLY UI_KIT.CHARACTER_COUNTER__COMPONENT.MAXIMUM_CHARACTER__SR_ONLY
Hasonló eladó ingatlanok Nagykörúton belüli terület városrészben
Frissítve: 3 hónapja
16
68,5 M Ft 1 802 632 Ft/m²
Eladó lakás, Budapest VII. kerület, Belső-Erzsébetváros, Rumbach Sebestyén
Feltöltve: 1 éve
1
65 M Ft 1 547 619 Ft/m²
Eladó lakás, Budapest VII. kerület, Belső-Erzsébetváros
Frissítve: 3 hónapja
7
71 M Ft 1 775 000 Ft/m²
Eladó lakás, Budapest VII. kerület, Belső-Erzsébetváros, Dob utca

Fedezd fel a
hasonló lakásokat!Még további lakások Budapest VII. kerület, Nagykörúton belüli terület városrészben 67,9 M Ft körüli értékben
Tovább a hirdetésekhez Frissítve: 3 napja
12
73 M Ft 2 281 250 Ft/m²
Eladó lakás, Budapest VII. kerület, Belső-Erzsébetváros, Király utca

Frissítve: 9 hónapja
14
61,9 M Ft 1 167 925 Ft/m²
Eladó lakás, Budapest VII. kerület, Belső-Erzsébetváros, Nefelejcs utca
Feltöltve: 8 hónapja
7
69 M Ft 1 533 333 Ft/m²
Eladó lakás, Budapest VII. kerület, Belső-Erzsébetváros


