+16 fotó
Hirdetéskód: 8961415
Feltöltve: ma
Budapest VII. kerület eladó téglalakás 4 szobás: 209 millió Ft
209 millió Ft
1 953 271 Ft/m²
107 m²
4 szoba
4. emelet
Prémium nagypolgári lakás a fiatalos, nyüzsgő, VII. Wesselényi utcában, a Zsinagóga vonzásában!
VII. Wesselényi utcában Egy igazán tágas, nagypolgári hangulatú, mégis modern és jól hasznosítható ingatlant keres Budapest belvárosában, ez a lakás kivételes lehetőség.
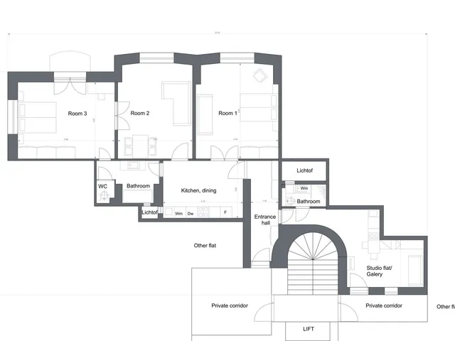
A VII. kerület kedvelt részén, a Wesselényi utcában kínálunk megvételre egy 107 m²-es, 4. emeleti, teljes körűen és prémium minőségben felújított lakást egy rendezett, zárt körfolyosós, 6 szintes társasházban. A 3,2 méteres belmagasság és a nagyvonalú terek igazi polgári eleganciát biztosítanak, miközben a felújításnak köszönhetően az ingatlan minden szempontból megfelel a mai igényeknek.
A lakás jelenlegi kialakítása 4 szobás, amelyből három nagy, világos szoba utcai nézetű, míg a negyedik helyiség csendes, udvari fekvésű, így akár különálló stúdióként is ideálisan funkcionálhat. Külön előnye, hogy az ingatlan két bejárattal rendelkezik, ami tovább növeli a benne rejlő lehetőségeket.
Az egyik legnagyobb értéke, hogy a lakás kettéosztásának lehetősége már előre kiépítésre került, így a megosztás rendkívül egyszerűen, gyakorlatilag egy ajtó lezárásával véglegesíthető. Ennek köszönhetően könnyedén kialakítható egy tágas, 3 szobás, utcai lakás, valamint egy külön bejáratú, udvari stúdiólakás, ami ideális befektetési lehetőséget jelent rövid vagy hosszú távú kiadásra, de akár többgenerációs együttélésre is tökéletes választás.
Az ingatlan teljes körű, prémium minőségű felújításon esett át, így az új tulajdonos azonnal birtokba veheti, további ráfordítás nélkül. A környék infrastruktúrája kiváló, minden fontos szolgáltatás, valamint a tömegközlekedési lehetőségek néhány perc sétával elérhetők.
Tulajdonságok
Téglalakás
6
Felújított
Gázkazán
2 m²
Nem adta meg a hirdető
Vedd fel a kapcsolatot a hirdetővel
+36 70 886 4
Hitelkalkulátor
Második évtől
899 441 Ft A 13. hónaptól
7,99%
Végig fix Futamidő: 20 év Banki visszahívás
Az OTP Bank munkatársai a neked megfelelő napszakban veszik fel veled a kapcsolatot.Hitelfelvétel esetén akár egy héttel rövidebb lehet az ügyintézés.
Ez az ingatlan a nálunk meglévő adatok alapján azonnali értékbecslésre alkalmas lehet.
A becslés a hirdető által megadott adatokon alapul. A jelen tájékoztatás nem minősül ajánlattételnek és nem teljes körű, az egyes feltételek a hitelbírálat eredményétől függően változhatnak. Kérjük, a részletekről tájékozódj az OTP Bank fiókjaiban vagy az OTP Bank honlapján közzétett vonatkozó Üzletszabályzatokból és Hirdetményekből.
Vedd fel a kapcsolatot a hirdetővel
+36 70 886 4
Vedd fel a kapcsolatot a hirdetővel
+36 70 886 4
UI_KIT.CHARACTER_COUNTER__COMPONENT.ACTUAL_CHARACTER__SR_ONLY UI_KIT.CHARACTER_COUNTER__COMPONENT.MAXIMUM_CHARACTER__SR_ONLY
Hasonló eladó ingatlanok Nagykörúton belüli terület városrészben
Frissítve: 1 napja
20
215 M Ft 1 310 976 Ft/m²
Eladó lakás, Budapest VII. kerület, Belső-Erzsébetváros, Kertész utca

Feltöltve: 22 napja
17
190 M Ft 2 043 011 Ft/m²
Eladó lakás, Budapest VII. kerület, Belső-Erzsébetváros, Erzsébet körút

Feltöltve: 2 hónapja
13
189,9 M Ft 2 041 935 Ft/m²
Eladó lakás, Budapest VII. kerület, Belső-Erzsébetváros, Erzsébet körút


Fedezd fel a
hasonló lakásokat!Még további lakások Budapest VII. kerületben 209 M Ft körüli értékben
Tovább a hirdetésekhez Feltöltve: 9 hónapja
9
189,9 M Ft 1 356 429 Ft/m²
Eladó lakás, Budapest VII. kerület, Belső-Erzsébetváros

Feltöltve: 2 hónapja
18
560 000 Euro
215,6 M Ft 1 390 967 Ft/m²
Eladó lakás, Budapest VII. kerület, Belső-Erzsébetváros
Frissítve: 1 napja
19
199,99 M Ft 1 754 298 Ft/m²
Eladó lakás, Budapest VII. kerület, Belső-Erzsébetváros

