

+16 fotó
Hirdetéskód: 8741779
Referenciaszám: M296568-5058819
Feltöltve: 3 napja
Budapest VII. kerület eladó téglalakás 2 szobás: 68,5 millió Ft
68,5 millió Ft
1 670 732 Ft/m²
41 m²
2 szoba
1. emelet
Eladó Lakás, Budapest 7. ker.
Felújított, galériás belvárosi lakás eladó a New York Kávéház szomszédságában!
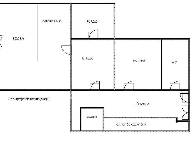
Budapest VII. kerületének szívében, Erzsébetváros egyik legkedveltebb részén, a belváros pezsgésének közepén kínálok eladásra egy 41 négyzetméteres, teljeskörűen felújított, I. emeleti lakást, amelyet további 9 négyzetméteres galéria tesz még tágasabbá és otthonosabbá.
A lakás néhány éve teljes műszaki és esztétikai felújításon esett át: minden vezeték újra lett cserélve, a fűtésről és a melegvízről korszerű gáz kombi kazán gondoskodik, a hűtés-fűtés egyaránt modern klímaberendezéssel megoldott. A belső tér kialakítása rendkívül praktikus, minden centiméterét egyedileg tervezett és gyártott bútorokkal használták ki. A galéria intimitást és kényelmet biztosít, így a lakás tökéletes egyedülállóknak vagy fiatal pároknak, akik szeretik a modern, városi életstílust.
Az ablakból páratlan kilátás nyílik a világhírű New York Kávéházra – ez az a pont, ahol a város történelme és modern ritmusa találkozik. A közlekedés kiváló, a környéken minden elérhető néhány perc sétával: üzletek, kávézók, éttermek és a legfontosabb tömegközlekedési csomópontok. Az Önkormányzat épülete mindössze 100 méterre található.
A lakás különlegessége az előszobában elhelyezett infraszauna, amely igény esetén megvásárolható, így a városi élet rohanása után akár otthonában is feltöltődhet.
Az ingatlan jelenlegi irányára 63.500.000 Ft február 13-ig, ezt követően 5 millió forintos áremelés várható.
Ne halogassa a döntést — ez a lakás nemcsak egy otthon, hanem egy különleges lehetőség a belváros szívében! Amennyiben felkeltette érdeklődését, kérem, hívjon bizalommal!
Az ingatlan megvásárlásához kedvező finanszírozási lehetőség is elérhető, amelyhez szakértő pénzügyi segítséget biztosítunk az OTP Ingatlanpont teljes körű ügyintézésével.
Referenciaszám: M296568
Tulajdonságok
Téglalakás
Jó állapotú
Gázkazán
1910
Nem adta meg a hirdető
Vedd fel a kapcsolatot a hirdetővel
Bödör Dóra OTPip - Budapest IX. kerület Üllői út 21 - OTP Ingatlanpont Iroda Az iroda összes hirdetése
+36 30 357 0
Hitelkalkulátor
Második évtől
294 793 Ft A 13. hónaptól
7,99%
Végig fix Futamidő: 20 év Banki visszahívás
Az OTP Bank munkatársai a neked megfelelő napszakban veszik fel veled a kapcsolatot.Hitelfelvétel esetén akár egy héttel rövidebb lehet az ügyintézés.
Ez az ingatlan a nálunk meglévő adatok alapján azonnali értékbecslésre alkalmas lehet.
A becslés a hirdető által megadott adatokon alapul. A jelen tájékoztatás nem minősül ajánlattételnek és nem teljes körű, az egyes feltételek a hitelbírálat eredményétől függően változhatnak. Kérjük, a részletekről tájékozódj az OTP Bank fiókjaiban vagy az OTP Bank honlapján közzétett vonatkozó Üzletszabályzatokból és Hirdetményekből.
Vedd fel a kapcsolatot a hirdetővel
Bödör Dóra OTPip - Budapest IX. kerület Üllői út 21 - OTP Ingatlanpont Iroda Az iroda összes hirdetése
+36 30 357 0
Vedd fel a kapcsolatot a hirdetővel
Bödör Dóra OTPip - Budapest IX. kerület Üllői út 21 - OTP Ingatlanpont Iroda Az iroda összes hirdetése
+36 30 357 0
UI_KIT.CHARACTER_COUNTER__COMPONENT.REMAINING_SPACE__SR_ONLYUI_KIT.CHARACTER_COUNTER__COMPONENT.MAXIMUM_CHARACTER__SR_ONLY
Hasonló eladó ingatlanok Budapest VII. kerületben
Frissítve: 20 napja

17
69,9 M Ft 3 883 333 Ft/m²
Eladó lakás, Budapest VII. kerület, Károly körút

Frissítve: ma

20
75 M Ft
Eladó lakás, Budapest VII. kerület, Hernád utca

Frissítve: 14 napja

10
65 M Ft 1 300 000 Ft/m²
Eladó lakás, Budapest VII. kerület, Lövölde tér


Fedezd fel a
hasonló lakásokat!Még további lakások Budapest VII. kerületben 68,5 M Ft körüli értékben
Tovább a hirdetésekhez Frissítve: 3 napja

16
65 M Ft 1 181 818 Ft/m²
Eladó lakás, Budapest VII. kerület

Frissítve: 19 napja

14
65 M Ft 1 181 818 Ft/m²
Eladó lakás, Budapest VII. kerület

Frissítve: 1 napja

16
65 M Ft 1 181 818 Ft/m²
Eladó lakás, Budapest VII. kerület


Töltsd fel hirdetésed ingyenesen!
Egyszerű