+4 fotó
Hirdetéskód: 8916112
Referenciaszám: LK063168-5164634
Feltöltve: ma
Budapest VII. kerület eladó téglalakás 1 szobás: 45,9 millió Ft
45,9 millió Ft
2 550 000 Ft/m²
18 m²
1 szoba
2. emelet
Eladó lakás, Budapest 7. ker.
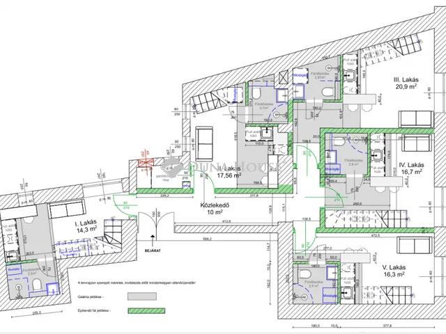
Fedezze fel Budapest szívében ezt az egyedi lehetőséget, közvetlenül a Dohány utcai zsinagóga mellett, közel a Deák Ferenc tér pezsgő csomópontjától és az ikonikus Budapest Eye óriáskeréktől! Designlakás a belváros legjobb részén átadás: 2026 február. Most készült el ez a 18 nm alapterületű + 7 nm-es (170 cm belmagasságú) galériás, utcai nézetű, világos mini designlakás, amely tökéletes választás azoknak, akik értik a belvárosi lokáció valódi értékét.A lakásban teljes körű műszaki felújítás megtörtént. Az esztétikai megjelenését is a mai elvárásoknak, modern stílusúra alakították, burkolatokkal, színvilággal egyaránt. Praktikus , jó hely és tér kihasználású beépített bútorok vannak beszerelve.Új hő és hangszigetelt külső-belső nyílászárók, teljes elektromos hálózat, víz, csatorna, új válaszfalak és galéria került kialakításra. Az ár részét képezik még: a konyhabútor, illetve alap elektronikai háztartási berendezés, kerámia főzőlap.Fűtése/hűtése: inverteres hűtő-fűtő klíma + extra törölközőszárító a fürdőszobában. Alacsony fenntartási költség jellemzi! Miért különleges?Verhetetlen elhelyezkedés turisztikai és kulturális központ, kiváló befektetési potenciál. Szépen karbantartott társasház 2. emeletén. Prémium minőségű, teljes körű műszaki és esztétikai felújítás1 év kivitelezői garancia. Ügyvédileg ellenjegyzett használati megosztás. Önálló mérőórák. Pótfedezettel hitelezhető Az Otthon Start (3%-os hitel) program feltételeinek nem felel meg ugyanakkor lokációja és kialakítása miatt kiemelkedő befektetési lehetőség .A hirdetésben szereplő képek látványtervek, de ennek megfelelően készültek el a lakásrészek. Az ingatlan jelenleg még fejlesztés, befejezés alatt áll, de már bejárható, így elsőként biztosíthatja helyét ebben a kivételes belvárosi projektben.Ha egy kompakt, értékálló, prémium kivitelezésű lakást keres Budapest egyik legfrekventáltabb pontján, ezt érdemes megnéznie!
Megbízhatóan, gyorsan és az Ön érdekeit szem előtt tartva dolgozom, a teljes értékesítési folyamat során.
Referencia szám: LK063168
Tulajdonságok
Téglalakás
Felújított
Elektromos
1960
Nem adta meg a hirdető
Vedd fel a kapcsolatot a hirdetővel
+36 1 690 12
Hitelkalkulátor
Második évtől
197 533 Ft A 13. hónaptól
7,99%
Végig fix Futamidő: 20 év Banki visszahívás
Az OTP Bank munkatársai a neked megfelelő napszakban veszik fel veled a kapcsolatot.Hitelfelvétel esetén akár egy héttel rövidebb lehet az ügyintézés.
Ez az ingatlan a nálunk meglévő adatok alapján azonnali értékbecslésre alkalmas lehet.
A becslés a hirdető által megadott adatokon alapul. A jelen tájékoztatás nem minősül ajánlattételnek és nem teljes körű, az egyes feltételek a hitelbírálat eredményétől függően változhatnak. Kérjük, a részletekről tájékozódj az OTP Bank fiókjaiban vagy az OTP Bank honlapján közzétett vonatkozó Üzletszabályzatokból és Hirdetményekből.
Vedd fel a kapcsolatot a hirdetővel
+36 1 690 12
Vedd fel a kapcsolatot a hirdetővel
+36 1 690 12
UI_KIT.CHARACTER_COUNTER__COMPONENT.ACTUAL_CHARACTER__SR_ONLY UI_KIT.CHARACTER_COUNTER__COMPONENT.MAXIMUM_CHARACTER__SR_ONLY
Hasonló eladó ingatlanok Budapest VII. kerületben
Frissítve: 15 napja
16
46,9 M Ft 1 512 903 Ft/m²
Eladó lakás, Budapest VII. kerület

Frissítve: 15 napja
9
49,9 M Ft 1 217 073 Ft/m²
Eladó lakás, Budapest VII. kerület
Frissítve: ma
20
43,9 M Ft 1 371 875 Ft/m²
Eladó lakás, Budapest VII. kerület


Fedezd fel a
hasonló lakásokat!Még további lakások Budapest VII. kerületben 45,9 M Ft körüli értékben
Tovább a hirdetésekhez Feltöltve: 5 napja
12
49,9 M Ft 1 609 677 Ft/m²
Eladó lakás, Budapest VII. kerület, Rottenbiller utca
Frissítve: 15 napja
20
49,9 M Ft 2 772 222 Ft/m²
Eladó lakás, Budapest VII. kerület

Frissítve: 9 napja
20
49,9 M Ft 2 772 222 Ft/m²
Eladó lakás, Budapest VII. kerület

