+16 fotó
Zenga
Premier
Hirdetéskód: 8855481
Referenciaszám: M320130
Feltöltve: ma
Budapest VIII. kerület eladó téglalakás 1 szobás: 42,6 millió Ft
42,6 millió Ft
1 331 250 Ft/m² *
* A m² árat a hirdető adta meg.
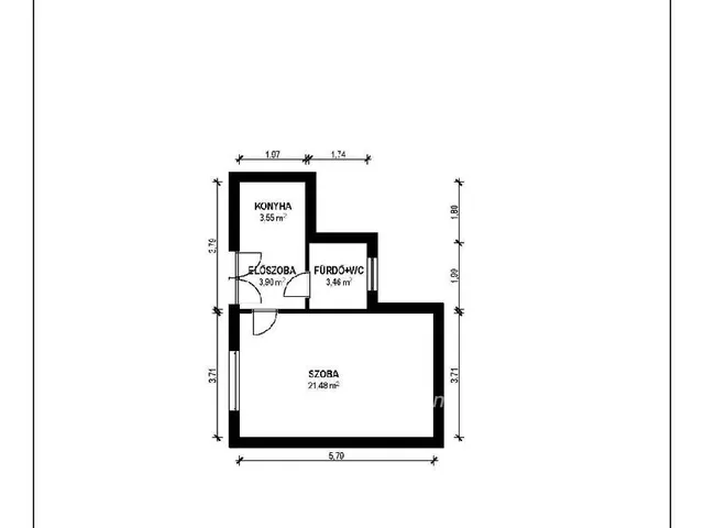
32 m²
1 szoba
2. emelet

Friss hirdetések, amiket nem találsz meg más ingatlankereső portálon.
Fedezd fel elsőként a Zenga Premier címkés eladó ingatlanokat! További részletek A Duna House, OTP Ingatlanpont, Otthon Centrum és további hálózatok új, kizárólagos hirdetéseinek nagy részét a zenga.hu és koltozzbe.hu ingatlankeresőn láthatod legelőször, és a feltöltéstől két hétig nem érhetők el más ingatlankeresőn!
Leírás
***ÉRTÉKÁLLÓ BEFEKTETÉS***
Budapest VIII. kerületének folyamatosan megújuló részén, a II. János Pál pápa tér közvetlen közelében kínálok megvételre egy 32 nm-es garzonlakást egy rendezett, négyemeletes társasház második szintjén.
A lakás bejárata a körfolyosóról nyílik, a szoba ablakai csendes belső udvarra néznek, így a városi elhelyezkedés ellenére nyugodt életteret biztosít. Az ingatlan felújítandó állapotú, ami kiváló lehetőséget ad arra, hogy az új tulajdonos saját ízlése szerint alakítsa ki otthonát vagy befektetését. Praktikus elosztásának köszönhetően a jelenlegi egy szobás lakásban akár külön hálófülke is kialakítható a konyhából.
Ideális választás első lakást keresőknek, egyetemistáknak, fiatal pároknak, de tökéletes lehet irodának vagy kiadásra is. A környék fejlődése és keresettsége miatt az ingatlan stabil, hosszú távon is jól hasznosítható befektetés.
Minden, ami a mindennapokhoz szükséges, sétatávolságra elérhető. Park, játszótér, futópálya, kutyafuttató, orvosi rendelők, gyógyszertár, posta, piac, kormányablak, LIDL, benzinkút, mozi mind néhány percen belül.
A közlekedés kiváló, éjjel és nappal egyaránt könnyen elérhető a város bármely pontja. 99 és 217E busz, 23, 24, 28, 37 és 62 villamos, valamint az M2, M4 metró és a 4-6 villamos gyors kapcsolatot biztosít.
Az OTP Ingatlanpont teljes körű ügyintézéssel támogatja Önt az ingatlanvásárlás minden lépésében - Otthon Start Hitelprogram, kedvezményes hitelek, CSOK+, falusi CSOK, lakástakarék, megbízható ügyvédi háttér.
A felújításban is szívesen segítek! Több éve együtt dolgozom megbízható szakemberekkel, akik minden munkálatot precízen elvégeznek, a kisebb javításoktól a teljes átalakításig.
Várom megtisztelő hívását - akár hétvégén is!
Tulajdonságok
Téglalakás
Felújítandó
Nincs fűtés
1950
Nem adta meg a hirdető
Vedd fel a kapcsolatot a hirdetővel
Sasaran-Kereki Katalin Budapest VIII. kerület József körút 72 - OTP Ingatlanpont Iroda Az iroda összes hirdetése
+36 30 353 3
Hitelkalkulátor
Második évtől
183 331 Ft A 13. hónaptól
7,99%
Végig fix Futamidő: 20 év Banki visszahívás
Az OTP Bank munkatársai a neked megfelelő napszakban veszik fel veled a kapcsolatot.Hitelfelvétel esetén akár egy héttel rövidebb lehet az ügyintézés.
Ez az ingatlan a nálunk meglévő adatok alapján azonnali értékbecslésre alkalmas lehet.
A becslés a hirdető által megadott adatokon alapul. A jelen tájékoztatás nem minősül ajánlattételnek és nem teljes körű, az egyes feltételek a hitelbírálat eredményétől függően változhatnak. Kérjük, a részletekről tájékozódj az OTP Bank fiókjaiban vagy az OTP Bank honlapján közzétett vonatkozó Üzletszabályzatokból és Hirdetményekből.
Vedd fel a kapcsolatot a hirdetővel
Sasaran-Kereki Katalin Budapest VIII. kerület József körút 72 - OTP Ingatlanpont Iroda Az iroda összes hirdetése
+36 30 353 3
Vedd fel a kapcsolatot a hirdetővel
Sasaran-Kereki Katalin Budapest VIII. kerület József körút 72 - OTP Ingatlanpont Iroda Az iroda összes hirdetése
+36 30 353 3
UI_KIT.CHARACTER_COUNTER__COMPONENT.REMAINING_SPACE__SR_ONLYUI_KIT.CHARACTER_COUNTER__COMPONENT.MAXIMUM_CHARACTER__SR_ONLY
Hasonló eladó ingatlanok Csarnoknegyed városrészben
Frissítve: 14 napja
11
39,8 M Ft 947 619 Ft/m²
Eladó lakás, Budapest VIII. kerület, Corvin negyed
Frissítve: 3 éve
17
45 M Ft 762 712 Ft/m²
Eladó lakás, Budapest VIII. kerület, Orczynegyed

Frissítve: 18 napja
12
38,9 M Ft 1 496 153 Ft/m²
Eladó lakás, Budapest VIII. kerület, Népszínház utca

Fedezd fel a
hasonló lakásokat!Még további lakások Budapest VIII. kerületben 42,6 M Ft körüli értékben
Tovább a hirdetésekhez Feltöltve: 10 hónapja
1
41 M Ft 630 769 Ft/m²
Eladó lakás, Budapest VIII. kerület
Feltöltve: 10 hónapja
1
41 M Ft 1 171 429 Ft/m²
Eladó lakás, Budapest VIII. kerület, Corvin negyed
Frissítve: 4 hónapja
1
44,9 M Ft 1 213 514 Ft/m²
Eladó lakás, Budapest VIII. kerület, Palotanegyed

