

+16 fotó
Hirdetéskód: 8741315
Feltöltve: 2 napja
Budapest VIII. kerület eladó téglalakás 2+1 fél szobás: 50 millió Ft
50 millió Ft
1 111 111 Ft/m²
45 m²
2+1 fél szoba
földszint
Leírás
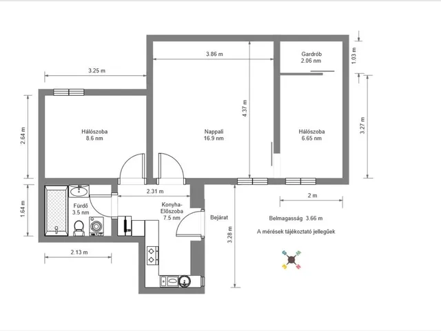
VIII. kerületben, a Teleki László téren, jó állapotban lévő, századfordulós társasházban eladó egy 45 m²-es, nappali + 2 különnyíló hálószobás lakás. Az ingatlan belső udvarra néz, így csendes, nyugodt környezetet biztosít, miközben közvetlenül a piac és a kiváló közlekedési lehetőségek szomszédságában található.
A lakás praktikus elosztású: a 16,9 m²-es nappali tágas, mellette két külön nyíló hálószoba található, amely akár párok, akár kisebb család számára ideális megoldást jelent. A konyha ablakos, a fürdőszoba kádas kialakítású, mosógépnek is van hely. A belmagasság 3,66 m, így galéria kialakítása is lehetséges. A lakásban gázkonvektoros fűtés működik.
Az ingatlan műszakilag rendben van: a víz- és elektromos hálózat megfelelő állapotú. Az ablakok régiek, de jól zárnak. A lakás jelenlegi állapotában is lakható, de igény esetén kisebb esztétikai frissítést, korszerűsítést is igényelhet.
A rezsi kedvező: közös költség 15.170 Ft/hó, a gáz téli hónapokban 15–20.000 Ft között alakul, a víz és villany fogyasztás alapján fizetendő. Az összes havi rezsi nem haladja meg a 40–50.000 Ft-ot.
A lokáció kiváló: a kapun kilépve szemben található a Teleki téri piac és egy Lidl, a közelben villamosmegállók, ahonnan a Blaha Lujza tér, a 4-6-os villamosok és az M2, M3 metróvonalak is percek alatt elérhetők.
Az ingatlan ideális választás befektetőknek, akár szobánkénti bérbeadásra, de fiatal párok és diákok számára is vonzó, akik a központi, mégis csendes lakóhelyet keresik.
További információért és megtekintésért hívjon bizalommal, akár hétvégén is.
Tulajdonságok
Téglalakás
5
Átlagos
Gáz (konvektor)
1900
Nem adta meg a hirdető
35 000 Ft/hó
Vedd fel a kapcsolatot a hirdetővel
Tóth Ádám Az iroda összes hirdetése
+36 30 196 7
Hitelkalkulátor
Második évtől
215 177 Ft A 13. hónaptól
7,99%
Végig fix Futamidő: 20 év Banki visszahívás
Az OTP Bank munkatársai a neked megfelelő napszakban veszik fel veled a kapcsolatot.Hitelfelvétel esetén akár egy héttel rövidebb lehet az ügyintézés.
Ez az ingatlan a nálunk meglévő adatok alapján azonnali értékbecslésre alkalmas lehet.
A becslés a hirdető által megadott adatokon alapul. A jelen tájékoztatás nem minősül ajánlattételnek és nem teljes körű, az egyes feltételek a hitelbírálat eredményétől függően változhatnak. Kérjük, a részletekről tájékozódj az OTP Bank fiókjaiban vagy az OTP Bank honlapján közzétett vonatkozó Üzletszabályzatokból és Hirdetményekből.
Vedd fel a kapcsolatot a hirdetővel
Tóth Ádám Az iroda összes hirdetése
+36 30 196 7
Vedd fel a kapcsolatot a hirdetővel
Tóth Ádám Az iroda összes hirdetése
+36 30 196 7
UI_KIT.CHARACTER_COUNTER__COMPONENT.REMAINING_SPACE__SR_ONLYUI_KIT.CHARACTER_COUNTER__COMPONENT.MAXIMUM_CHARACTER__SR_ONLY
Hasonló eladó ingatlanok Magdolnanegyed városrészben
Frissítve: 1 hónapja

20
49,77 M Ft 1 659 000 Ft/m²
Eladó lakás, Budapest VIII. kerület, Magdolnanegyed, Homok utca 4-6
Frissítve: 9 napja

13
46,9 M Ft 1 675 000 Ft/m²
Eladó lakás, Budapest VIII. kerület, Magdolnanegyed
Frissítve: 10 napja

9
49,9 M Ft 1 663 333 Ft/m²
Eladó lakás, Budapest VIII. kerület, Magdolnanegyed, Lujza utca


Fedezd fel a
hasonló lakásokat!Még további lakások Budapest VIII. kerületben 50 M Ft körüli értékben
Tovább a hirdetésekhez Frissítve: 4 napja

8
51,9 M Ft 1 265 854 Ft/m²
Eladó lakás, Budapest VIII. kerület, Magdolnanegyed

Frissítve: 2 napja

20
45 M Ft 1 800 000 Ft/m²
Eladó lakás, Budapest VIII. kerület, Magdolnanegyed

Frissítve: 1 napja

12
47,9 M Ft 1 596 667 Ft/m²
Eladó lakás, Budapest VIII. kerület, Magdolnanegyed

Töltsd fel hirdetésed ingyenesen!
Egyszerű