+17 fotó
Hirdetéskód: 8977133
Referenciaszám: M326253-5205239
Feltöltve: 2 napja
Budapest VIII. kerület eladó téglalakás 2 szobás: 79,99 millió Ft
79,99 millió Ft
1,23 millió Ft/m²
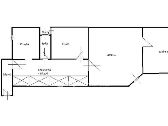
65 m²
2 szoba
1. emelet
Eladó Lakás, Budapest 8. ker.
***Az Otthon Start Program 3%-os fix kamatozású hitel feltételeinek megfelelő lakás!***
*** Fiatal párok, egyetemisták figyelem!!! ***
Eladó Budapest VIII. kerület, Nagykörúton belül, a Palotanegyedben, egy 65 nm alapterületű, 2 szobás, I. emeleti, szépen felújított, belső udvarra néző, belvárosi, társasházi lakás. A lakáshoz tartozik egy 6 nm-es zárható folyórész, ami tökéletesen használható erkélyként is.
Az ingatlan egy rendezett, liftes, polgári társasházban található. A társasház csendes, biztonságos, szépen karbantartott. A lakóközösség fiatalos és barátságos, emiatt az emberek szeretnek ott élni.
A lakás 2 éve teljeskörű felújításon esett át, aminek köszönhetően a teljes villany-, és vízvezeték csere megtörtént. A lakás nagy ablakainak köszönhetően szép, világos, napfényes. A szobák tágas belső terekkel rendelkeznek, az otthon melegét gázkonvektor biztosítja, a meleg vizet villanybojler állítja elő. A nappaliba légkondicionáló lett felszerelve. A fotókon látható teljes berendezés a vételár részét képezi.
A lakás kiváló adottságokkal rendelkezik, és tökéletes választás lehet fiatalok számára is első otthonnak, illetve főiskolásoknak/egyetemistáknak egyaránt.
A közös költség 19.500,- Ft. A közüzemi számlák egyedi mérőórák alapján kerülnek elszámolásra.
A lakásban minden kézre áll, az új lakó megkapja a kulcsot és már költözhet is, 1/1 tulajdoni hányadú, tehermentes.
A környék rendkívül jó infrastruktúrával rendelkezik: a közelben számos élelmiszerbolt, Corvin Plaza, óvoda, iskola, orvosi rendelő, posta, bank található. Néhány perces sétatávolságon belül több felsőoktatási intézmény is könnyen elérhető (ELTE, SOTE, Pázmány Péter Katolikus Egyetem, SOTE, Óbudai Egyetem). Emiatt befektetőknek is ideális választás lehet, hiszen könnyen, gyorsan kiadható. A Nagykörút 1 perc sétával elérhető.
Kitűnő elhelyezkedésének köszönhetően tömegközlekedéssel (autóbusz, trolibusz, villamos, metró) a város bármely pontja könnyedén elérhető.
Amennyiben hirdetésem felkeltette az érdeklődését, kérdése van, illetve szeretné megtekinteni a lakást, kérem, hívjon, bizalommal!
Referenciaszám: M326253
Referencia szám: M326253-ZE
Tulajdonságok
Téglalakás
Felújított
Gáz (konvektor)
1935
Nem adta meg a hirdető
Vedd fel a kapcsolatot a hirdetővel

Tamásné Mocsári Ildikó
OTPip - Budapest XIV. kerület Vezér utca 147 - OTP Ingatlanpont Iroda
Az iroda összes hirdetése +36 70 206 2
Hitelkalkulátor
Második évtől
344 240 Ft A 13. hónaptól
7,99%
Végig fix Futamidő: 20 év Banki visszahívás
Az OTP Bank munkatársai a neked megfelelő napszakban veszik fel veled a kapcsolatot.Hitelfelvétel esetén akár egy héttel rövidebb lehet az ügyintézés.
Ez az ingatlan a nálunk meglévő adatok alapján azonnali értékbecslésre alkalmas lehet.
A becslés a hirdető által megadott adatokon alapul. A jelen tájékoztatás nem minősül ajánlattételnek és nem teljes körű, az egyes feltételek a hitelbírálat eredményétől függően változhatnak. Kérjük, a részletekről tájékozódj az OTP Bank fiókjaiban vagy az OTP Bank honlapján közzétett vonatkozó Üzletszabályzatokból és Hirdetményekből.
Vedd fel a kapcsolatot a hirdetővel

Tamásné Mocsári Ildikó
OTPip - Budapest XIV. kerület Vezér utca 147 - OTP Ingatlanpont Iroda
Az iroda összes hirdetése +36 70 206 2
Vedd fel a kapcsolatot a hirdetővel

Tamásné Mocsári Ildikó
OTPip - Budapest XIV. kerület Vezér utca 147 - OTP Ingatlanpont Iroda
Az iroda összes hirdetése +36 70 206 2
UI_KIT.CHARACTER_COUNTER__COMPONENT.ACTUAL_CHARACTER__SR_ONLY UI_KIT.CHARACTER_COUNTER__COMPONENT.MAXIMUM_CHARACTER__SR_ONLY
Hasonló eladó ingatlanok Palotanegyed városrészben
Frissítve: 15 napja
11
79 millió Ft 1,39 millió Ft/m²
Eladó lakás, Budapest VIII. kerület, Palotanegyed

Frissítve: 1 éve
1
200 503 Euro
77,19 millió Ft 1,14 millió Ft/m²
Eladó lakás, Budapest VIII. kerület, Palotanegyed
Frissítve: 15 napja
11
74,9 millió Ft 2,5 millió Ft/m²
Eladó lakás, Budapest VIII. kerület, Palotanegyed


Fedezd fel a
hasonló lakásokat!Még további lakások Budapest VIII. kerület, Palotanegyed városrészben 79,99 M Ft körüli értékben
Tovább a hirdetésekhez Feltöltve: 7 hónapja
9
72,5 millió Ft 1,27 millió Ft/m²
Eladó lakás, Budapest VIII. kerület, Palotanegyed

Frissítve: ma
20
85 millió Ft 1,01 millió Ft/m²
Eladó lakás, Budapest VIII. kerület, Palotanegyed

Frissítve: 15 napja
13
85,5 millió Ft 1,5 millió Ft/m²
Eladó lakás, Budapest VIII. kerület, Palotanegyed

