

+18 fotó
Hirdetéskód: 8742008
Referenciaszám: H504856-5058234
Frissítve: ma
Budapest VIII. kerület eladó téglalakás 3 szobás: 79 millió Ft
79 millió Ft
1 196 970 Ft/m²
66 m²
3 szoba
földszint
Eladó lakás Budapest 8. ker., II. János Pál pápa tér és környéke
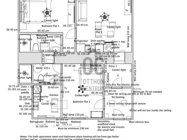
Eladó Budapest belvárosában, a Nagy Fuvaros utcában, egy földszinti, 66 m²-es ingatlan, amely két különálló apartmanra lett frissen átalakítva és teljes körűen felújítva.
-Az apartmanok gépesítettek és berendezéssel együtt eladóak.
-Az 1. apartman egy 1 szobás, a ház csendes belső udvarára néz.
- A 2 apartman a ház mögötti udvarra néző ablakaival, szintén nyugodt környezetet biztosít az ott lakóknak. Itt egy nappali és egy háló található, tágasabb elrendezésű, amely akár egy kisebb családnak is tökéletes lehet.
-(a kisebb apartmanban a munkálatok még nem fejeződtek be, a fényképeken a 2 szobás apartman látható)
Az ingatlan azonnal költözhető vagy kiadható állapotban van.
A házról
A társasház rendezett, csendes, a lakóközösség barátságos. A földszinti elhelyezkedés ideálissá teszi az ingatlant idősebbek vagy mozgáskorlátozottak számára is.
A környékről
A VIII. kerület folyamatosan fejlődő, dinamikus része, kiváló közlekedéssel: villamos, metró és buszmegállók néhány percre találhatók. A közelben található:
-Corvin-negyed, Rákóczi tér
-Vásárcsarnok, boltok, éttermek
-Szent Kozma Józsefvárosi orvosi rendelőintézet
-Egyetemek, irodaházak
-Parkok és kulturális intézmények
Ez a terület különösen népszerű a fiatal bérlők, diákok és turisták körében.
Miért jó befektetés?
- Két külön bejáratú lakrész – külön is kiadható, magas hozam
-Frissen felújított – nincs szükség további ráfordításra
- hosszú távú kiadásra is alkalmas
-Központi elhelyezkedés – gyorsan bérbe adható
-a két apartman almérőórákkal rendelkezik.
Egyedi igényekre szabott lakáshitelekkel állunk rendelkezésére. Bankfüggetlen Hitel Centrumunk az országban elérhető összes bank és hitelintézet ajánlatát versenyezteti az Ön számára díjmentesen.
Munkatársaink nagy szakmai tapasztalattal várják Önt az előre egyeztetett időpontban akár a normál munkaidő után is. Bővebb információért és a megtekintéssel kapcsolatban hívjon bizalommal!
Referencia szám: H504856
Tulajdonságok
Téglalakás
Felújított
Elektromos
1920
Nem adta meg a hirdető
Vedd fel a kapcsolatot a hirdetővel
+36 70 469 3
Hitelkalkulátor
Második évtől
339 980 Ft A 13. hónaptól
7,99%
Végig fix Futamidő: 20 év Banki visszahívás
Az OTP Bank munkatársai a neked megfelelő napszakban veszik fel veled a kapcsolatot.Hitelfelvétel esetén akár egy héttel rövidebb lehet az ügyintézés.
Ez az ingatlan a nálunk meglévő adatok alapján azonnali értékbecslésre alkalmas lehet.
A becslés a hirdető által megadott adatokon alapul. A jelen tájékoztatás nem minősül ajánlattételnek és nem teljes körű, az egyes feltételek a hitelbírálat eredményétől függően változhatnak. Kérjük, a részletekről tájékozódj az OTP Bank fiókjaiban vagy az OTP Bank honlapján közzétett vonatkozó Üzletszabályzatokból és Hirdetményekből.
Vedd fel a kapcsolatot a hirdetővel
+36 70 469 3
Vedd fel a kapcsolatot a hirdetővel
+36 70 469 3
UI_KIT.CHARACTER_COUNTER__COMPONENT.REMAINING_SPACE__SR_ONLYUI_KIT.CHARACTER_COUNTER__COMPONENT.MAXIMUM_CHARACTER__SR_ONLY
Hasonló eladó ingatlanok Budapest VIII. kerületben
Frissítve: 6 napja

8
79,8 M Ft 798 000 Ft/m²
Eladó lakás, Budapest VIII. kerület, 8. Népszínház u.
Frissítve: 19 napja

17
85,23 M Ft 1 739 341 Ft/m²
Eladó lakás, Budapest VIII. kerület

Frissítve: 6 napja

9
74,9 M Ft 2 202 941 Ft/m²
Eladó lakás, Budapest VIII. kerület, Budapest VIII., Corvin sétány

Fedezd fel a
hasonló lakásokat!Még további lakások Budapest VIII. kerületben 79 M Ft körüli értékben
Tovább a hirdetésekhez Frissítve: 3 napja

6
73,5 M Ft 980 000 Ft/m²
Eladó lakás, Budapest VIII. kerület

Frissítve: 18 napja

4
85 M Ft 1 428 572 Ft/m²
Eladó lakás, Budapest VIII. kerület

Frissítve: 18 napja

5
71,5 M Ft 1 462 168 Ft/m²
Eladó lakás, Budapest VIII. kerület


Töltsd fel hirdetésed ingyenesen!
Egyszerű