+17 fotó
Hirdetéskód: 8933483
Referenciaszám: M321482-5177432
Feltöltve: ma
Budapest VIII. kerület eladó téglalakás 2 szobás: 79,99 millió Ft
79,99 millió Ft
1 230 615 Ft/m²
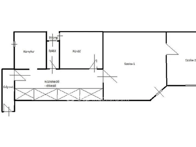
65 m²
2 szoba
1. emelet
Eladó Lakás, Budapest 8. ker.
***Az Otthon Start Program 3%-os fix kamatozású hitel feltételeinek megfelelő lakás!***
*** Fiatal párok, egyetemisták figyelem!!! ***
Eladó Budapest VIII. kerület, Nagykörúton belül, a Palotanegyedben, egy 65 nm alapterületű, 2 szobás, I. emeleti, szépen felújított, belső udvarra néző, belvárosi, társasházi lakás.
Az ingatlan egy rendezett, liftes, polgári társasházban található. A társasház csendes, biztonságos, szépen karbantartott. A lakóközösség fiatalos és barátságos, emiatt az emberek szeretnek ott élni.
A lakás 2 éve teljeskörű felújításon esett át, aminek köszönhetően a teljes villany-, és vízvezeték csere megtörtént. A lakás nagy ablakainak köszönhetően szép, világos, napfényes. A szobák tágas belső terekkel rendelkeznek, az otthon melegét gázkonvektor biztosítja, a meleg vizet villanybojler állítja elő. A nappaliba légkondicionáló lett felszerelve. A fotókon látható teljes berendezés a vételár részét képezi.
A lakás kiváló adottságokkal rendelkezik, és tökéletes választás lehet fiatalok számára is első otthonnak, illetve főiskolásoknak/egyetemistáknak egyaránt.
A közös költség 19.500,- Ft. A közüzemi számlák egyedi mérőórák alapján kerülnek elszámolásra.
A lakásban minden kézre áll, az új lakó megkapja a kulcsot és már költözhet is, 1/1 tulajdoni hányadú, tehermentes.
A környék rendkívül jó infrastruktúrával rendelkezik: a közelben számos élelmiszerbolt, Corvin Plaza, óvoda, iskola, orvosi rendelő, posta, bank található. Néhány perces sétatávolságon belül több felsőoktatási intézmény is könnyen elérhető (ELTE, SOTE, Pázmány Péter Katolikus Egyetem, SOTE, Óbudai Egyetem). Emiatt befektetőknek is ideális választás lehet, hiszen könnyen, gyorsan kiadható. A Nagykörút 1 perc sétával elérhető.
Kitűnő elhelyezkedésének köszönhetően tömegközlekedéssel (autóbusz, trolibusz, villamos, metró) a város bármely pontja könnyedén elérhető.
Ajánlom ezt a kedves lakást fiatal pároknak, egyetemistáknak első lakásként.
Szükség esetén teljeskörű ügyintézéssel (kedvezményes hitelkonstrukcióval, megbízható ügyvédi közreműködéssel) állok rendelkezésére!
Amennyiben hirdetésem felkeltette az érdeklődését, kérdése van, illetve szeretné megtekinteni a lakást, kérem, hívjon, bizalommal!
Referenciaszám: M321482
Tulajdonságok
Téglalakás
Felújított
Gáz (konvektor)
1940
Nem adta meg a hirdető
Vedd fel a kapcsolatot a hirdetővel
Molnár Gergely OTPip - Budapest IX. kerület Üllői út 21 - OTP Ingatlanpont Iroda Az iroda összes hirdetése
+36 20 554 6
Hitelkalkulátor
Második évtől
344 240 Ft A 13. hónaptól
7,99%
Végig fix Futamidő: 20 év Banki visszahívás
Az OTP Bank munkatársai a neked megfelelő napszakban veszik fel veled a kapcsolatot.Hitelfelvétel esetén akár egy héttel rövidebb lehet az ügyintézés.
Ez az ingatlan a nálunk meglévő adatok alapján azonnali értékbecslésre alkalmas lehet.
A becslés a hirdető által megadott adatokon alapul. A jelen tájékoztatás nem minősül ajánlattételnek és nem teljes körű, az egyes feltételek a hitelbírálat eredményétől függően változhatnak. Kérjük, a részletekről tájékozódj az OTP Bank fiókjaiban vagy az OTP Bank honlapján közzétett vonatkozó Üzletszabályzatokból és Hirdetményekből.
Vedd fel a kapcsolatot a hirdetővel
Molnár Gergely OTPip - Budapest IX. kerület Üllői út 21 - OTP Ingatlanpont Iroda Az iroda összes hirdetése
+36 20 554 6
Vedd fel a kapcsolatot a hirdetővel
Molnár Gergely OTPip - Budapest IX. kerület Üllői út 21 - OTP Ingatlanpont Iroda Az iroda összes hirdetése
+36 20 554 6
UI_KIT.CHARACTER_COUNTER__COMPONENT.ACTUAL_CHARACTER__SR_ONLY UI_KIT.CHARACTER_COUNTER__COMPONENT.MAXIMUM_CHARACTER__SR_ONLY
Hasonló eladó ingatlanok Budapest VIII. kerületben
Frissítve: 3 hónapja
9
Brickery Homes
76,77 M Ft 1 370 893 Ft/m²
Eladó lakás, Budapest VIII. kerület, Szeszgyár utca 4.
Frissítve: 3 hónapja
9
Brickery Homes
73,77 M Ft 1 317 321 Ft/m²
Eladó lakás, Budapest VIII. kerület, Szeszgyár utca 4.
Frissítve: 4 napja
5
85,42 M Ft 1 472 722 Ft/m²
Eladó lakás, Budapest VIII. kerület


Fedezd fel a
hasonló lakásokat!Még további lakások Budapest VIII. kerületben 79,99 M Ft körüli értékben
Tovább a hirdetésekhez Frissítve: ma
14
87,9 M Ft 1 758 000 Ft/m²
Eladó lakás, Budapest VIII. kerület

Frissítve: 27 napja
4
73 M Ft 1 514 523 Ft/m²
Eladó lakás, Budapest VIII. kerület

Frissítve: 28 napja
18
84,9 M Ft 1 732 653 Ft/m²
Eladó lakás, Budapest VIII. kerület

