+17 fotó
Hirdetéskód: 8941255
Referenciaszám: M321482-5183250
Feltöltve: ma
Budapest VIII. kerület eladó téglalakás 2 szobás: 79,99 millió Ft
79,99 millió Ft
1 230 615 Ft/m²
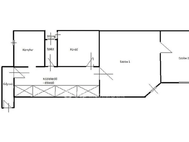
65 m²
2 szoba
1. emelet
Eladó Lakás, Budapest 8. ker.
Felújított, bútorozott lakás a Palotanegyedben – Otthon Start alkalmas
Budapest VIII. kerületében, a Nagykörúton belül, a Palotanegyedben található ez a 65 nm-es, 2 szobás, I. emeleti lakás, amely megfelel az Otthon Start Program 3%-os hitelfeltételeinek, így ideális választás első lakásnak vagy befektetésnek is.
Az ingatlan egy rendezett, liftes, polgári társasházban helyezkedik el, csendes, belső udvarra néző fekvéssel. A lakás 2 éve teljes körű felújításon esett át, amely során a villany- és vízhálózat cseréje is megtörtént. A nagy ablakoknak köszönhetően világos, a tágas szobák jól berendezhetők.
A fűtést gázkonvektor, a melegvizet villanybojler biztosítja, a nappaliban klíma került beépítésre. A teljes bútorzat a vételár részét képezi, így az ingatlan azonnal költözhető. A közös költség 19.500 Ft, a rezsi egyedi mérés alapján fizetendő.
A környék infrastruktúrája kiváló: néhány perc sétára található a Nagykörút és a Corvin Plaza, valamint több egyetem – Eötvös Loránd Tudományegyetem, Semmelweis Egyetem, Pázmány Péter Katolikus Egyetem, Óbudai Egyetem – is könnyen elérhető, így kiadásra is kifejezetten alkalmas.
Az ingatlan tehermentes, 1/1 tulajdonú, rövid időn belül birtokba vehető.
Amennyiben egy felújított, kiváló elhelyezkedésű, azonnal költözhető lakást keres, keressen bizalommal.
Referenciaszám: M321482
Tulajdonságok
Téglalakás
Felújított
Gáz (konvektor)
1940
Nem adta meg a hirdető
Vedd fel a kapcsolatot a hirdetővel
Bálint Fanni OTPip - Budapest IX. kerület Üllői út 21 - OTP Ingatlanpont Iroda Az iroda összes hirdetése
+36 30 911 6
Hitelkalkulátor
Második évtől
344 240 Ft A 13. hónaptól
7,99%
Végig fix Futamidő: 20 év Banki visszahívás
Az OTP Bank munkatársai a neked megfelelő napszakban veszik fel veled a kapcsolatot.Hitelfelvétel esetén akár egy héttel rövidebb lehet az ügyintézés.
Ez az ingatlan a nálunk meglévő adatok alapján azonnali értékbecslésre alkalmas lehet.
A becslés a hirdető által megadott adatokon alapul. A jelen tájékoztatás nem minősül ajánlattételnek és nem teljes körű, az egyes feltételek a hitelbírálat eredményétől függően változhatnak. Kérjük, a részletekről tájékozódj az OTP Bank fiókjaiban vagy az OTP Bank honlapján közzétett vonatkozó Üzletszabályzatokból és Hirdetményekből.
Vedd fel a kapcsolatot a hirdetővel
Bálint Fanni OTPip - Budapest IX. kerület Üllői út 21 - OTP Ingatlanpont Iroda Az iroda összes hirdetése
+36 30 911 6
Vedd fel a kapcsolatot a hirdetővel
Bálint Fanni OTPip - Budapest IX. kerület Üllői út 21 - OTP Ingatlanpont Iroda Az iroda összes hirdetése
+36 30 911 6
UI_KIT.CHARACTER_COUNTER__COMPONENT.ACTUAL_CHARACTER__SR_ONLY UI_KIT.CHARACTER_COUNTER__COMPONENT.MAXIMUM_CHARACTER__SR_ONLY
Hasonló eladó ingatlanok Budapest VIII. kerületben
Frissítve: 26 napja
11
76 M Ft 1 688 889 Ft/m²
Eladó lakás, Budapest VIII. kerület

Frissítve: 1 napja
4
86,5 M Ft 1 291 045 Ft/m²
Eladó lakás, Budapest VIII. kerület

Frissítve: 26 napja
20
79,9 M Ft 1 268 254 Ft/m²
Eladó lakás, Budapest VIII. kerület


Fedezd fel a
hasonló lakásokat!Még további lakások Budapest VIII. kerületben 79,99 M Ft körüli értékben
Tovább a hirdetésekhez Frissítve: 26 napja
11
76 M Ft 1 688 889 Ft/m²
Eladó lakás, Budapest VIII. kerület

Frissítve: 26 napja
11
74 M Ft 1 644 444 Ft/m²
Eladó lakás, Budapest VIII. kerület

Frissítve: 28 napja
5
85,42 M Ft 1 472 722 Ft/m²
Eladó lakás, Budapest VIII. kerület

