+17 fotó
Hirdetéskód: 8951493
Referenciaszám: M324298-5188988
Frissítve: 3 napja
Budapest VIII. kerület eladó téglalakás 2 szobás: 69,9 millió Ft
69,9 millió Ft
1 027 941 Ft/m²
68 m²
2 szoba
földszint
Eladó Lakás, Budapest 8. ker.
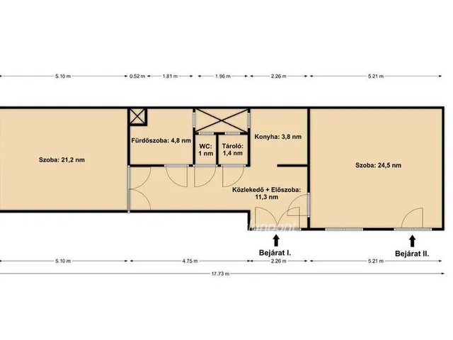
Budapest VIII. kerületében, a Corvin áruház közvetlen közelében megvételre kínálok egy 68 nm alapterületű, magasföldszinti, 2 szobás lakást.
A lakás elosztása kedvező. Jelenleg két külön nyíló szoba, konyha, külön fürdőszoba és wc, valamint egy tároló helyiség található benne. Az ingatlan különlegessége, hogy két bejárattal rendelkezik, így könnyen két külön lakássá alakítható. Ezáltal saját otthonnak és befektetésnek is jó lehetőség.
Az ingatlan jelenlegi állapotában beköltözhető, ugyanakkor átalakítással további lehetőségeket kínál.
A környék infrastruktúrája kiváló. A lakástól 2 perc sétára elérhető a 4-6 villamos, valamint az M3 metró megállója, így a város több pontja gyorsan megközelíthető. A karnyújtásnyira található Corvin sétányon számos kávézó, étterem, üzlet, drogéria és egyéb szolgáltatás érhető el.
Az ingatlan elhelyezkedése egyetemisták számára is kedvező, hiszen a közelben található a Nemzeti Közszolgálati Egyetem és a Pázmány Péter Katolikus Egyetem is. Emiatt kiadásra is jó választás lehet.
Az OTP Ingatlanpont teljes körű ügyintézéssel támogatja Önt az ingatlanvásárlás minden lépésében. Otthon Start Hitelprogram, kedvezményes hitelek, CSOK+, falusi CSOK, lakástakarék, valamint megbízható ügyvédi háttér áll rendelkezésre.
A felújításban is szívesen segítek! Több éve együtt dolgozom megbízható szakemberekkel, akik minden munkálatot precízen elvégeznek, a kisebb javításoktól a teljes átalakításig.
Várom megtisztelő hívását - akár hétvégén is!
Referenciaszám: M324298
Tulajdonságok
Téglalakás
Átlagos
Gáz (konvektor)
1950
Nem adta meg a hirdető
Vedd fel a kapcsolatot a hirdetővel
Bödör Dóra OTPip - Budapest IX. kerület Üllői út 21 - OTP Ingatlanpont Iroda Az iroda összes hirdetése
+36 30 357 0
Hitelkalkulátor
Második évtől
300 818 Ft A 13. hónaptól
7,99%
Végig fix Futamidő: 20 év Banki visszahívás
Az OTP Bank munkatársai a neked megfelelő napszakban veszik fel veled a kapcsolatot.Hitelfelvétel esetén akár egy héttel rövidebb lehet az ügyintézés.
Ez az ingatlan a nálunk meglévő adatok alapján azonnali értékbecslésre alkalmas lehet.
A becslés a hirdető által megadott adatokon alapul. A jelen tájékoztatás nem minősül ajánlattételnek és nem teljes körű, az egyes feltételek a hitelbírálat eredményétől függően változhatnak. Kérjük, a részletekről tájékozódj az OTP Bank fiókjaiban vagy az OTP Bank honlapján közzétett vonatkozó Üzletszabályzatokból és Hirdetményekből.
Vedd fel a kapcsolatot a hirdetővel
Bödör Dóra OTPip - Budapest IX. kerület Üllői út 21 - OTP Ingatlanpont Iroda Az iroda összes hirdetése
+36 30 357 0
Vedd fel a kapcsolatot a hirdetővel
Bödör Dóra OTPip - Budapest IX. kerület Üllői út 21 - OTP Ingatlanpont Iroda Az iroda összes hirdetése
+36 30 357 0
UI_KIT.CHARACTER_COUNTER__COMPONENT.ACTUAL_CHARACTER__SR_ONLY UI_KIT.CHARACTER_COUNTER__COMPONENT.MAXIMUM_CHARACTER__SR_ONLY
Hasonló eladó ingatlanok Budapest VIII. kerületben
Frissítve: 12 napja
5
71,5 M Ft 1 462 168 Ft/m²
Eladó lakás, Budapest VIII. kerület

Frissítve: 7 napja
11
74 M Ft 1 644 444 Ft/m²
Eladó lakás, Budapest VIII. kerület

Frissítve: 3 hónapja
9
Brickery Homes
73,77 M Ft 1 317 321 Ft/m²
Eladó lakás, Budapest VIII. kerület, Szeszgyár utca 4.

Fedezd fel a
hasonló lakásokat!Még további lakások Budapest VIII. kerületben 69,9 M Ft körüli értékben
Tovább a hirdetésekhez Frissítve: 1 hónapja
18
69,98 M Ft 1 227 719 Ft/m²
Eladó lakás, Budapest VIII. kerület
Frissítve: ma
20
64,9 M Ft 1 509 302 Ft/m²
Eladó lakás, Budapest VIII. kerület

Frissítve: 3 napja
7
67 M Ft 1 488 889 Ft/m²
Eladó lakás, Budapest VIII. kerület

